Description
This two-storey house with decorative shutters is 26 feet wide by 26 feet deep and provides 1,352 square feet of living space.
With a 676 square foot living area the ground floor includes a living room, a dining room, a kitchen with an island, and a powder room with a laundry area.
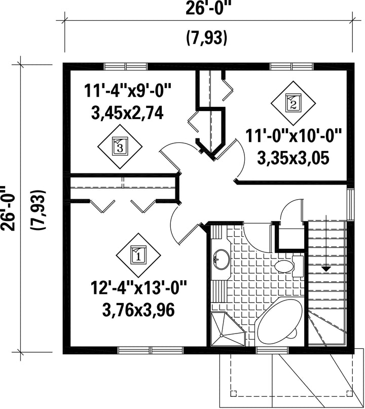
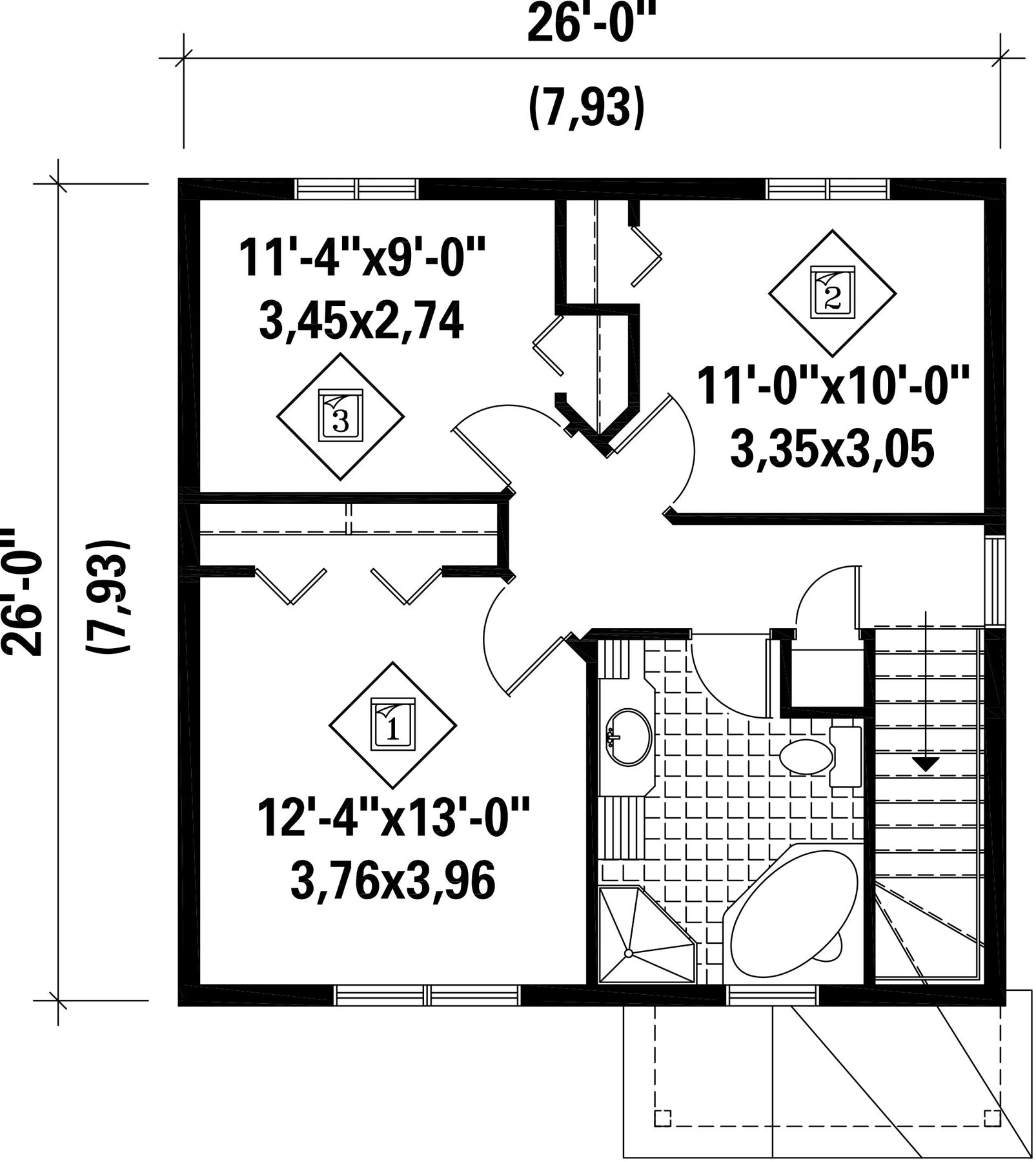
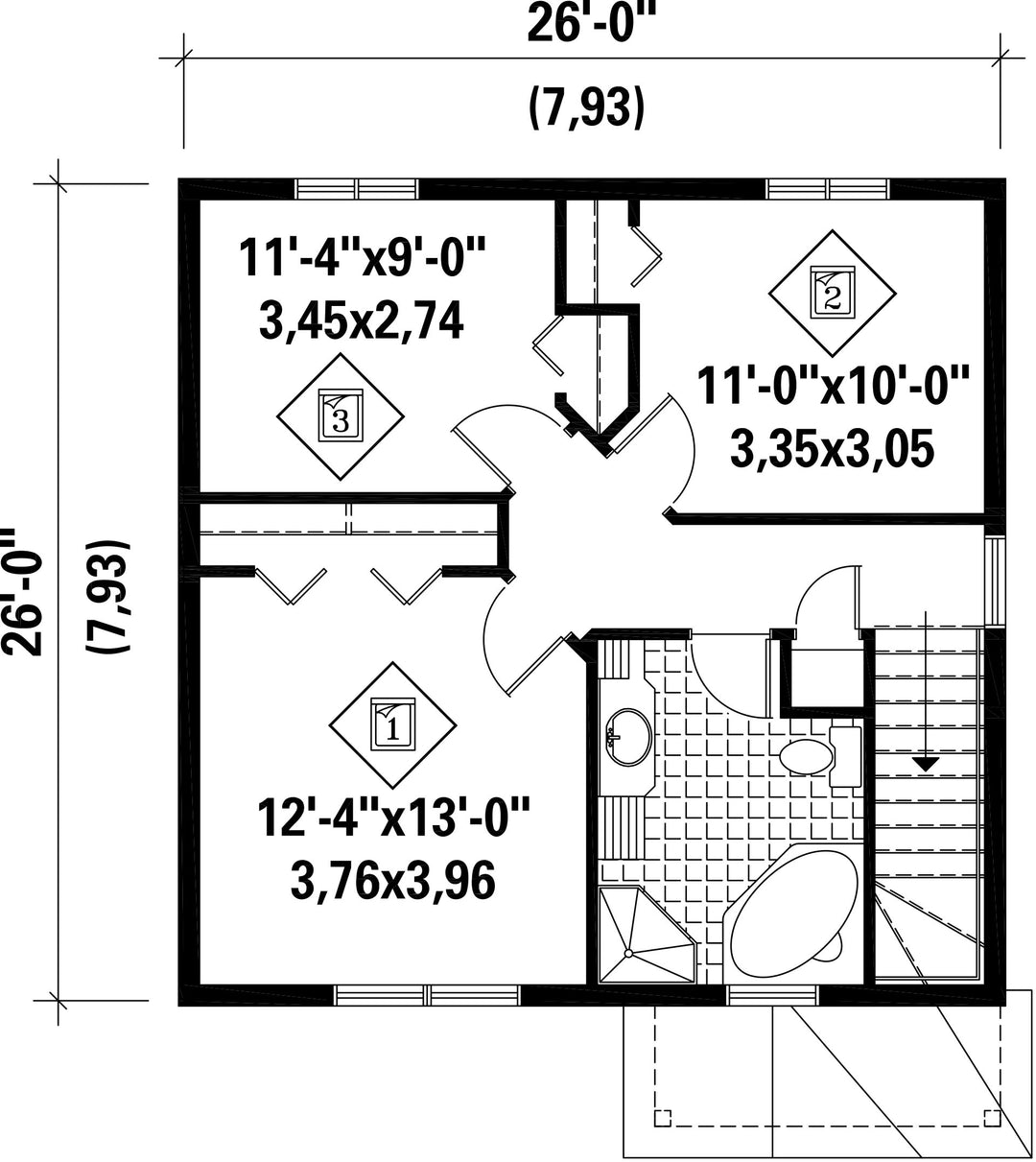
The second floor has 676 square feet of living space and features a bathroom and three bedrooms including a master bedroom with two closets.
With a 676 square foot living area the ground floor includes a living room, a dining room, a kitchen with an island, and a powder room with a laundry area.
The second floor has 676 square feet of living space and features a bathroom and three bedrooms including a master bedroom with two closets.
Additional info
Measurements: Imperial| House style | Rustic |
Construction price
Approximate amount equivalent to what it would cost to have a general contractor (Montreal's South Shore region) build a similar home, excluding the lot and the infrastructure.
|
262288 $ |
|---|---|---|---|
| Front | 26 ft | Total living surface | 1352 ft² |
| Depth | 26 ft | Bathrooms | 1 |
| Height | 30 ft 8 in | Bedrooms | 3 |
| Master bedroom | N / A | ||
| First floor area | 676 ft² | Exterior walls | Aluminum |
| Second floor area | 676 ft² | Kitchen | L-shaped + Dining room + Island |
| Garages | 0 | ||
| First floor wall | 8 ft | ||
| Second floor wall | 8 ft | Front/back roof slope | 8/12 |
| Left/right roof slope | 8/12 |
| House style | Rustic |
|---|---|
|
Construction price
Approximate amount equivalent to what it would cost to have a general contractor (Montreal's South Shore region) build a similar home, excluding the lot and the infrastructure.
|
262288 $ |
| Front | 26 ft |
| Total living surface | 1352 ft² |
| Depth | 26 ft |
| Bathrooms | 1 |
| Height | 30 ft 8 in |
| Bedrooms | 3 |
| Master bedroom | N / A |
| First floor area | 676 ft² |
| Exterior walls | Aluminum |
| Second floor area | 676 ft² |
| Kitchen | L-shaped + Dining room + Island |
| Garages | 0 |
| First floor wall | 8 ft |
| Second floor wall | 8 ft |
| Front/back roof slope | 8/12 |
| Left/right roof slope | 8/12 |