Description
NULL
Additional info
Measurements: Imperial| House style | Victorian |
Construction price
Approximate amount equivalent to what it would cost to have a general contractor (Montreal's South Shore region) build a similar home, excluding the lot and the infrastructure.
|
273256 $ |
|---|---|---|---|
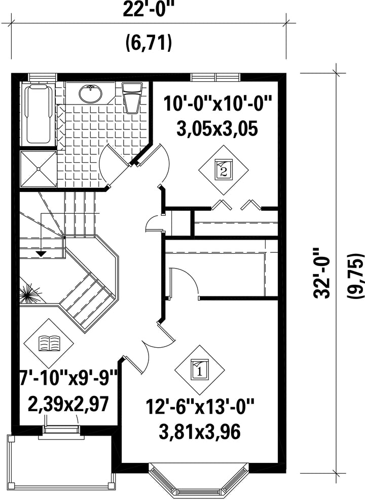
| Front | 22 ft | Total living surface | 1771 ft² |
| Depth | 32 ft | Bathrooms | 1 |
| Height | 31 ft 1 in | Bedrooms | 2 |
| Master bedroom | Wardrobe + Double Doors | ||
| First floor area | 692 ft² | Exterior walls | Aluminum + Brick |
| Second floor area | 692 ft² | Kitchen | Lunch counter + L-shaped |
| Garage area | 294 ft² | Garages | 1 |
| Garage wall | 8 ft | First floor wall | 8 ft |
| Second floor wall | 8 ft | Front/back roof slope | 7/12 |
| Left/right roof slope | 12/12 | Basement area | 387 ft² |
| House style | Victorian |
|---|---|
|
Construction price
Approximate amount equivalent to what it would cost to have a general contractor (Montreal's South Shore region) build a similar home, excluding the lot and the infrastructure.
|
273256 $ |
| Front | 22 ft |
| Total living surface | 1771 ft² |
| Depth | 32 ft |
| Bathrooms | 1 |
| Height | 31 ft 1 in |
| Bedrooms | 2 |
| Master bedroom | Wardrobe + Double Doors |
| First floor area | 692 ft² |
| Exterior walls | Aluminum + Brick |
| Second floor area | 692 ft² |
| Kitchen | Lunch counter + L-shaped |
| Garage area | 294 ft² |
| Garages | 1 |
| Garage wall | 8 ft |
| First floor wall | 8 ft |
| Second floor wall | 8 ft |
| Front/back roof slope | 7/12 |
| Left/right roof slope | 12/12 |
| Basement area | 387 ft² |