Description
This charming bungalow stands out with its roof gables and stone, aluminum and cedar facing that give it a truly unique style. The house is 46 feet 5 inches wide by 49 feet 2 inches deep and provides 2,326 square feet of living space.
The ground floor has a 1,386 square foot living area and ceilings that are nine feet high. It features a living room, a dining room, and an elevated kitchen with an island, a family room with a fireplace, a reading room, a laundry room and a large 447 square foot two-car garage.
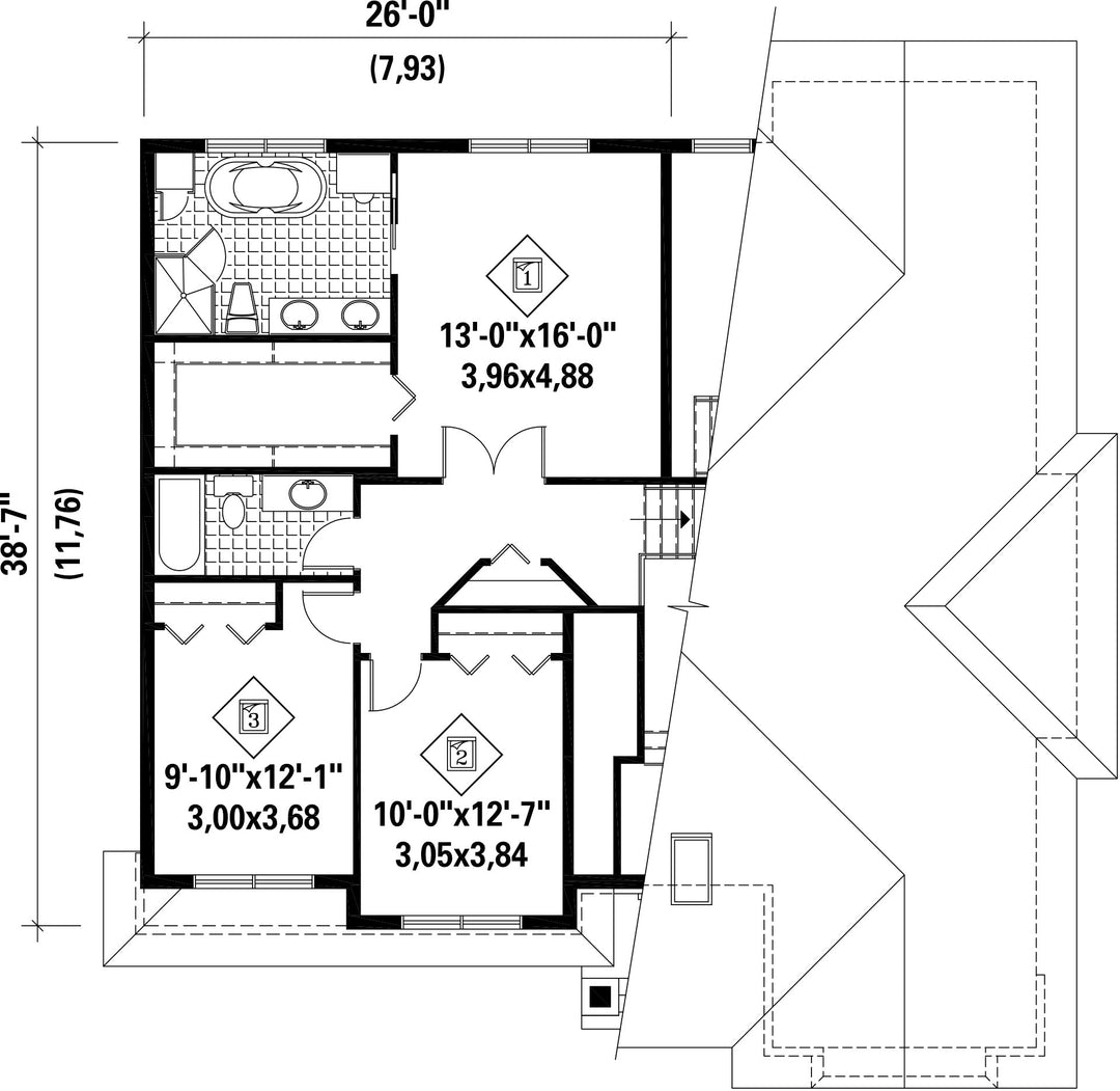
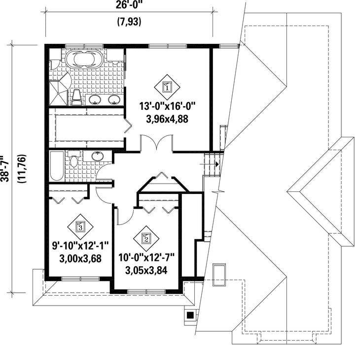
With 940 square feet of living space, the upper floor consists of a family bathroom and three bedrooms, including a master bedroom with a private bathroom and a large walk-in closet.
The ground floor has a 1,386 square foot living area and ceilings that are nine feet high. It features a living room, a dining room, and an elevated kitchen with an island, a family room with a fireplace, a reading room, a laundry room and a large 447 square foot two-car garage.
With 940 square feet of living space, the upper floor consists of a family bathroom and three bedrooms, including a master bedroom with a private bathroom and a large walk-in closet.
Additional info
Measurements: Imperial| House style | Country |
Construction price
Approximate amount equivalent to what it would cost to have a general contractor (Montreal's South Shore region) build a similar home, excluding the lot and the infrastructure.
|
561274 $ |
|---|---|---|---|
| Front | 46 ft 5 in | Total living surface | 2326 ft² |
| Depth | 49 ft 2 in | Bathrooms | 2 |
| Height | 29 ft 11 in | Bedrooms | 3 |
| Master bedroom | Podium bath + Shower + Double sink + Walk in + Double doors + Toilet | ||
| First floor area | 1386 ft² | Exterior walls | Aluminum + Cedar + Stone |
| Second floor area | 940 ft² | Kitchen | Nook + Snack + L shaped + Laboratory + Dining room + Island |
| Garage area | 447 ft² | Garages | 2 |
| Garage wall | 8 ft | First floor wall | 9 ft |
| Second floor wall | 8 ft | Front/back roof slope | 8/12 |
| Left/right roof slope | 8/12 |
| House style | Country |
|---|---|
|
Construction price
Approximate amount equivalent to what it would cost to have a general contractor (Montreal's South Shore region) build a similar home, excluding the lot and the infrastructure.
|
561274 $ |
| Front | 46 ft 5 in |
| Total living surface | 2326 ft² |
| Depth | 49 ft 2 in |
| Bathrooms | 2 |
| Height | 29 ft 11 in |
| Bedrooms | 3 |
| Master bedroom | Podium bath + Shower + Double sink + Walk in + Double doors + Toilet |
| First floor area | 1386 ft² |
| Exterior walls | Aluminum + Cedar + Stone |
| Second floor area | 940 ft² |
| Kitchen | Nook + Snack + L shaped + Laboratory + Dining room + Island |
| Garage area | 447 ft² |
| Garages | 2 |
| Garage wall | 8 ft |
| First floor wall | 9 ft |
| Second floor wall | 8 ft |
| Front/back roof slope | 8/12 |
| Left/right roof slope | 8/12 |