Description
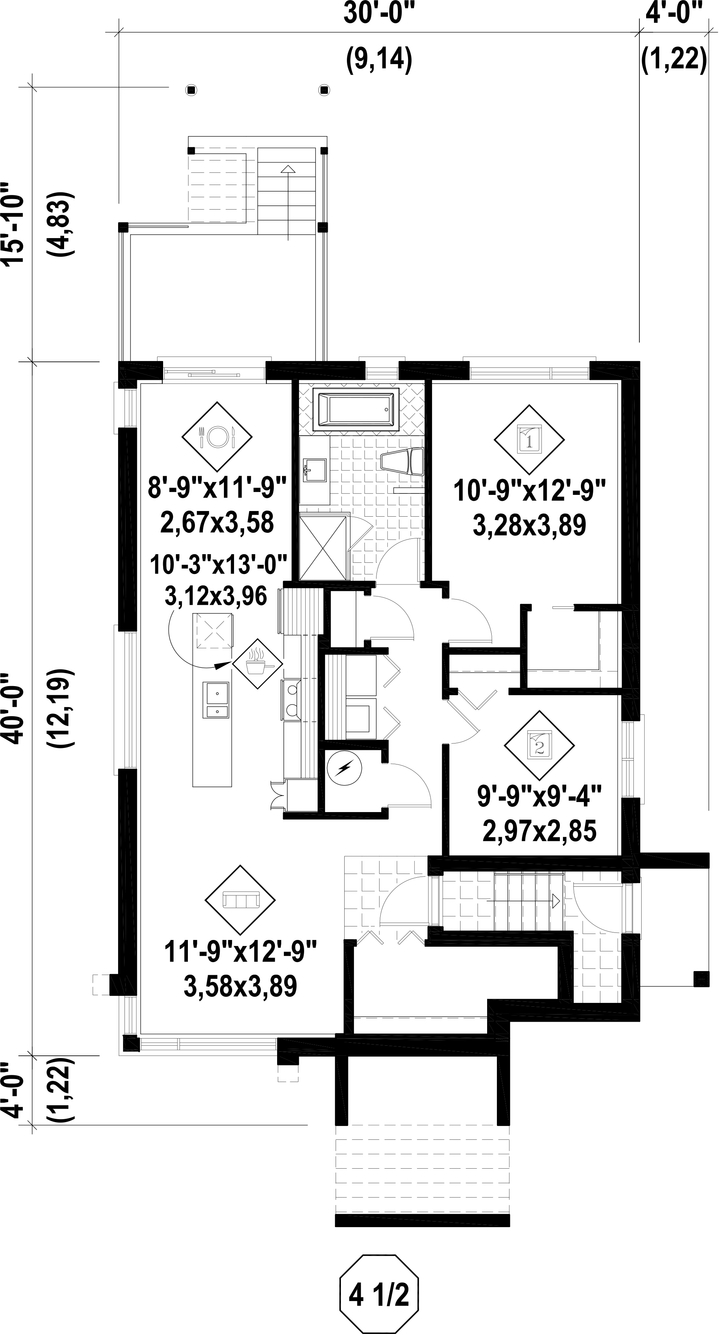
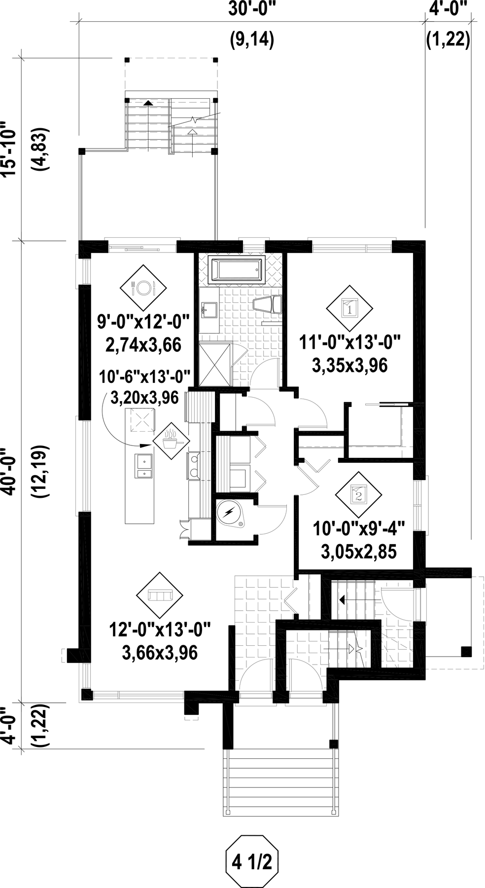
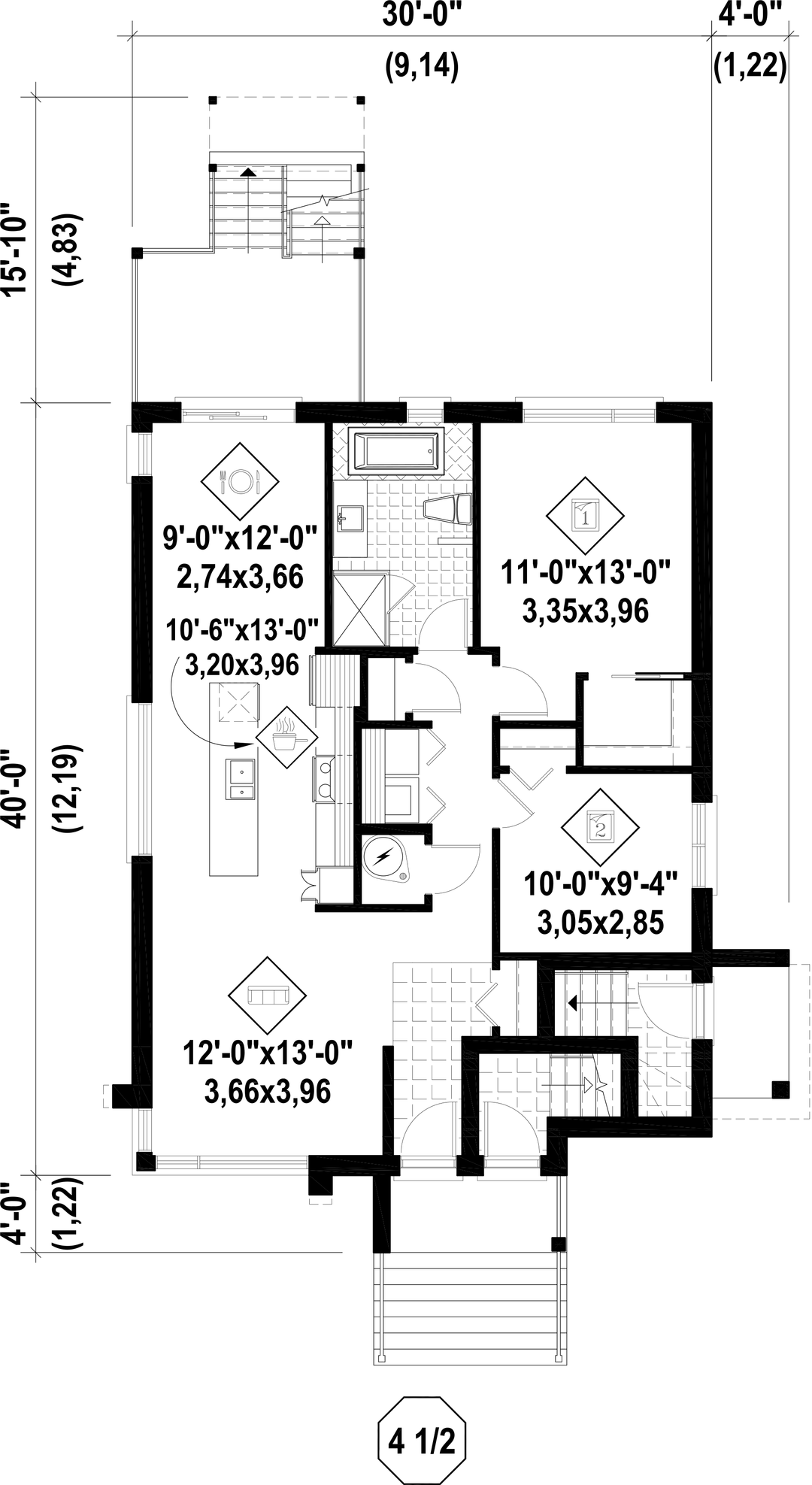
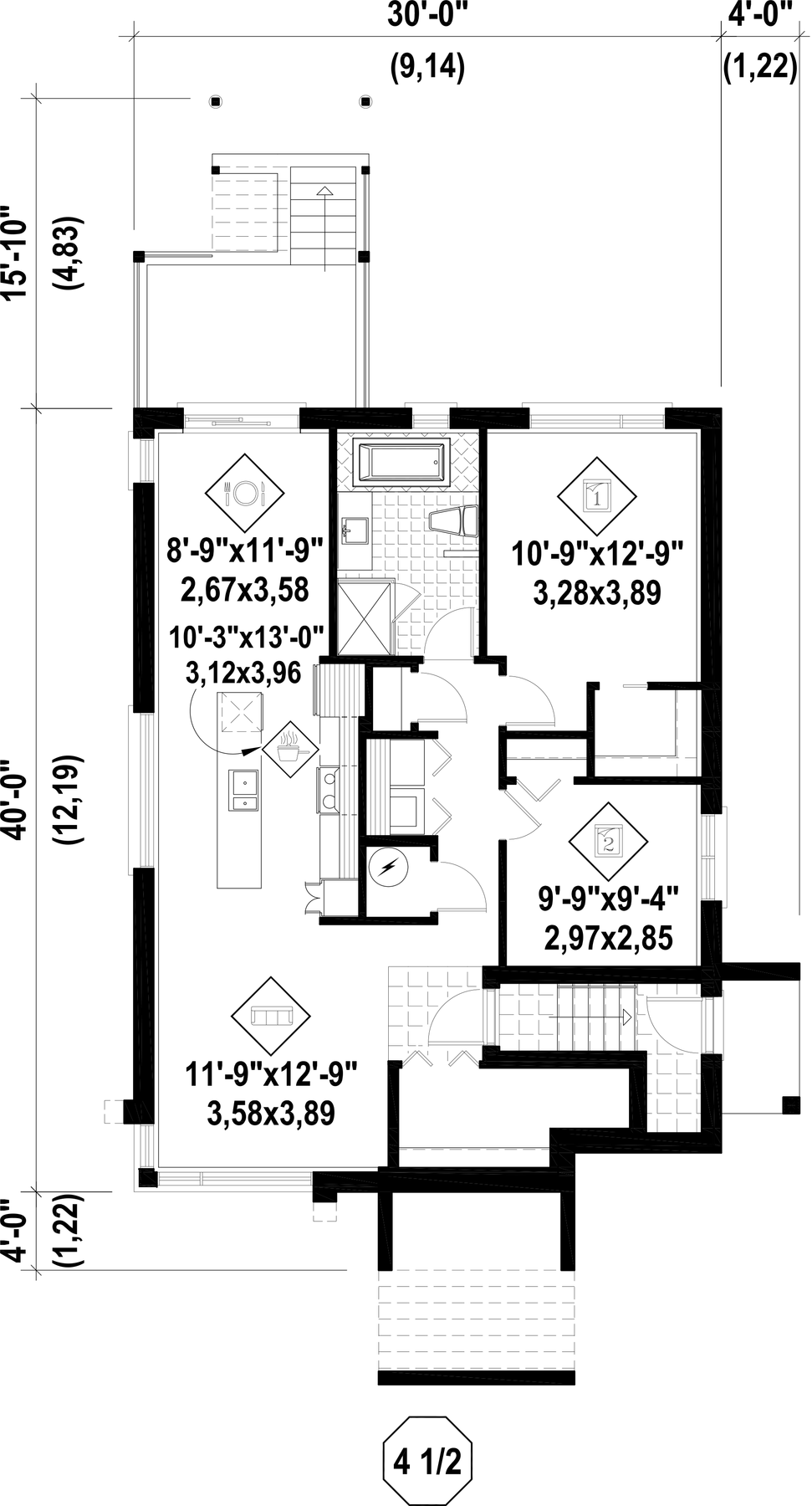
This modern triplex is 30 feet wide by 40 feet deep and it provides a total of 3,555 square feet of living space. The living area varies between 1013 and 1071 square feet and the room layout is identical.
Each one of the three units has its own private entrance and a fairly large private balcony in the back. Each open-concept unit features a living room, a dining room and a long kitchen with an island, a closet for the washer and dryer, as well as two bedrooms and a bathroom with a glass shower and a podium bathtub.
Each one of the three units has its own private entrance and a fairly large private balcony in the back. Each open-concept unit features a living room, a dining room and a long kitchen with an island, a closet for the washer and dryer, as well as two bedrooms and a bathroom with a glass shower and a podium bathtub.
Additional info
Measurements: Imperial| House style | Urban |
Construction price
Approximate amount equivalent to what it would cost to have a general contractor (Montreal's South Shore region) build a similar home, excluding the lot and the infrastructure.
|
505995 $ |
|---|---|---|---|
| Front | 30 ft | Total living surface | 3555 ft² |
| Depth | 40 ft | Bathrooms | 3 |
| Height | 29 ft 10 in | Bedrooms | 6 |
| Master bedroom | Wardrobe | ||
| First floor area | 1185 ft² | Exterior walls | Aggregates + Aluminum + Wood + Brick + Stone |
| Second floor area | 1185 ft² | Kitchen | Laboratory + Island |
| Garages | 0 | ||
| First floor wall | 8 ft | ||
| Second floor wall | 8 ft | Front/back roof slope | 4/12 |
| Left/right roof slope | 4/12 | Basement area | 1185 ft² |
| House style | Urban |
|---|---|
|
Construction price
Approximate amount equivalent to what it would cost to have a general contractor (Montreal's South Shore region) build a similar home, excluding the lot and the infrastructure.
|
505995 $ |
| Front | 30 ft |
| Total living surface | 3555 ft² |
| Depth | 40 ft |
| Bathrooms | 3 |
| Height | 29 ft 10 in |
| Bedrooms | 6 |
| Master bedroom | Wardrobe |
| First floor area | 1185 ft² |
| Exterior walls | Aggregates + Aluminum + Wood + Brick + Stone |
| Second floor area | 1185 ft² |
| Kitchen | Laboratory + Island |
| Garages | 0 |
| First floor wall | 8 ft |
| Second floor wall | 8 ft |
| Front/back roof slope | 4/12 |
| Left/right roof slope | 4/12 |
| Basement area | 1185 ft² |