Description
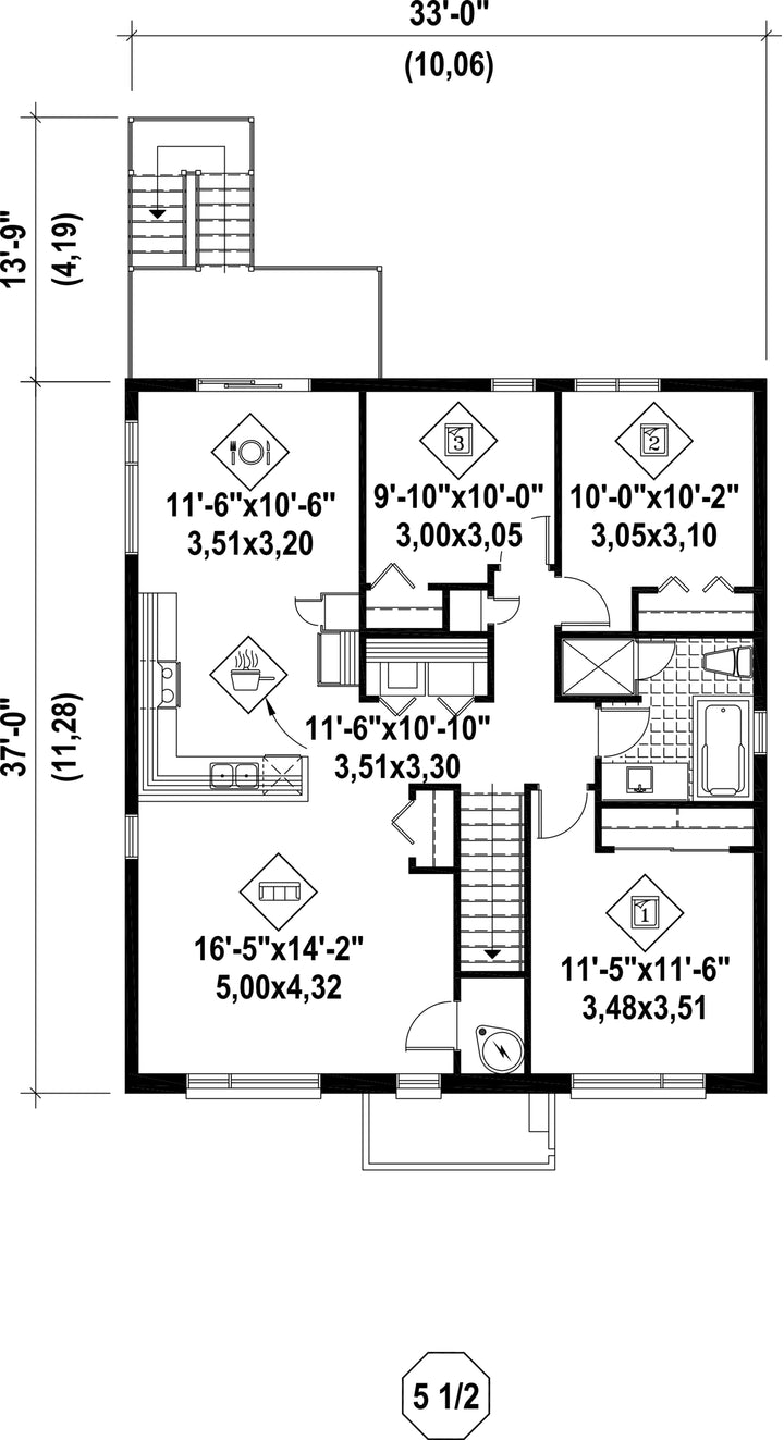
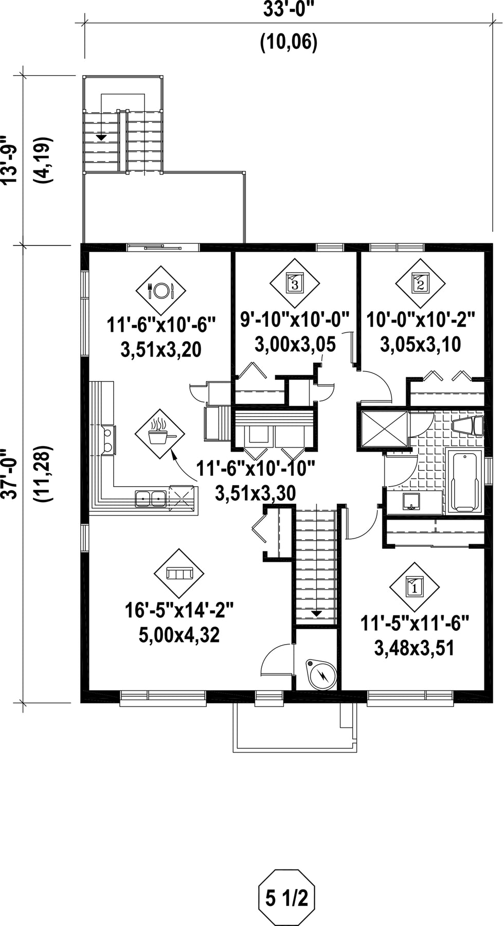
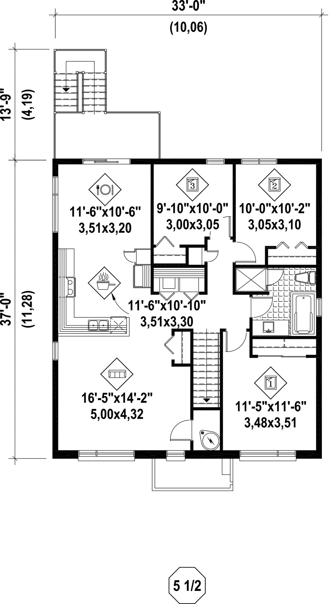
This contemporary triplex includes three 5 ½ room units, each with its own private entrance, and features a total of 3,663 square feet of living space. Each unit has a 1,221 square-foot living area. The room layout is identical in all three units.
Each open unit features a dining room with a ribbon window, a kitchen and a living room, three bedrooms, a bathroom with separate shower and bathtub, as well as a closet for the washer and dryer.
Each open unit features a dining room with a ribbon window, a kitchen and a living room, three bedrooms, a bathroom with separate shower and bathtub, as well as a closet for the washer and dryer.
Additional info
Measurements: Imperial| House style | Urban |
Construction price
Approximate amount equivalent to what it would cost to have a general contractor (Montreal's South Shore region) build a similar home, excluding the lot and the infrastructure.
|
521367 $ |
|---|---|---|---|
| Front | 33 ft | Total living surface | 3663 ft² |
| Depth | 37 ft | Bathrooms | 3 |
| Height | 33 ft 1 in | Bedrooms | 9 |
| Master bedroom | N / A | ||
| First floor area | 1221 ft² | Exterior walls | Aluminum + Wood + Stone |
| Second floor area | 1221 ft² | Kitchen | L-shaped |
| Garages | 0 | ||
| First floor wall | 8 ft | ||
| Second floor wall | 8 ft | Front/back roof slope | 6/12 |
| Left/right roof slope | 6/12 | Basement area | 1221 ft² |
| House style | Urban |
|---|---|
|
Construction price
Approximate amount equivalent to what it would cost to have a general contractor (Montreal's South Shore region) build a similar home, excluding the lot and the infrastructure.
|
521367 $ |
| Front | 33 ft |
| Total living surface | 3663 ft² |
| Depth | 37 ft |
| Bathrooms | 3 |
| Height | 33 ft 1 in |
| Bedrooms | 9 |
| Master bedroom | N / A |
| First floor area | 1221 ft² |
| Exterior walls | Aluminum + Wood + Stone |
| Second floor area | 1221 ft² |
| Kitchen | L-shaped |
| Garages | 0 |
| First floor wall | 8 ft |
| Second floor wall | 8 ft |
| Front/back roof slope | 6/12 |
| Left/right roof slope | 6/12 |
| Basement area | 1221 ft² |