Description
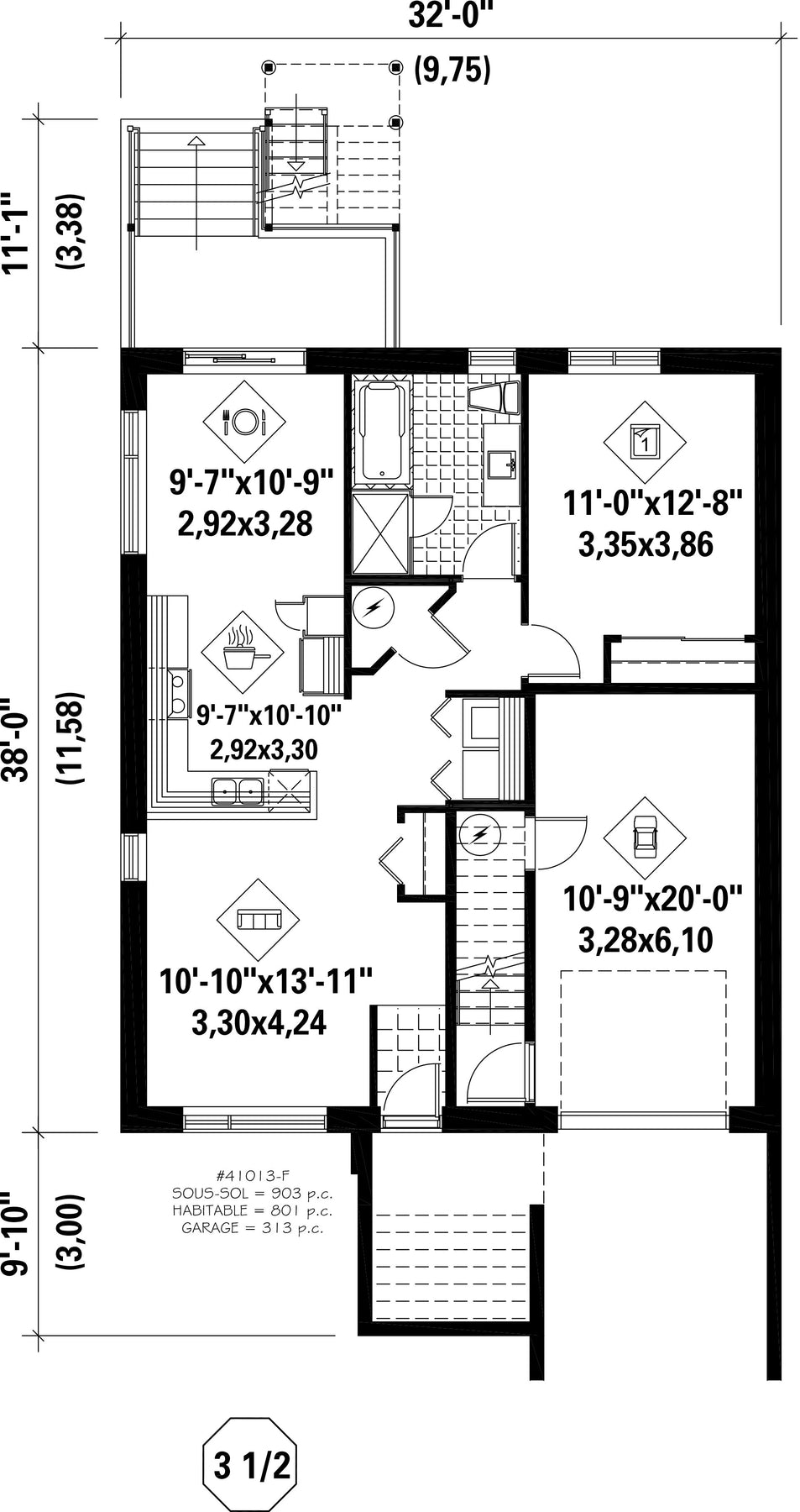
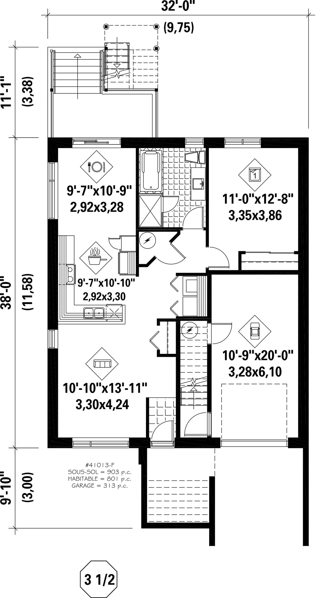
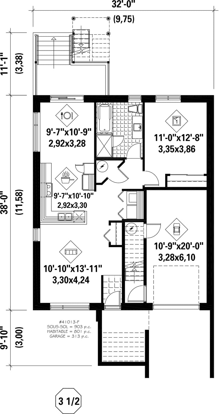
Chic and urban, with its stone and wood cladding, this triplex is composed of three apartments – a three and a half in the basement, a five and a half on the ground floor and a five and a half upstairs – and has a total of 3,335 square feet of usable space. It is 32 feet wide by 38 feet deep and the ground floor owner has a 313 square feet parking lot with accommodation for a car.
Each open plan unit has a rear balcony accessible by the kitchen. The three and a half has a kitchen, a dining room, a living room, a bathroom, a closet with space available for a washer and a dryer, and a bedroom. The five and a half on the ground floor has the same rooms, but with three bedrooms. This also applies to the five and a half upstairs, but this one has storage space, like the unit on the basement.
Each open plan unit has a rear balcony accessible by the kitchen. The three and a half has a kitchen, a dining room, a living room, a bathroom, a closet with space available for a washer and a dryer, and a bedroom. The five and a half on the ground floor has the same rooms, but with three bedrooms. This also applies to the five and a half upstairs, but this one has storage space, like the unit on the basement.
Additional info
Measurements: Imperial| House style | Urban |
Construction price
Approximate amount equivalent to what it would cost to have a general contractor (Montreal's South Shore region) build a similar home, excluding the lot and the infrastructure.
|
537699 $ |
|---|---|---|---|
| Front | 32 ft | Total living surface | 3335 ft² |
| Depth | 38 ft | Bathrooms | 3 |
| Height | 32 ft 10 in | Bedrooms | 7 |
| Master bedroom | N / A | ||
| First floor area | 1216 ft² | Exterior walls | Wood + Stone |
| Second floor area | 1216 ft² | Kitchen | U-shape |
| Garage area | 313 ft² | Garages | 1 |
| Garage wall | 8 ft | First floor wall | 8 ft |
| Second floor wall | 8 ft | Front/back roof slope | 6/12 |
| Left/right roof slope | 6/12 | Basement area | 903 ft² |
| House style | Urban |
|---|---|
|
Construction price
Approximate amount equivalent to what it would cost to have a general contractor (Montreal's South Shore region) build a similar home, excluding the lot and the infrastructure.
|
537699 $ |
| Front | 32 ft |
| Total living surface | 3335 ft² |
| Depth | 38 ft |
| Bathrooms | 3 |
| Height | 32 ft 10 in |
| Bedrooms | 7 |
| Master bedroom | N / A |
| First floor area | 1216 ft² |
| Exterior walls | Wood + Stone |
| Second floor area | 1216 ft² |
| Kitchen | U-shape |
| Garage area | 313 ft² |
| Garages | 1 |
| Garage wall | 8 ft |
| First floor wall | 8 ft |
| Second floor wall | 8 ft |
| Front/back roof slope | 6/12 |
| Left/right roof slope | 6/12 |
| Basement area | 903 ft² |