Description
These semi-detached two-storey houses have a brick facade and a small porch and provide 1,200 square feet of total living space. The ground floor and the upper floor each have 600 square feet of living space. The room layout is identical on the ground floor.
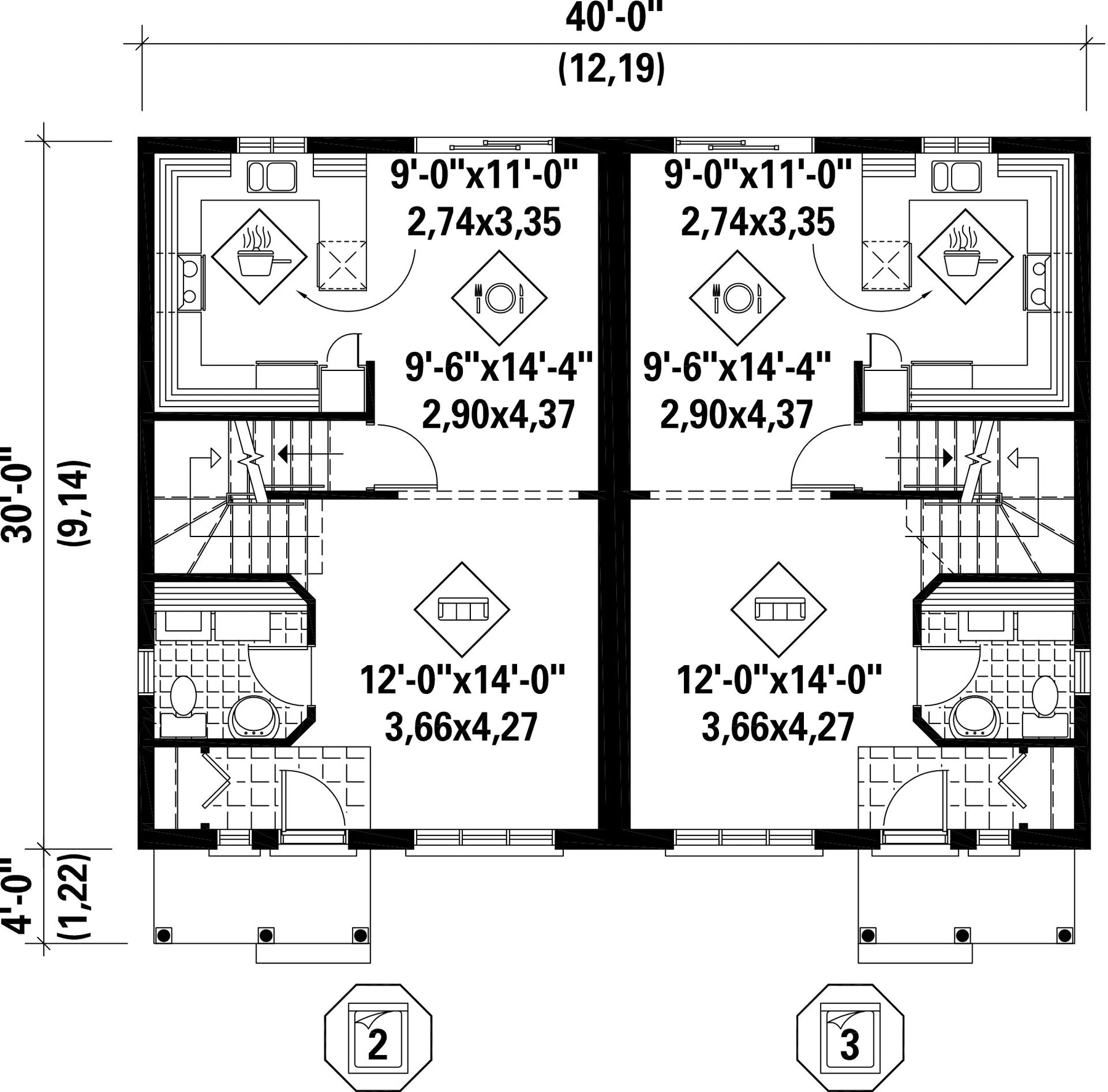
The ground floor of each house includes an open entrance hall with a closet, a living room, an open dining room and kitchen, as well as a powder room with a laundry area.
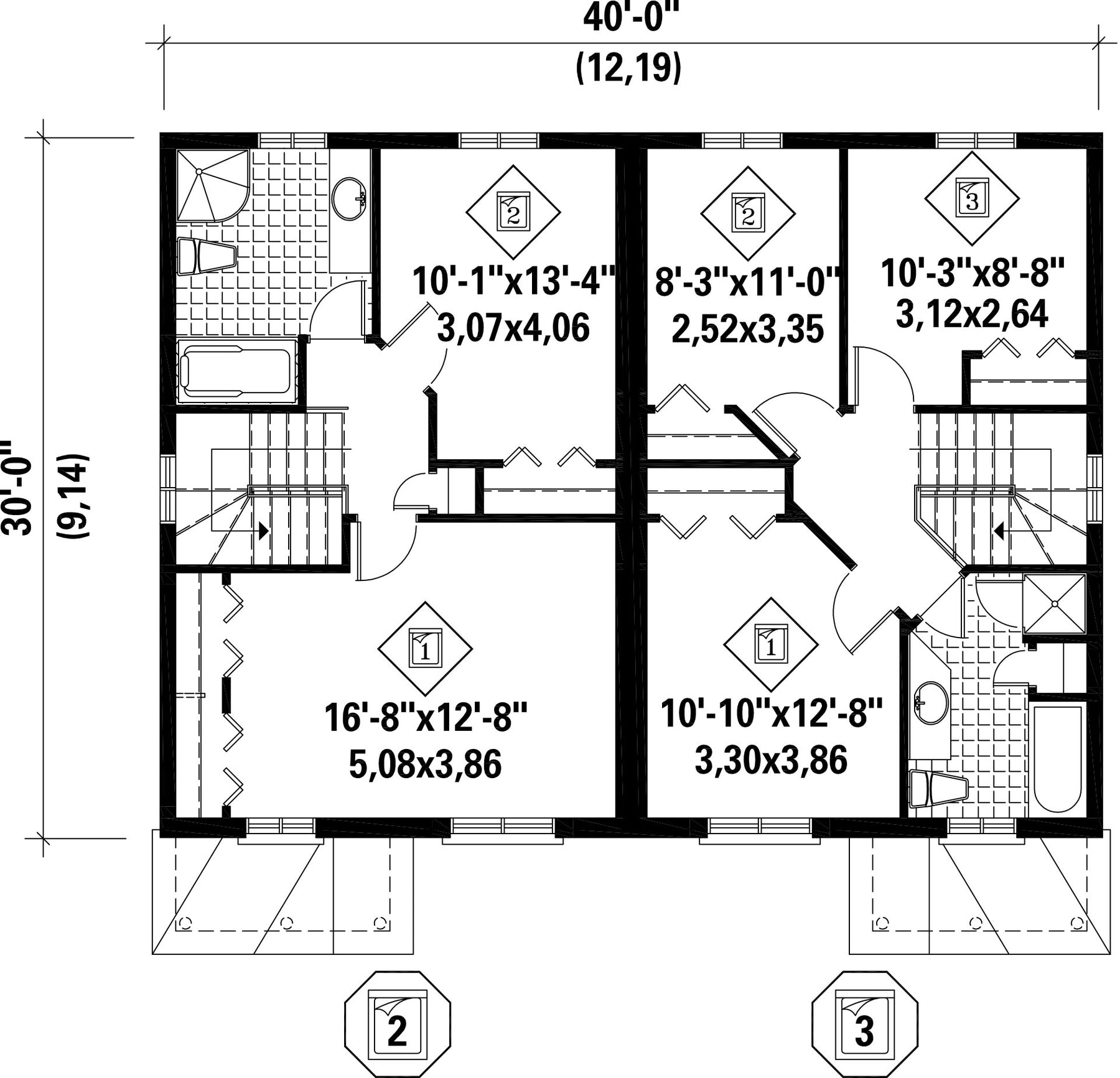
The upper floor of the left house has a large bathroom and two bedrooms including a master bedroom with two closets.
The upper floor of the right house includes a bathroom and three bedrooms, which is ideal for bigger families.
The ground floor of each house includes an open entrance hall with a closet, a living room, an open dining room and kitchen, as well as a powder room with a laundry area.
The upper floor of the left house has a large bathroom and two bedrooms including a master bedroom with two closets.
The upper floor of the right house includes a bathroom and three bedrooms, which is ideal for bigger families.
Additional info
Measurements: Imperial| House style | European |
Construction price
Approximate amount equivalent to what it would cost to have a general contractor (Montreal's South Shore region) build a similar home, excluding the lot and the infrastructure.
|
465757 $ |
|---|---|---|---|
| Front | 40 ft | Total living surface | 2400 ft² |
| Depth | 30 ft | Bathrooms | 2 |
| Height | 30 ft 1 in | Bedrooms | 5 |
| Master bedroom | N / A | Master bedroom - comments | --- |
| First floor area | 1200 ft² | Exterior walls | Aluminum + Brick |
| Second floor area | 1200 ft² | Kitchen | U-shape |
| Garages | 0 | ||
| First floor wall | 8 ft | ||
| Second floor wall | 8 ft | Front/back roof slope | 8/12 |
| Left/right roof slope | 10/12 |
| House style | European |
|---|---|
|
Construction price
Approximate amount equivalent to what it would cost to have a general contractor (Montreal's South Shore region) build a similar home, excluding the lot and the infrastructure.
|
465757 $ |
| Front | 40 ft |
| Total living surface | 2400 ft² |
| Depth | 30 ft |
| Bathrooms | 2 |
| Height | 30 ft 1 in |
| Bedrooms | 5 |
| Master bedroom | N / A |
| Master bedroom - comments | --- |
| First floor area | 1200 ft² |
| Exterior walls | Aluminum + Brick |
| Second floor area | 1200 ft² |
| Kitchen | U-shape |
| Garages | 0 |
| First floor wall | 8 ft |
| Second floor wall | 8 ft |
| Front/back roof slope | 8/12 |
| Left/right roof slope | 10/12 |