Description
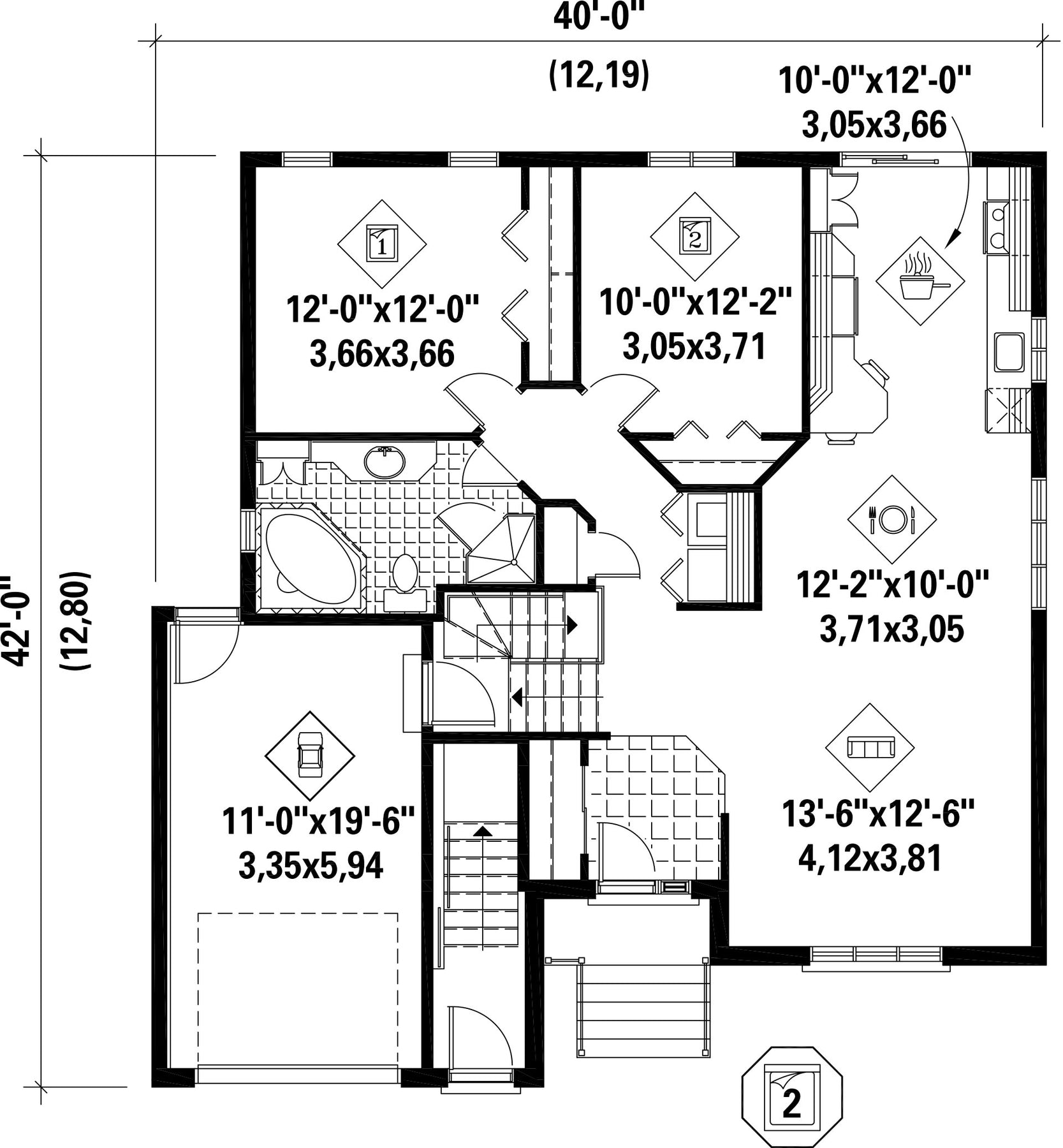
This bungalow includes a one-car garage and a large basement that also incorporates a bachelor apartment. The house, which has a brick facing, is 40 feet wide by 42 feet deep and has 2,417 square feet of living space.
The main floor has a 1,200 square foot living area and includes a living room, a functional kitchen, a dining room, two bedrooms, a bathroom as well as a 252 square foot one-car garage.
The basement has 1,217 square feet of living space and includes, on one side, a den and a storage area for the owners. Accessible by a separate entrance located next to the garage in front of the house, the bachelor apartment includes a kitchen, an open dining and living area, a bedroom as well as a bathroom.
The main floor has a 1,200 square foot living area and includes a living room, a functional kitchen, a dining room, two bedrooms, a bathroom as well as a 252 square foot one-car garage.
The basement has 1,217 square feet of living space and includes, on one side, a den and a storage area for the owners. Accessible by a separate entrance located next to the garage in front of the house, the bachelor apartment includes a kitchen, an open dining and living area, a bedroom as well as a bathroom.
Additional info
Measurements: Imperial| House style | European |
Construction price
Approximate amount equivalent to what it would cost to have a general contractor (Montreal's South Shore region) build a similar home, excluding the lot and the infrastructure.
|
356722 $ |
|---|---|---|---|
| Front | 40 ft | Total living surface | 2417 ft² |
| Depth | 42 ft | Bathrooms | 2 |
| Height | 26 ft 9 in | Bedrooms | 3 |
| Master bedroom | N / A | Master bedroom - comments | --- |
| First floor area | 1200 ft² | Exterior walls | Aluminum + Brick |
| Kitchen | L-shaped | ||
| Garage area | 252 ft² | Garages | 1 |
| Garage wall | 8 ft | First floor wall | 8 ft |
| Front/back roof slope | 8/12 | ||
| Left/right roof slope | 12/12 | Basement area | 1217 ft² |
| House style | European |
|---|---|
|
Construction price
Approximate amount equivalent to what it would cost to have a general contractor (Montreal's South Shore region) build a similar home, excluding the lot and the infrastructure.
|
356722 $ |
| Front | 40 ft |
| Total living surface | 2417 ft² |
| Depth | 42 ft |
| Bathrooms | 2 |
| Height | 26 ft 9 in |
| Bedrooms | 3 |
| Master bedroom | N / A |
| Master bedroom - comments | --- |
| First floor area | 1200 ft² |
| Exterior walls | Aluminum + Brick |
| Kitchen | L-shaped |
| Garage area | 252 ft² |
| Garages | 1 |
| Garage wall | 8 ft |
| First floor wall | 8 ft |
| Front/back roof slope | 8/12 |
| Left/right roof slope | 12/12 |
| Basement area | 1217 ft² |