Description
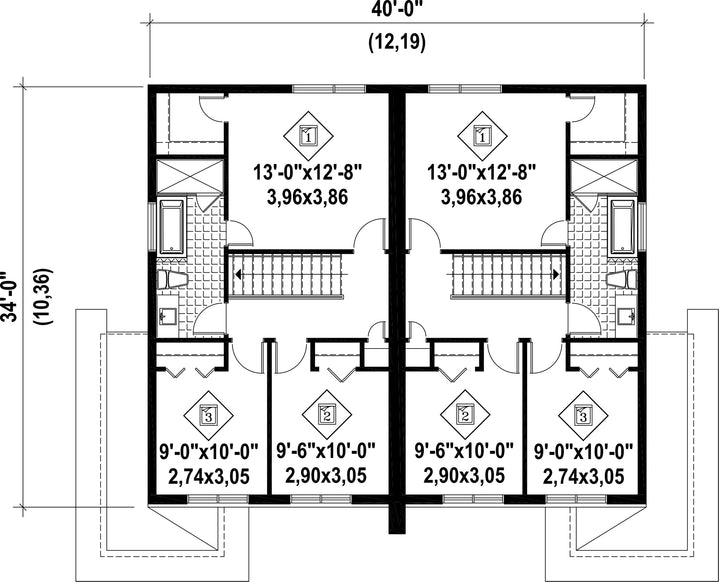
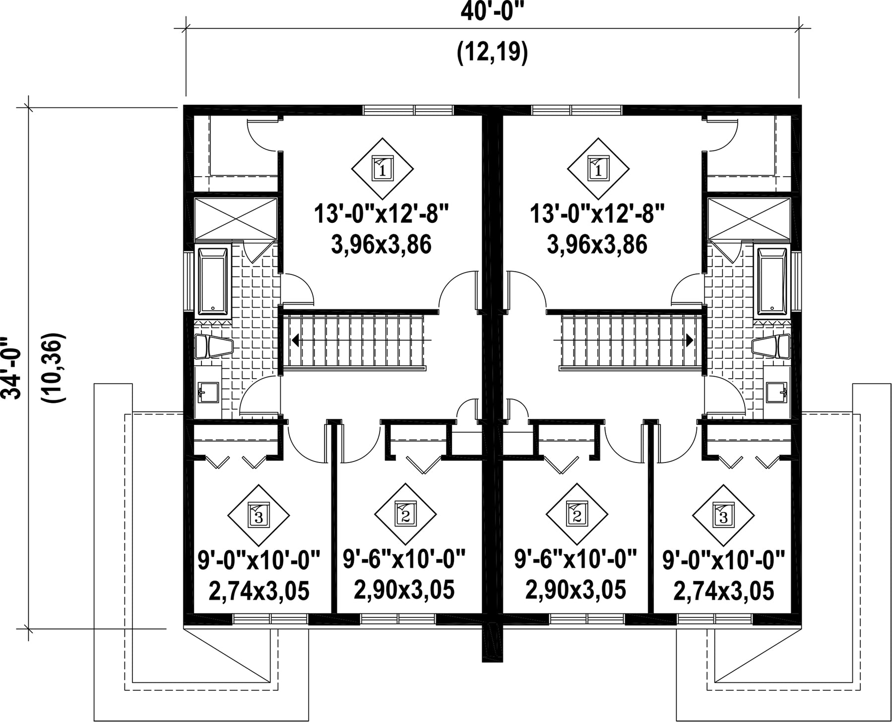
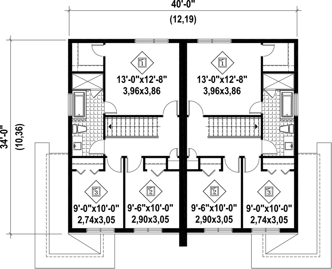
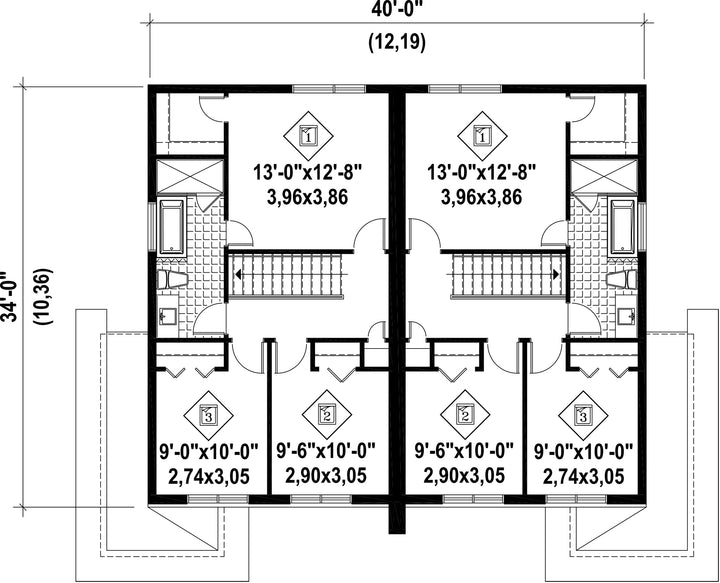
These urban semi-detached two-storey houses provide a total of 2,832 square feet of living space, and together they are 48 feet wide by 34 feet deep. The room layout and the living area are identical in the two units, which is 736 square feet on the ground floor, for a total of 1,472 square feet, and 680 square feet on the second floor, for a total of 1,360 square feet.
In each house, the ground floor features a sunken entrance, a powder room, a living room with a gas fireplace, a dining room and a kitchen with a long lunch counter that can sit three people. On the second floor, each house features a bathroom with a large shower and separate bathtub, as well as three bedrooms, including a master bedroom with a large walk-in closet.
In each house, the ground floor features a sunken entrance, a powder room, a living room with a gas fireplace, a dining room and a kitchen with a long lunch counter that can sit three people. On the second floor, each house features a bathroom with a large shower and separate bathtub, as well as three bedrooms, including a master bedroom with a large walk-in closet.
Additional info
Measurements: Imperial| House style | Urban |
Construction price
Approximate amount equivalent to what it would cost to have a general contractor (Montreal's South Shore region) build a similar home, excluding the lot and the infrastructure.
|
646694 $ |
|---|---|---|---|
| Front | 48 ft | Total living surface | 2832 ft² |
| Depth | 34 ft | Bathrooms | 2 |
| Height | 30 ft | Bedrooms | 6 |
| Master bedroom | Walk in | ||
| First floor area | 1472 ft² | Exterior walls | Wood + Stone |
| Second floor area | 1360 ft² | Kitchen | Snack + Laboratory |
| Garages | 0 | ||
| First floor wall | 8 ft | ||
| Second floor wall | 8 ft | Front/back roof slope | 5/12 |
| Left/right roof slope | 5/12 |
| House style | Urban |
|---|---|
|
Construction price
Approximate amount equivalent to what it would cost to have a general contractor (Montreal's South Shore region) build a similar home, excluding the lot and the infrastructure.
|
646694 $ |
| Front | 48 ft |
| Total living surface | 2832 ft² |
| Depth | 34 ft |
| Bathrooms | 2 |
| Height | 30 ft |
| Bedrooms | 6 |
| Master bedroom | Walk in |
| First floor area | 1472 ft² |
| Exterior walls | Wood + Stone |
| Second floor area | 1360 ft² |
| Kitchen | Snack + Laboratory |
| Garages | 0 |
| First floor wall | 8 ft |
| Second floor wall | 8 ft |
| Front/back roof slope | 5/12 |
| Left/right roof slope | 5/12 |