Description
NULL
Additional info
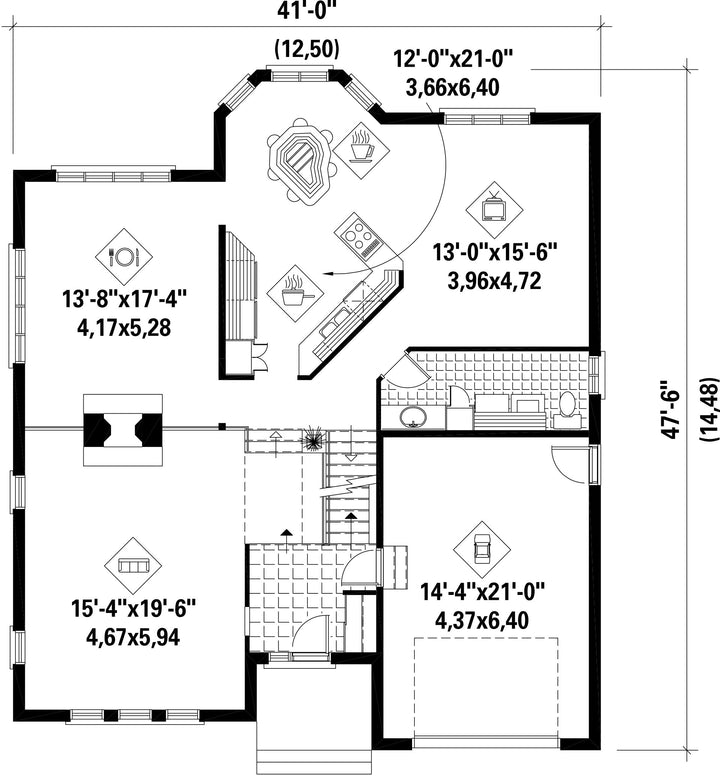
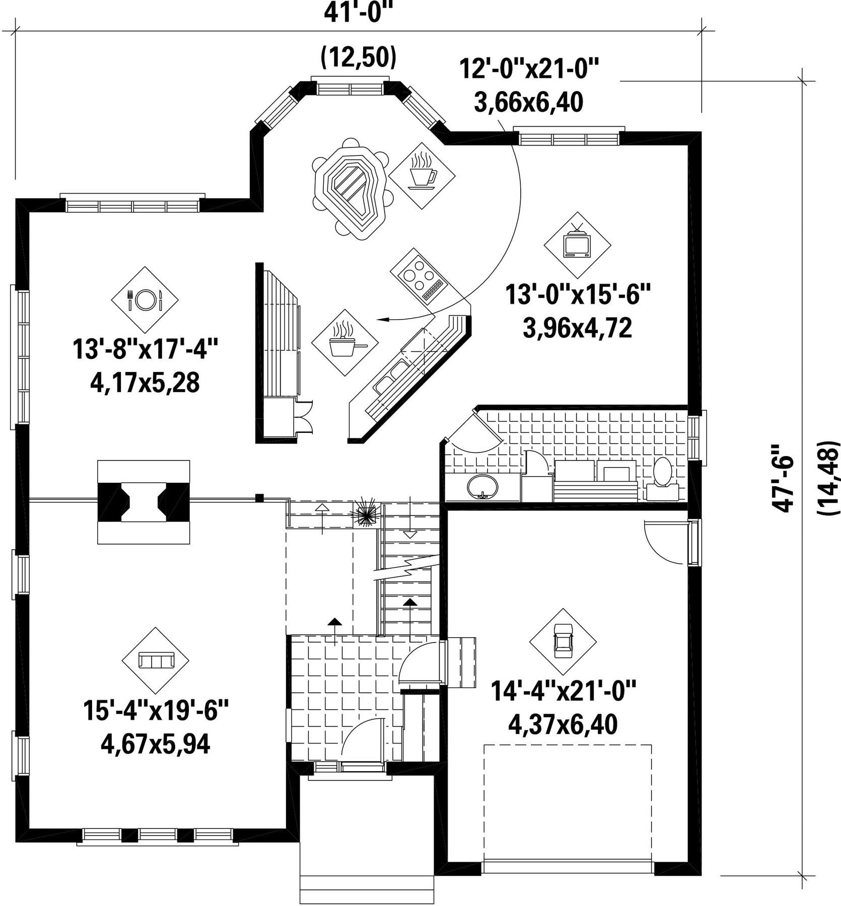
Measurements: Imperial| House style | Modern |
Construction price
Approximate amount equivalent to what it would cost to have a general contractor (Montreal's South Shore region) build a similar home, excluding the lot and the infrastructure.
|
567543 $ |
|---|---|---|---|
| Front | 41 ft | Total living surface | 2627 ft² |
| Depth | 47 ft 6 in | Bathrooms | 1 |
| Height | 31 ft 2 in | Bedrooms | 3 |
| Master bedroom | N / A | ||
| First floor area | 1378 ft² | Exterior walls | Aluminum + Brick |
| Second floor area | 1249 ft² | Kitchen | Breakfast nook + Breakfast counter + Dining room + Island |
| Garage area | 336 ft² | Garages | 1 |
| Garage wall | 8 ft | First floor wall | 9 ft |
| Second floor wall | 8 ft | Front/back roof slope | 6/12 |
| House style | Modern |
|---|---|
|
Construction price
Approximate amount equivalent to what it would cost to have a general contractor (Montreal's South Shore region) build a similar home, excluding the lot and the infrastructure.
|
567543 $ |
| Front | 41 ft |
| Total living surface | 2627 ft² |
| Depth | 47 ft 6 in |
| Bathrooms | 1 |
| Height | 31 ft 2 in |
| Bedrooms | 3 |
| Master bedroom | N / A |
| First floor area | 1378 ft² |
| Exterior walls | Aluminum + Brick |
| Second floor area | 1249 ft² |
| Kitchen | Breakfast nook + Breakfast counter + Dining room + Island |
| Garage area | 336 ft² |
| Garages | 1 |
| Garage wall | 8 ft |
| First floor wall | 9 ft |
| Second floor wall | 8 ft |
| Front/back roof slope | 6/12 |