02981
02981
02981
02981

02981


Jeux de plans - Sets of plans
Regular price$1,035.00
/

This site is protected by hCaptcha and the hCaptcha Privacy Policy and Terms of Service apply.

Description

NULL

Additional info

Measurements: Imperial

House style Modern Construction price 
Approximate amount equivalent to what it would cost to have a general contractor (Montreal's South Shore region) build a similar home, excluding the lot and the infrastructure.
231578 $
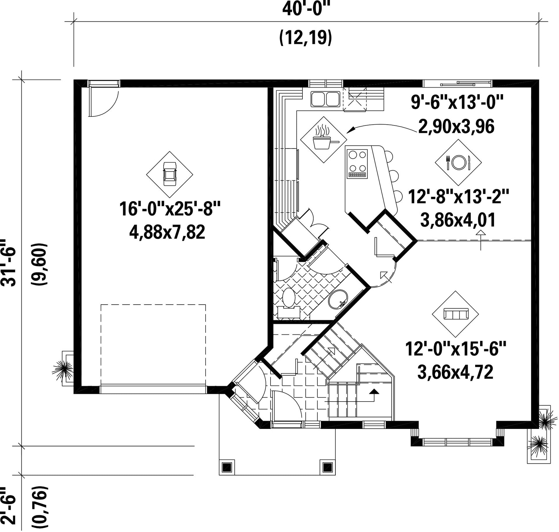
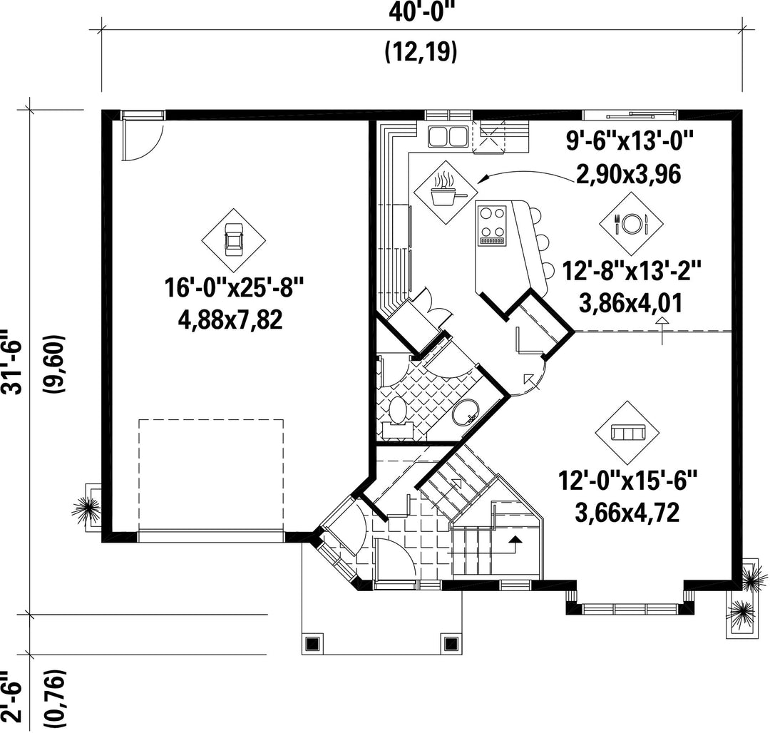
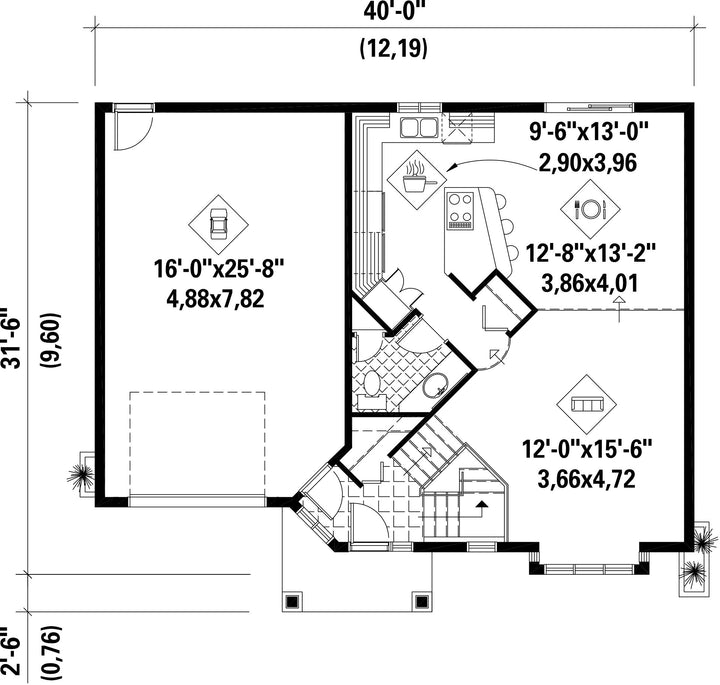
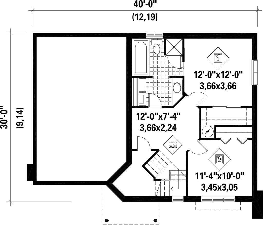
Front 40 ft Total living surface 1442 ft²
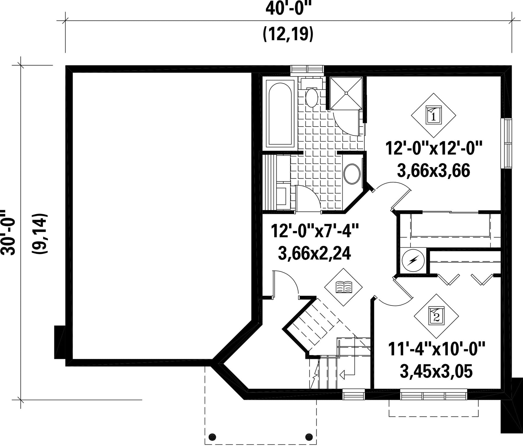
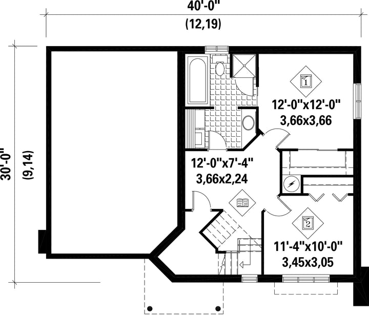
Depth 31 ft 6 inBathrooms 1
Height 21 ft 10 inBedrooms 2
Master bedroom Walk in
First floor area 727 ft² Exterior walls Stucco + Aluminum
Kitchen Snack + U shaped + Laboratory
Garage area 442 ft² Garages 1
Garage wall 8 ftFirst floor wall 8 ft
Front/back roof slope 6/12
Basement area 715 ft²
House style Modern
Construction price 
Approximate amount equivalent to what it would cost to have a general contractor (Montreal's South Shore region) build a similar home, excluding the lot and the infrastructure.
231578 $
Front 40 ft
Total living surface 1442 ft²
Depth 31 ft 6 in
Bathrooms 1
Height 21 ft 10 in
Bedrooms 2
Master bedroom Walk in
First floor area 727 ft²
Exterior walls Stucco + Aluminum
Kitchen Snack + U shaped + Laboratory
Garage area 442 ft²
Garages 1
Garage wall 8 ft
First floor wall 8 ft
Front/back roof slope 6/12
Basement area 715 ft²

Ces plans de maison pourraient également vous intéresser


Recently viewed