Description
This magnificent two-storey house has an elegant style thanks to some interesting architectural details such as the huge ornamental column enhancing the entrance, the bay section in the front and the decorative moldings. The home is 39 feet wide by 37 feet 8 inches deep and provides 1,886 square feet of living space.
The ground floor has a 947 square foot living area that includes an open entrance hall, a powder room with laundry area, a living room with a corner fireplace, a dining room, and a spacious kitchen with large working surfaces and a breakfast nook open on two floors. There is also a 262 square foot one-car garage with inside and outside access.
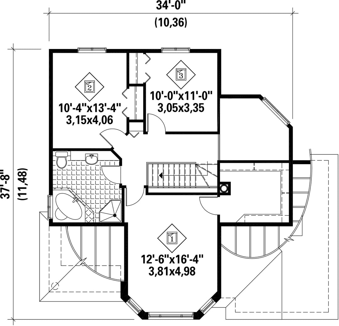
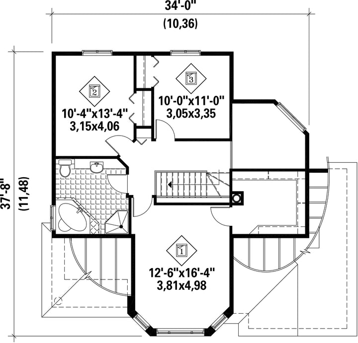
The second floor covers 939 square feet and consists of a bathroom and three bedrooms including a master bedroom with a huge walk-in closet.
The ground floor has a 947 square foot living area that includes an open entrance hall, a powder room with laundry area, a living room with a corner fireplace, a dining room, and a spacious kitchen with large working surfaces and a breakfast nook open on two floors. There is also a 262 square foot one-car garage with inside and outside access.
The second floor covers 939 square feet and consists of a bathroom and three bedrooms including a master bedroom with a huge walk-in closet.
Additional info
Measurements: Imperial| House style | Manor |
Construction price
Approximate amount equivalent to what it would cost to have a general contractor (Montreal's South Shore region) build a similar home, excluding the lot and the infrastructure.
|
388256 $ |
|---|---|---|---|
| Front | 39 ft | Total living surface | 1886 ft² |
| Depth | 37 ft 8 in | Bathrooms | 1 |
| Height | 34 ft 4 in | Bedrooms | 3 |
| Master bedroom | Wardrobe | ||
| First floor area | 947 ft² | Exterior walls | Aluminum + Brick |
| Second floor area | 939 ft² | Kitchen | Dining area + Dining room |
| Garage area | 262 ft² | Garages | 1 |
| Garage wall | 8 ft | First floor wall | 8 ft |
| Second floor wall | 8 ft | Front/back roof slope | 8/12 |
| Left/right roof slope | 10/12 |
| House style | Manor |
|---|---|
|
Construction price
Approximate amount equivalent to what it would cost to have a general contractor (Montreal's South Shore region) build a similar home, excluding the lot and the infrastructure.
|
388256 $ |
| Front | 39 ft |
| Total living surface | 1886 ft² |
| Depth | 37 ft 8 in |
| Bathrooms | 1 |
| Height | 34 ft 4 in |
| Bedrooms | 3 |
| Master bedroom | Wardrobe |
| First floor area | 947 ft² |
| Exterior walls | Aluminum + Brick |
| Second floor area | 939 ft² |
| Kitchen | Dining area + Dining room |
| Garage area | 262 ft² |
| Garages | 1 |
| Garage wall | 8 ft |
| First floor wall | 8 ft |
| Second floor wall | 8 ft |
| Front/back roof slope | 8/12 |
| Left/right roof slope | 10/12 |