Description
This elegant two-storey brick house is 39 feet wide by 38 feet 4 inches deep, has a 336 square foot one-car garage, and provides 1,865 square feet of living space.
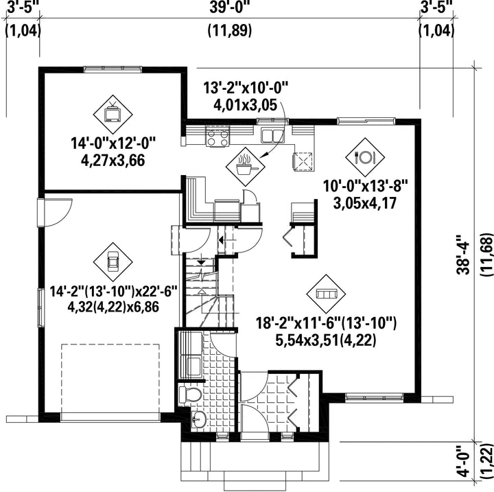
The ground floor has a 900 square foot living area that includes a closed entrance hall with lots of storage room, an open living and dining room, a functional kitchen, a powder room and a laundry room.
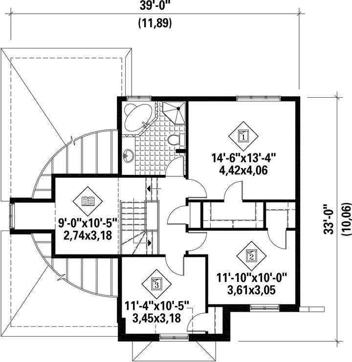
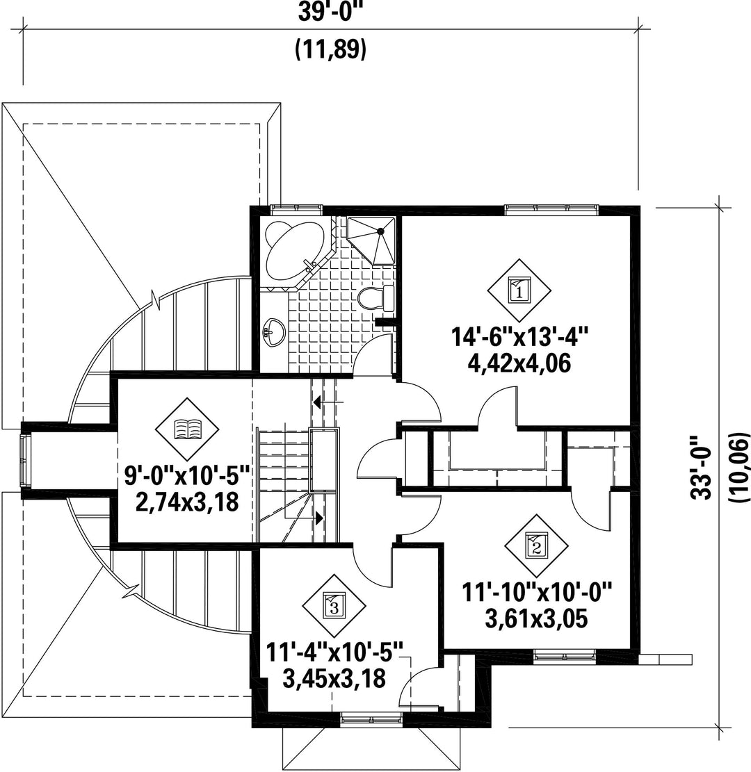
The upper floor covers 854 square feet and consists of a bathroom and three bedrooms including a master bedroom with a huge walk-in closet.
The ground floor has a 900 square foot living area that includes a closed entrance hall with lots of storage room, an open living and dining room, a functional kitchen, a powder room and a laundry room.
The upper floor covers 854 square feet and consists of a bathroom and three bedrooms including a master bedroom with a huge walk-in closet.
Additional info
Measurements: Imperial| House style | Manor |
Construction price
Approximate amount equivalent to what it would cost to have a general contractor (Montreal's South Shore region) build a similar home, excluding the lot and the infrastructure.
|
381692 $ |
|---|---|---|---|
| Front | 39 ft | Total living surface | 1865 ft² |
| Depth | 38 ft 4 in | Bathrooms | 1 |
| Height | 30 ft 7 in | Bedrooms | 3 |
| Master bedroom | Wardrobe | ||
| First floor area | 965 ft² | Exterior walls | Aluminum + Brick |
| Second floor area | 900 ft² | Kitchen | N / A |
| Garage area | 336 ft² | Garages | 1 |
| Garage wall | 8 ft | First floor wall | 8 ft |
| Second floor wall | 8 ft | Front/back roof slope | 8/12 |
| Left/right roof slope | 12/12 |
| House style | Manor |
|---|---|
|
Construction price
Approximate amount equivalent to what it would cost to have a general contractor (Montreal's South Shore region) build a similar home, excluding the lot and the infrastructure.
|
381692 $ |
| Front | 39 ft |
| Total living surface | 1865 ft² |
| Depth | 38 ft 4 in |
| Bathrooms | 1 |
| Height | 30 ft 7 in |
| Bedrooms | 3 |
| Master bedroom | Wardrobe |
| First floor area | 965 ft² |
| Exterior walls | Aluminum + Brick |
| Second floor area | 900 ft² |
| Kitchen | N / A |
| Garage area | 336 ft² |
| Garages | 1 |
| Garage wall | 8 ft |
| First floor wall | 8 ft |
| Second floor wall | 8 ft |
| Front/back roof slope | 8/12 |
| Left/right roof slope | 12/12 |