Description
This superb two-storey house is both modern and elegant thanks to the brick and horizontal aluminum facing and the French corners. The home is 40 feet wide by 34 feet 6 inches deep and provides 2,028 square feet of living area.
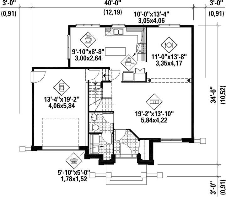
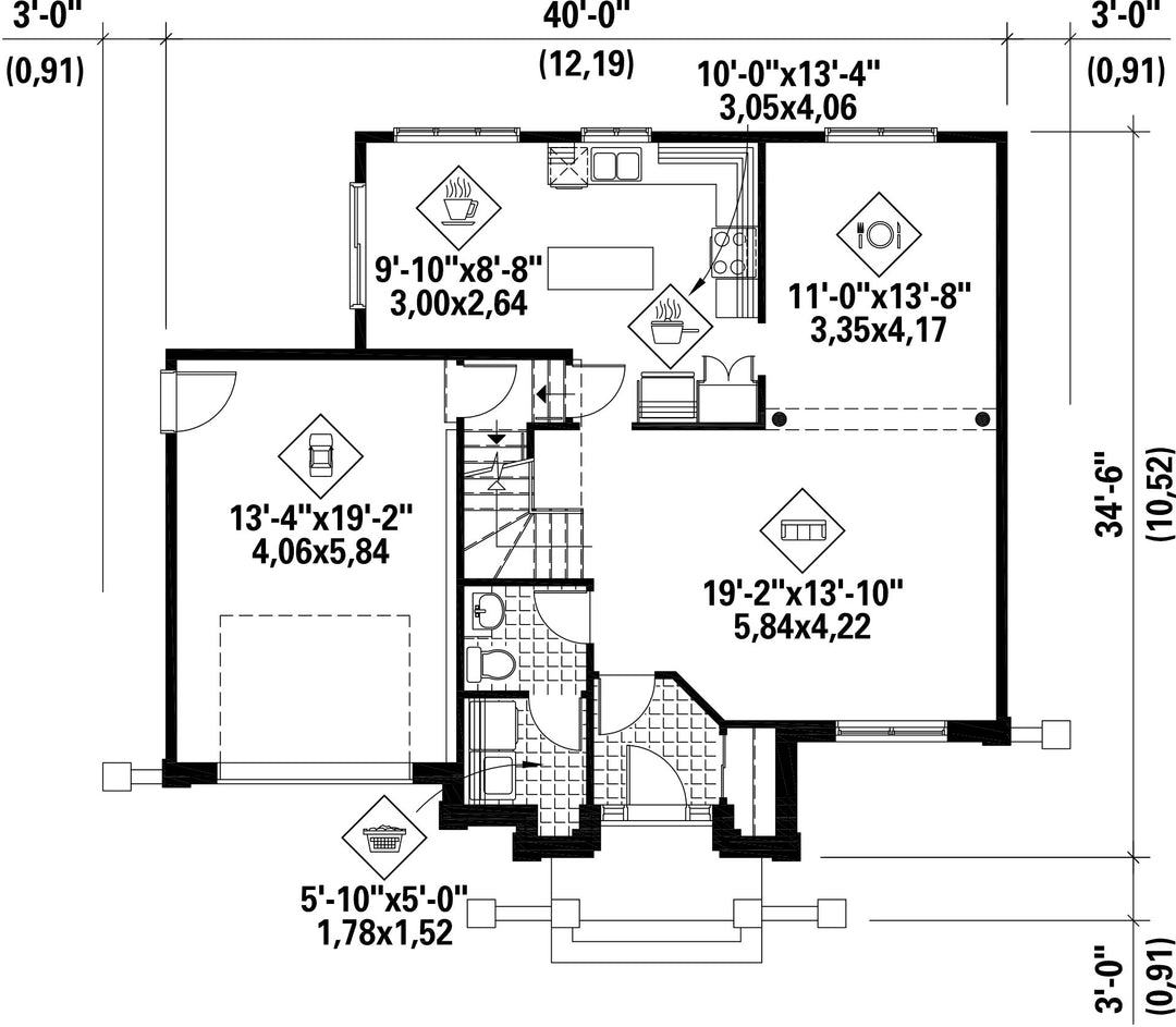
The ground floor covers 900 square foot and consists of a closed entrance hall, a large living room, a powder room with a laundry area, a functional kitchen with an island and a breakfast nook, a dining room, and a 283 square foot one-car garage.
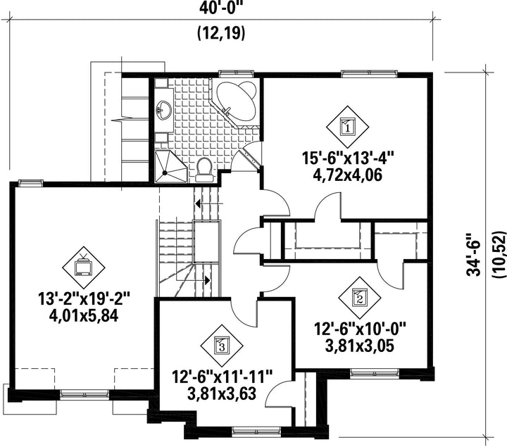
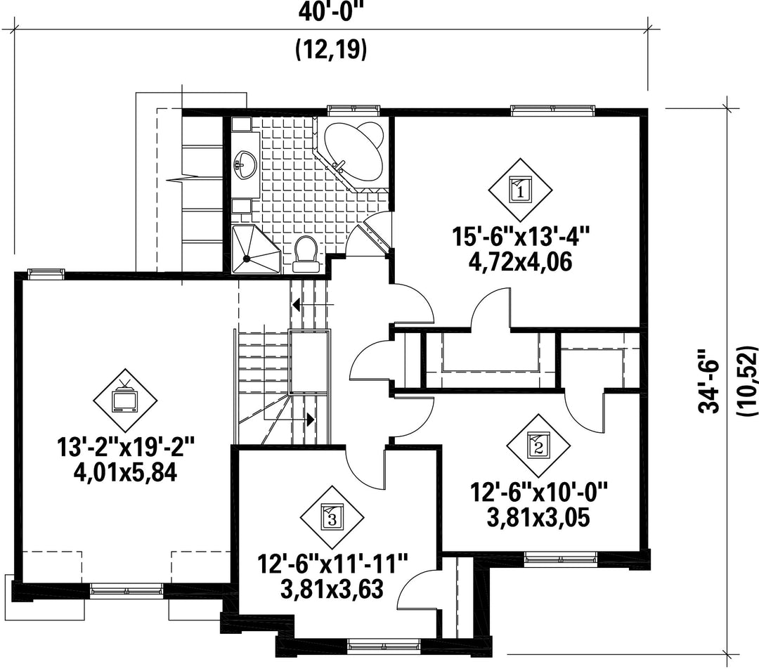
The upper floor has a 1,138 square foot living area that includes a den located above the garage, a bathroom with a podium bathtub, and three bedrooms.
The ground floor covers 900 square foot and consists of a closed entrance hall, a large living room, a powder room with a laundry area, a functional kitchen with an island and a breakfast nook, a dining room, and a 283 square foot one-car garage.
The upper floor has a 1,138 square foot living area that includes a den located above the garage, a bathroom with a podium bathtub, and three bedrooms.
Additional info
Measurements: Imperial| House style | Manor |
Construction price
Approximate amount equivalent to what it would cost to have a general contractor (Montreal's South Shore region) build a similar home, excluding the lot and the infrastructure.
|
411364 $ |
|---|---|---|---|
| Front | 40 ft | Total living surface | 2028 ft² |
| Depth | 34 ft 6 in | Bathrooms | 1 |
| Height | 34 ft 7 in | Bedrooms | 3 |
| Master bedroom | Pedestal bath + Shower + Single sink + Wardrobe + Toilet | ||
| First floor area | 890 ft² | Exterior walls | Aggregates + Aluminum + Brick |
| Second floor area | 1138 ft² | Kitchen | Dining area + Dining room + Island |
| Garage area | 283 ft² | Garages | 1 |
| Garage wall | 8 ft | First floor wall | 9 ft |
| Second floor wall | 8 ft | Front/back roof slope | 10/12 |
| Left/right roof slope | 14/12 |
| House style | Manor |
|---|---|
|
Construction price
Approximate amount equivalent to what it would cost to have a general contractor (Montreal's South Shore region) build a similar home, excluding the lot and the infrastructure.
|
411364 $ |
| Front | 40 ft |
| Total living surface | 2028 ft² |
| Depth | 34 ft 6 in |
| Bathrooms | 1 |
| Height | 34 ft 7 in |
| Bedrooms | 3 |
| Master bedroom | Pedestal bath + Shower + Single sink + Wardrobe + Toilet |
| First floor area | 890 ft² |
| Exterior walls | Aggregates + Aluminum + Brick |
| Second floor area | 1138 ft² |
| Kitchen | Dining area + Dining room + Island |
| Garage area | 283 ft² |
| Garages | 1 |
| Garage wall | 8 ft |
| First floor wall | 9 ft |
| Second floor wall | 8 ft |
| Front/back roof slope | 10/12 |
| Left/right roof slope | 14/12 |