Description
"Home theater room
Solarium"
Additional info
Measurements: Imperial| House style | Manor |
Construction price
Approximate amount equivalent to what it would cost to have a general contractor (Montreal's South Shore region) build a similar home, excluding the lot and the infrastructure.
|
834060 $ |
|---|---|---|---|
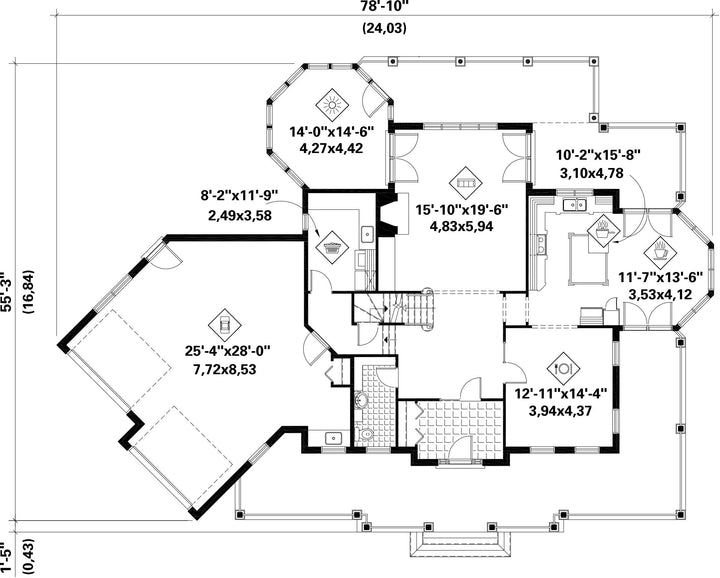
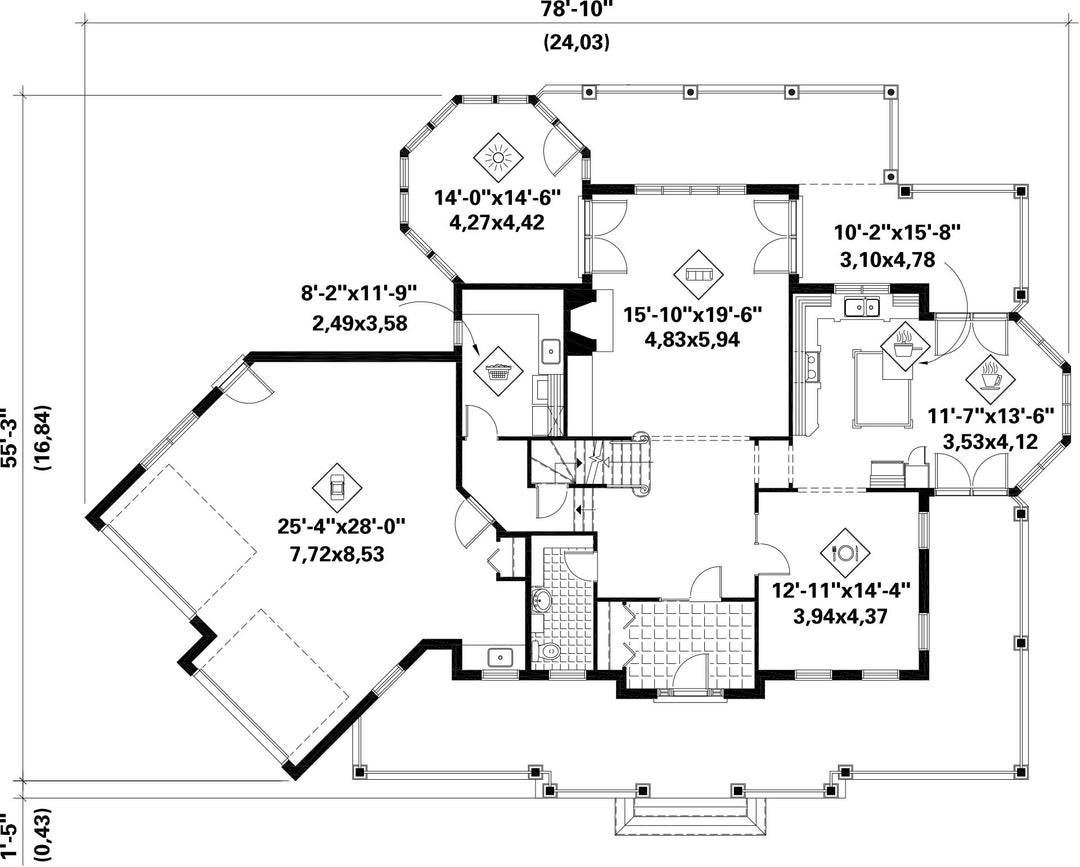
| Front | 78 ft 10 in | Total living surface | 3597 ft² |
| Depth | 55 ft 3 in | Bathrooms | 2 |
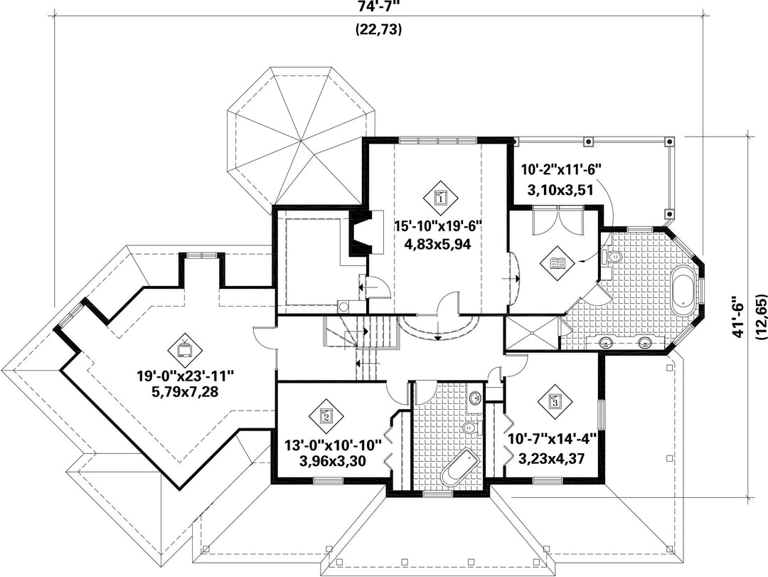
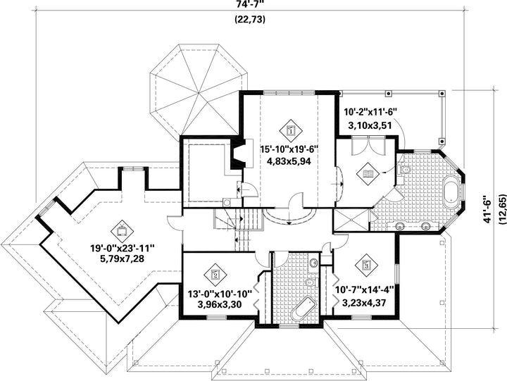
| Height | 37 ft | Bedrooms | 3 |
| Master bedroom | Podium bath + Shower + Fireplace + Double sink + Wardrobe + Double doors + Toilet | Master bedroom - comments | SLOPED CEILINGS IN THE MASTER BEDROOM, DEN IN THE MASTER BEDROOM |
| First floor area | 1645 ft² | Exterior walls | Aluminum + Stone |
| Second floor area | 1952 ft² | Kitchen | Dining area + L-shaped layout + Dining room + Island |
| Garage area | 758 ft² | Garages | 2 |
| Garage wall | 8 ft | First floor wall | 9 ft |
| Second floor wall | 8 ft | Front/back roof slope | 12/12 |
| Left/right roof slope | 12/12 |
| House style | Manor |
|---|---|
|
Construction price
Approximate amount equivalent to what it would cost to have a general contractor (Montreal's South Shore region) build a similar home, excluding the lot and the infrastructure.
|
834060 $ |
| Front | 78 ft 10 in |
| Total living surface | 3597 ft² |
| Depth | 55 ft 3 in |
| Bathrooms | 2 |
| Height | 37 ft |
| Bedrooms | 3 |
| Master bedroom | Podium bath + Shower + Fireplace + Double sink + Wardrobe + Double doors + Toilet |
| Master bedroom - comments | SLOPED CEILINGS IN THE MASTER BEDROOM, DEN IN THE MASTER BEDROOM |
| First floor area | 1645 ft² |
| Exterior walls | Aluminum + Stone |
| Second floor area | 1952 ft² |
| Kitchen | Dining area + L-shaped layout + Dining room + Island |
| Garage area | 758 ft² |
| Garages | 2 |
| Garage wall | 8 ft |
| First floor wall | 9 ft |
| Second floor wall | 8 ft |
| Front/back roof slope | 12/12 |
| Left/right roof slope | 12/12 |