Description
Solarium
Additional info
Measurements: Imperial| House style | Manor |
Construction price
Approximate amount equivalent to what it would cost to have a general contractor (Montreal's South Shore region) build a similar home, excluding the lot and the infrastructure.
|
660267 $ |
|---|---|---|---|
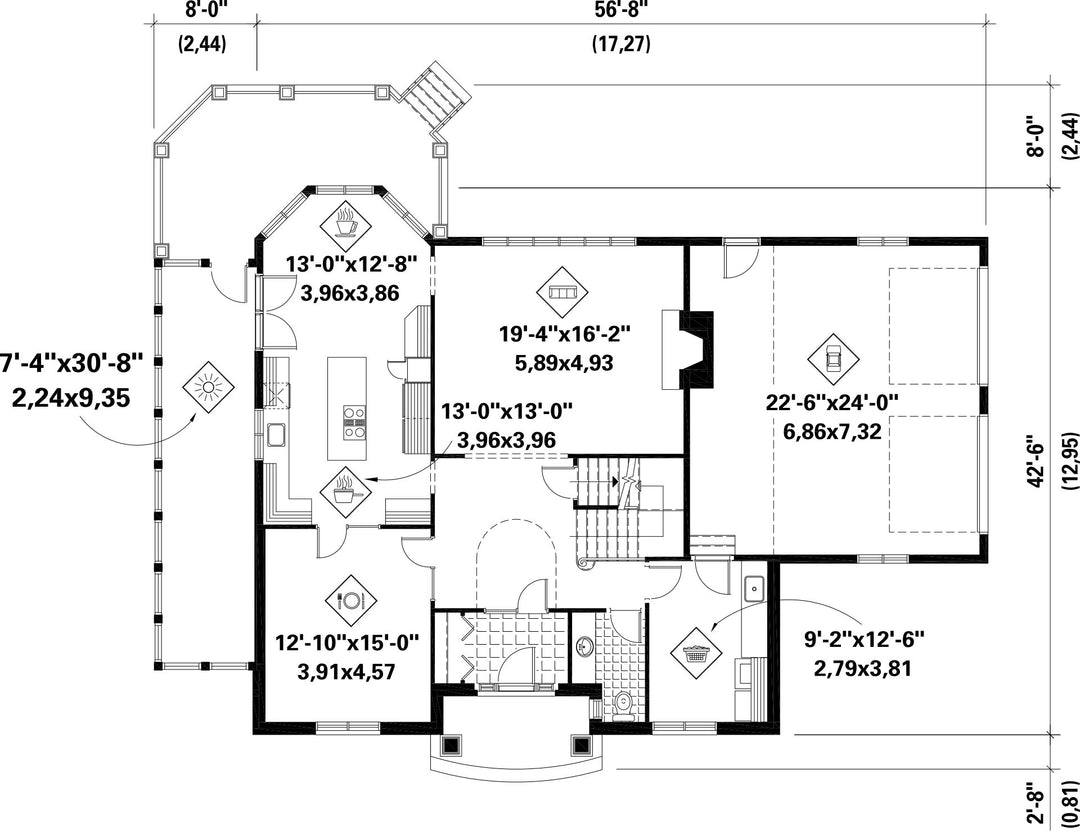
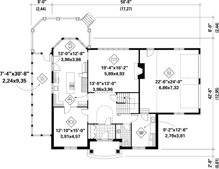
| Front | 56 ft 8 in | Total living surface | 2961 ft² |
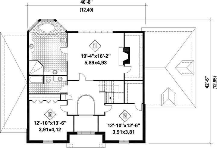
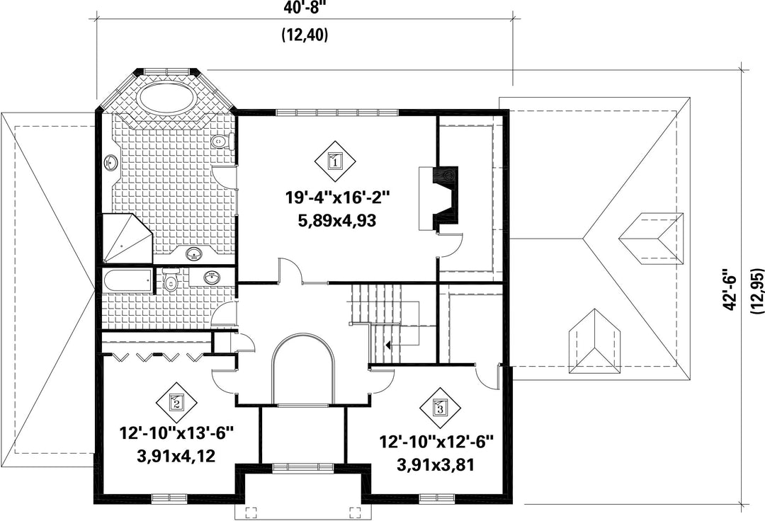
| Depth | 42 ft 6 in | Bathrooms | 2 |
| Height | 34 ft 8 in | Bedrooms | 3 |
| Master bedroom | Pedestal bath + Shower + Single sink + Wardrobe + Double doors + Toilet | Master bedroom - comments | FIREPLACE IN THE MASTER BEDROOM |
| First floor area | 1401 ft² | Exterior walls | Aggregates + Stone |
| Second floor area | 1560 ft² | Kitchen | Dining area + U-shape + Dining room + Island |
| Garage area | 572 ft² | Garages | 2 |
| Garage wall | 8 ft | First floor wall | 9 ft |
| Second floor wall | 8 ft | Front/back roof slope | 9/12 |
| Left/right roof slope | 18/12 |
| House style | Manor |
|---|---|
|
Construction price
Approximate amount equivalent to what it would cost to have a general contractor (Montreal's South Shore region) build a similar home, excluding the lot and the infrastructure.
|
660267 $ |
| Front | 56 ft 8 in |
| Total living surface | 2961 ft² |
| Depth | 42 ft 6 in |
| Bathrooms | 2 |
| Height | 34 ft 8 in |
| Bedrooms | 3 |
| Master bedroom | Pedestal bath + Shower + Single sink + Wardrobe + Double doors + Toilet |
| Master bedroom - comments | FIREPLACE IN THE MASTER BEDROOM |
| First floor area | 1401 ft² |
| Exterior walls | Aggregates + Stone |
| Second floor area | 1560 ft² |
| Kitchen | Dining area + U-shape + Dining room + Island |
| Garage area | 572 ft² |
| Garages | 2 |
| Garage wall | 8 ft |
| First floor wall | 9 ft |
| Second floor wall | 8 ft |
| Front/back roof slope | 9/12 |
| Left/right roof slope | 18/12 |