Description
NULL
Additional info
Measurements: Imperial| House style | Manor |
Construction price
Approximate amount equivalent to what it would cost to have a general contractor (Montreal's South Shore region) build a similar home, excluding the lot and the infrastructure.
|
707903 $ |
|---|---|---|---|
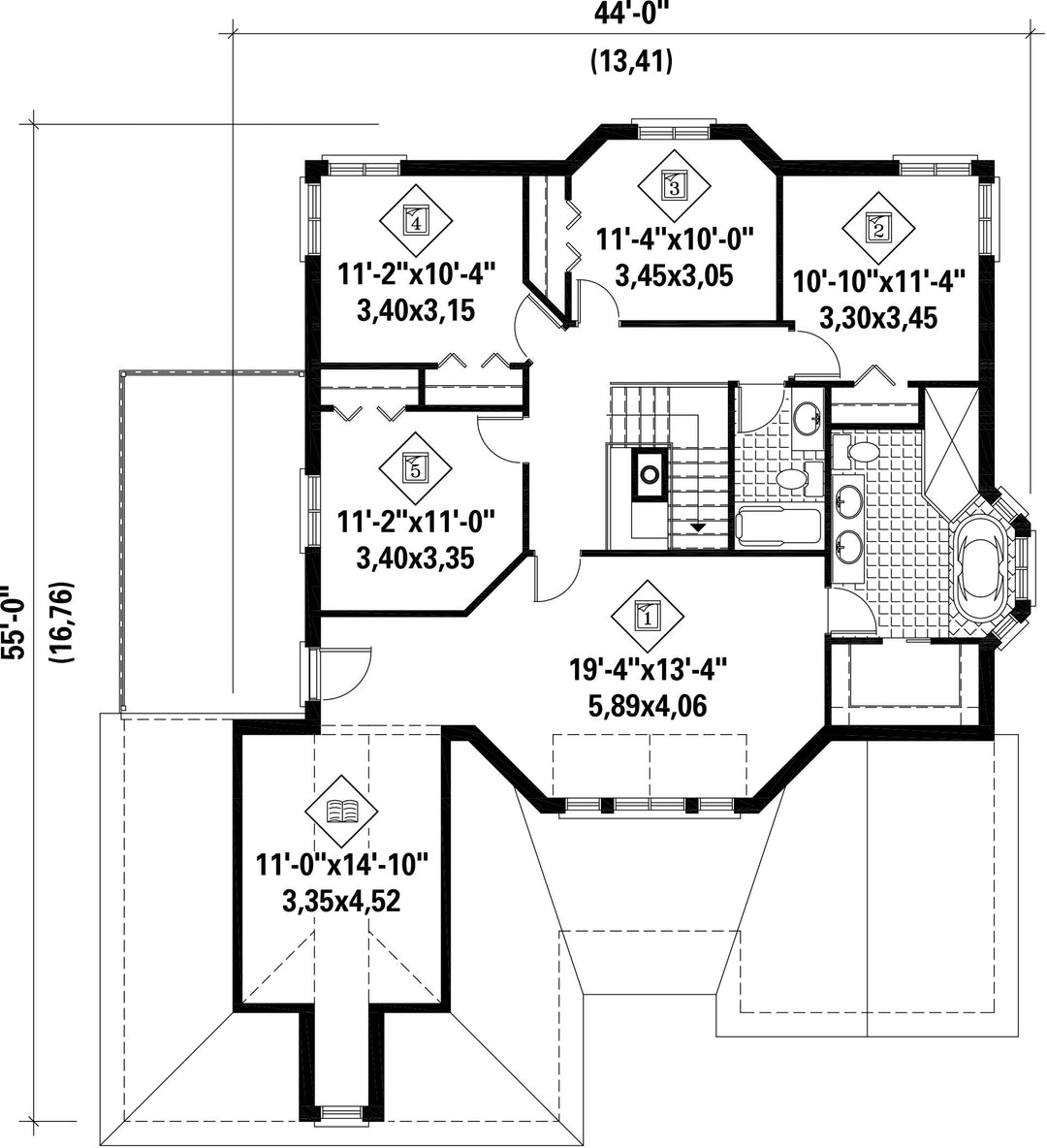
| Front | 50 ft | Total living surface | 3097 ft² |
| Depth | 55 ft | Bathrooms | 2 |
| Height | 38 ft 4 in | Bedrooms | 5 |
| Master bedroom | Pedestal bath + Shower + Double sink + Wardrobe + Toilet | ||
| First floor area | 1570 ft² | Exterior walls | Aggregates + Stone |
| Second floor area | 1527 ft² | Kitchen | Dining area + U-shape + Dining room |
| Garage area | 511 ft² | Garages | 2 |
| Garage wall | 8 ft | First floor wall | 9 ft |
| Second floor wall | 8 ft | Front/back roof slope | 12/12 |
| Left/right roof slope | 12/12 |
| House style | Manor |
|---|---|
|
Construction price
Approximate amount equivalent to what it would cost to have a general contractor (Montreal's South Shore region) build a similar home, excluding the lot and the infrastructure.
|
707903 $ |
| Front | 50 ft |
| Total living surface | 3097 ft² |
| Depth | 55 ft |
| Bathrooms | 2 |
| Height | 38 ft 4 in |
| Bedrooms | 5 |
| Master bedroom | Pedestal bath + Shower + Double sink + Wardrobe + Toilet |
| First floor area | 1570 ft² |
| Exterior walls | Aggregates + Stone |
| Second floor area | 1527 ft² |
| Kitchen | Dining area + U-shape + Dining room |
| Garage area | 511 ft² |
| Garages | 2 |
| Garage wall | 8 ft |
| First floor wall | 9 ft |
| Second floor wall | 8 ft |
| Front/back roof slope | 12/12 |
| Left/right roof slope | 12/12 |