Description
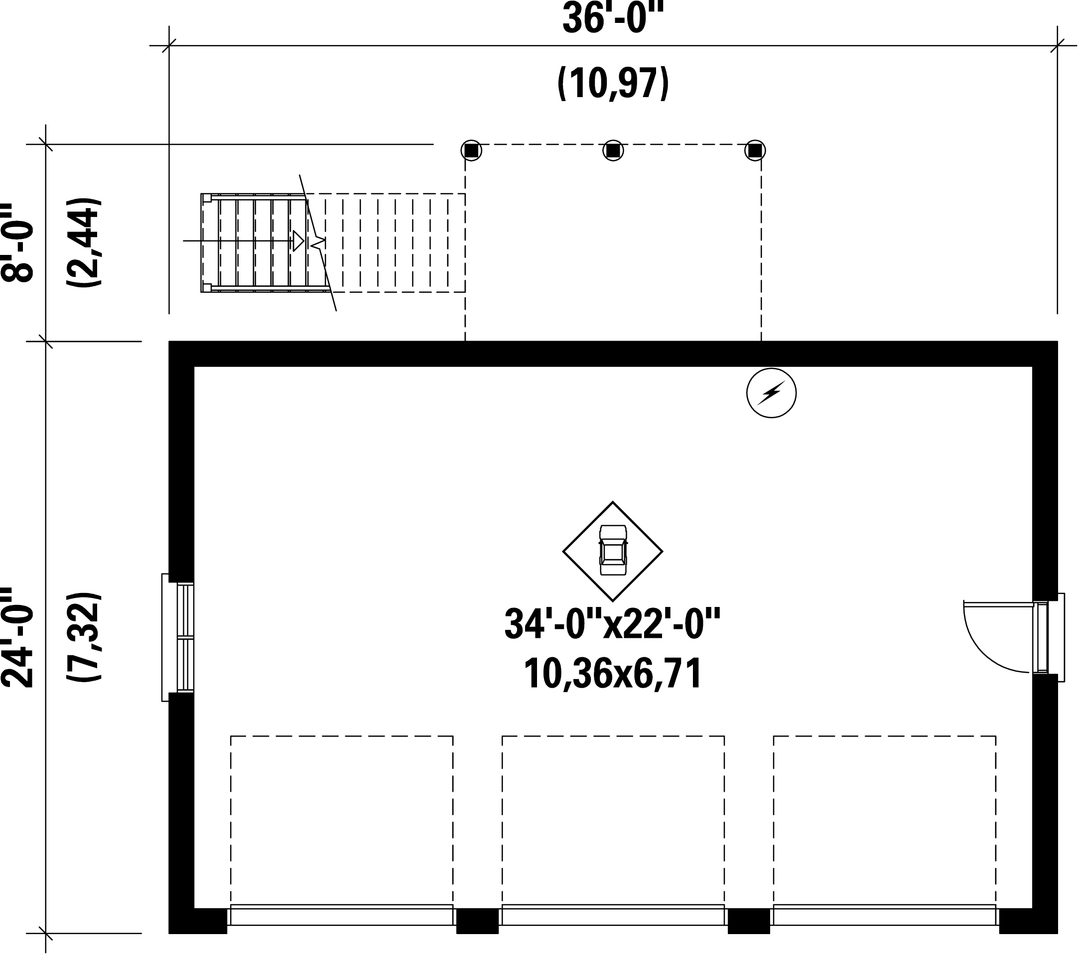
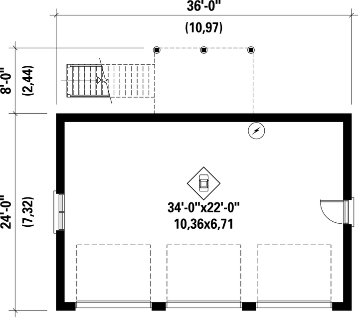
This elegant and spacious garage loft will meet all your needs. The garage can accommodate three cars and includes a window on the left side as well as an entrance door on the right side.
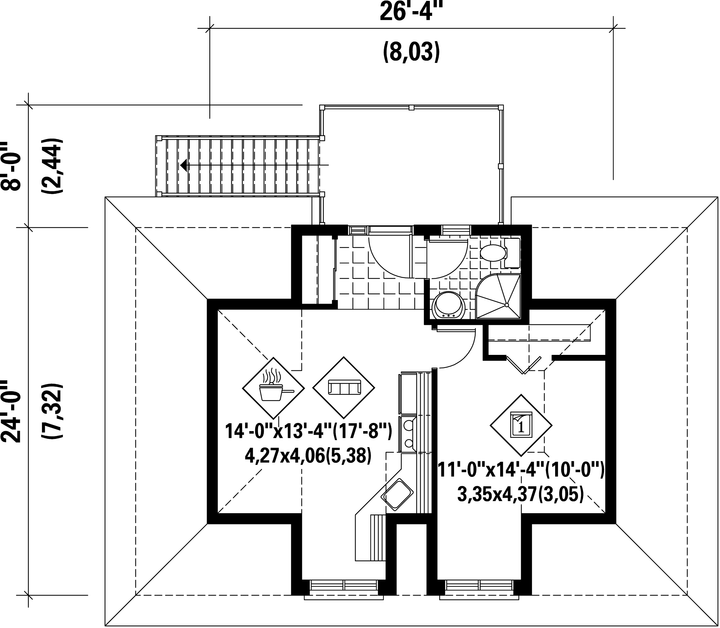
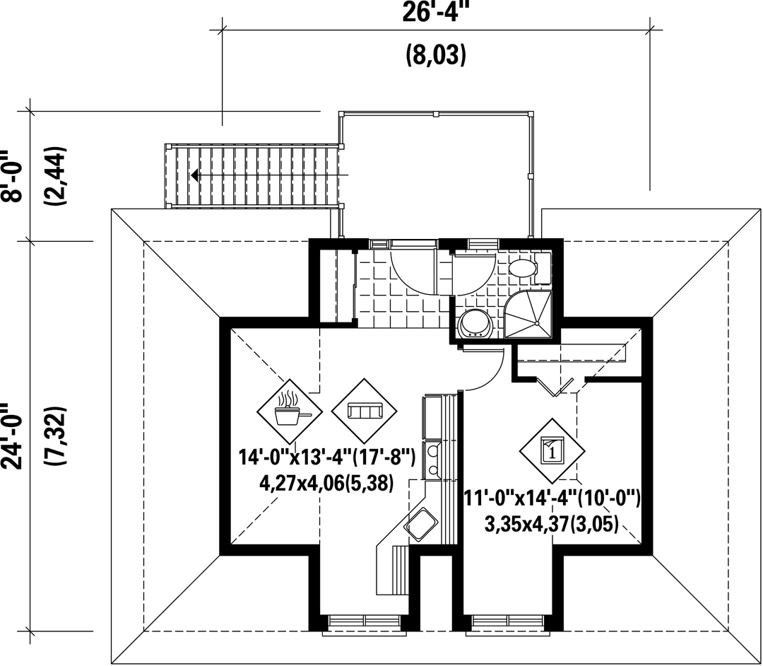
An outside staircase located in the back provides direct access to the loft on the upper floor, which includes a bathroom, a bedroom as well as an open living and dining room.
An outside staircase located in the back provides direct access to the loft on the upper floor, which includes a bathroom, a bedroom as well as an open living and dining room.
Additional info
Measurements: Imperial| House style | Manor |
Construction price
Approximate amount equivalent to what it would cost to have a general contractor (Montreal's South Shore region) build a similar home, excluding the lot and the infrastructure.
|
195381 $ |
|---|---|---|---|
| Front | 36 ft | Total living surface | 483 ft² |
| Depth | 24 ft | Bathrooms | 1 |
| Height | 24 ft 8 in | Bedrooms | 1 |
| Master bedroom | N / A | ||
| Exterior walls | Rock | ||
| Second floor area | 483 ft² | Kitchen | Laboratory |
| Garage area | 864 ft² | Garages | 3 and more |
| Garage wall | 8 ft | First floor wall | 8 ft |
| Second floor wall | 8 ft | Front/back roof slope | 12/12 |
| Left/right roof slope | 12/12 |
| House style | Manor |
|---|---|
|
Construction price
Approximate amount equivalent to what it would cost to have a general contractor (Montreal's South Shore region) build a similar home, excluding the lot and the infrastructure.
|
195381 $ |
| Front | 36 ft |
| Total living surface | 483 ft² |
| Depth | 24 ft |
| Bathrooms | 1 |
| Height | 24 ft 8 in |
| Bedrooms | 1 |
| Master bedroom | N / A |
| Exterior walls | Rock |
| Second floor area | 483 ft² |
| Kitchen | Laboratory |
| Garage area | 864 ft² |
| Garages | 3 and more |
| Garage wall | 8 ft |
| First floor wall | 8 ft |
| Second floor wall | 8 ft |
| Front/back roof slope | 12/12 |
| Left/right roof slope | 12/12 |