Description
At first glance, this house's country style is unmistakable. Outside, the stone and wood siding in earthy shades are perfectly coordinated. Supported by two columns, the porch's pyramidal roof protrudes over the front door. The roof's two gables accentuate the structure's height. The garage doors, front door and shutters in dark wood enhance the house's rustic appearance. This two-storey residence is 73 feet 10 inches wide by 67 feet 6 inches deep and has a 4,897 square feet living area.
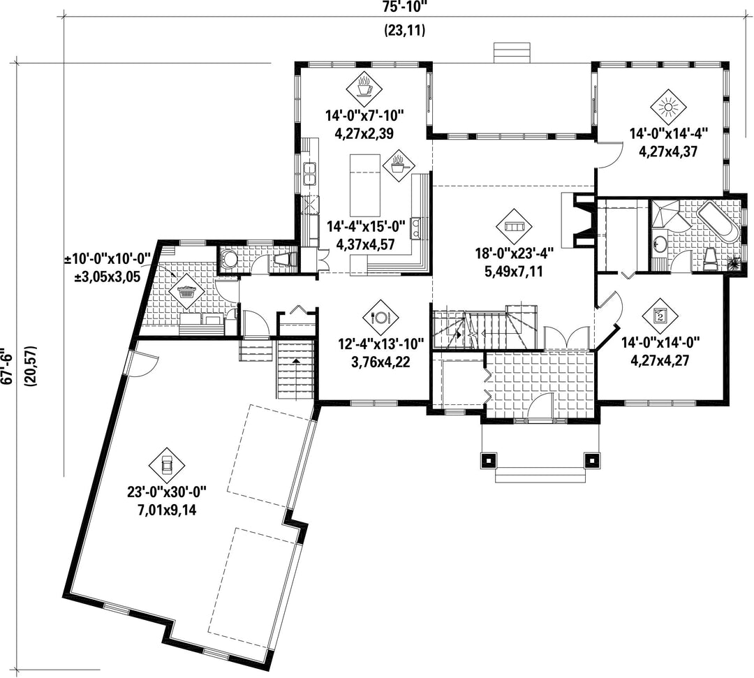
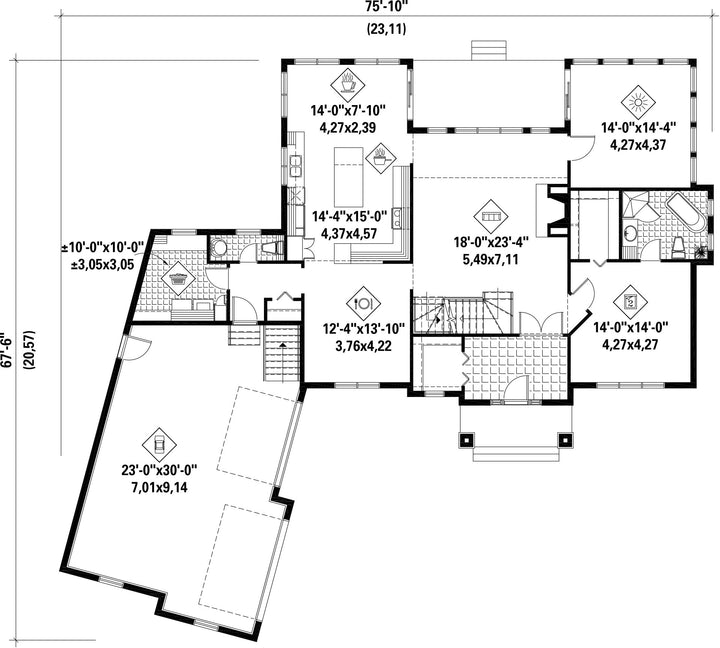
The ground floor, with a living area of 1900 square feet, includes a kitchen with an island, a dining room, a living room with a fireplace, a solarium, a bedroom, a powder room, a laundry room and a 756 square feet two-car garage.
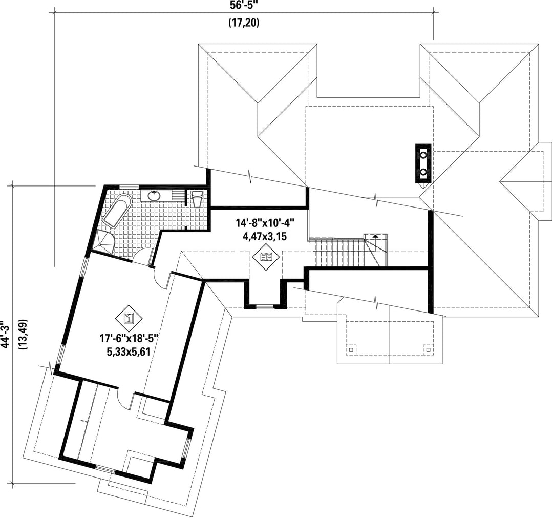
The second floor covers 938 square feet and consists of a bedroom with a large walk-in closet and private bathroom, as well as a reading area.
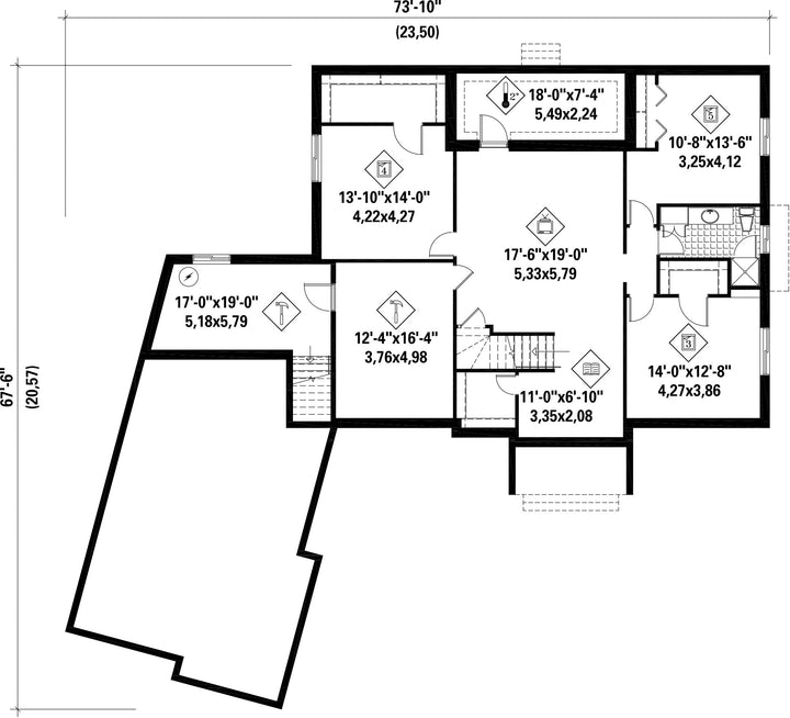
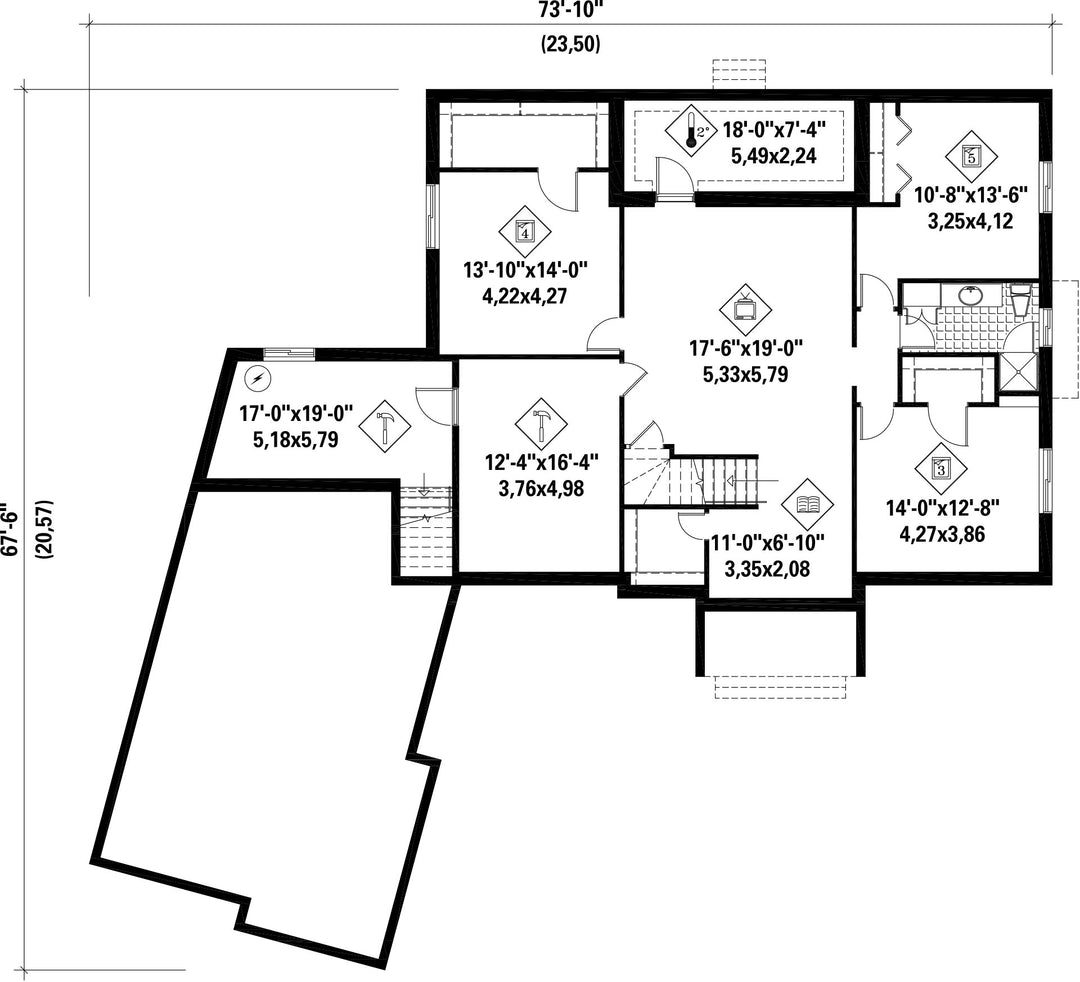
The basement has 2,059 square feet of living area and includes a reading room, a den, a bathroom, three bedrooms, a cellar as well as two rooms that can either be used as storage areas or as a workshop for artists or do-it-yourselfers.
The ground floor, with a living area of 1900 square feet, includes a kitchen with an island, a dining room, a living room with a fireplace, a solarium, a bedroom, a powder room, a laundry room and a 756 square feet two-car garage.
The second floor covers 938 square feet and consists of a bedroom with a large walk-in closet and private bathroom, as well as a reading area.
The basement has 2,059 square feet of living area and includes a reading room, a den, a bathroom, three bedrooms, a cellar as well as two rooms that can either be used as storage areas or as a workshop for artists or do-it-yourselfers.
Additional info
Measurements: Imperial| House style | Manor |
Construction price
Approximate amount equivalent to what it would cost to have a general contractor (Montreal's South Shore region) build a similar home, excluding the lot and the infrastructure.
|
723866 $ |
|---|---|---|---|
| Front | 73 ft 10 in | Total living surface | 4897 ft² |
| Depth | 67 ft 6 in | Bathrooms | 3 |
| Height | 30 ft | Bedrooms | 5 |
| Master bedroom | Bathtub + Bathtub with raised platform + Shower + Single sink + Wardrobe + Toilet | ||
| First floor area | 1900 ft² | Exterior walls | Aluminum + Stone |
| Second floor area | 938 ft² | Kitchen | Dining area + Dining room + Island |
| Garage area | 756 ft² | Garages | 2 |
| Garage wall | 8 ft | First floor wall | 9 ft |
| Second floor wall | 8 ft | Front/back roof slope | 12/12 |
| Left/right roof slope | 12/12 | Basement area | 2059 ft² |
| House style | Manor |
|---|---|
|
Construction price
Approximate amount equivalent to what it would cost to have a general contractor (Montreal's South Shore region) build a similar home, excluding the lot and the infrastructure.
|
723866 $ |
| Front | 73 ft 10 in |
| Total living surface | 4897 ft² |
| Depth | 67 ft 6 in |
| Bathrooms | 3 |
| Height | 30 ft |
| Bedrooms | 5 |
| Master bedroom | Bathtub + Bathtub with raised platform + Shower + Single sink + Wardrobe + Toilet |
| First floor area | 1900 ft² |
| Exterior walls | Aluminum + Stone |
| Second floor area | 938 ft² |
| Kitchen | Dining area + Dining room + Island |
| Garage area | 756 ft² |
| Garages | 2 |
| Garage wall | 8 ft |
| First floor wall | 9 ft |
| Second floor wall | 8 ft |
| Front/back roof slope | 12/12 |
| Left/right roof slope | 12/12 |
| Basement area | 2059 ft² |