Description
With 2,079 square feet of living space, this elegant two-storey stone house stands out with its large windows. The home is 50 feet wide by 36 feet 6 inches deep.
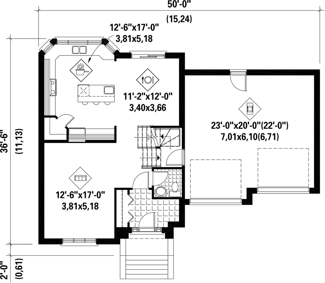
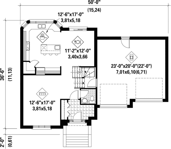
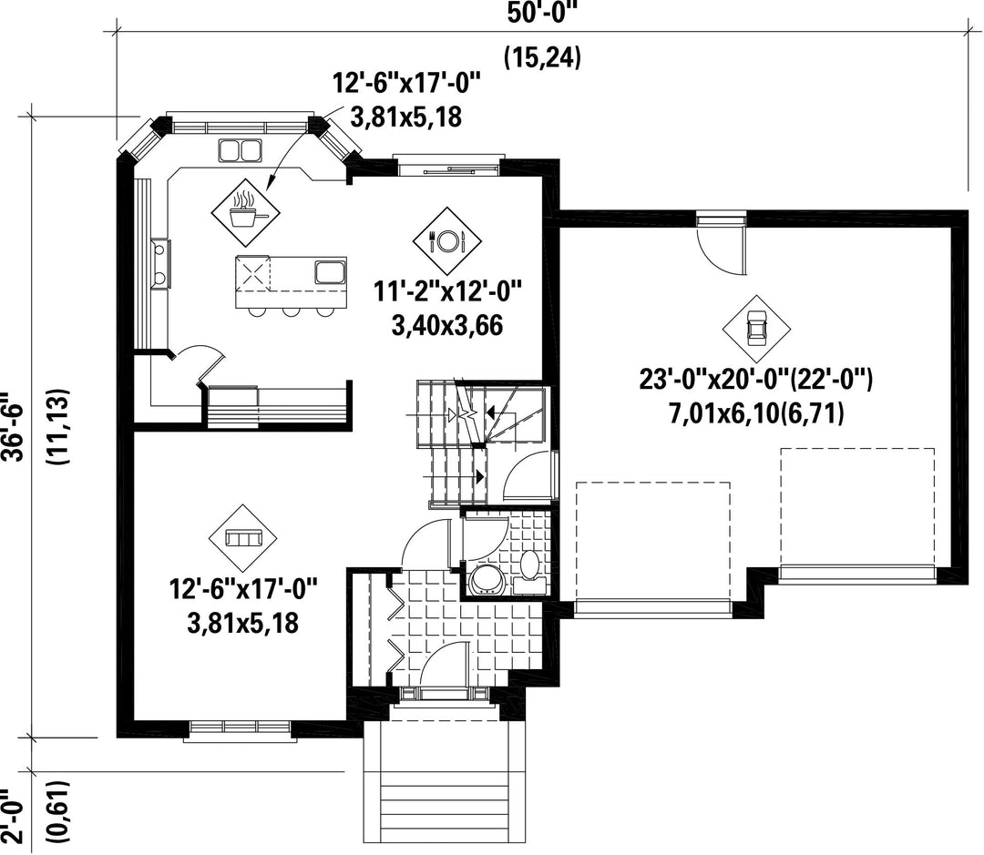
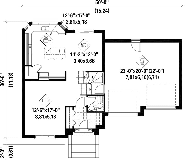
The ground floor has 892 square feet of living space and includes a closed entrance hall, a living room, a powder room, a kitchen with an island and a corner pantry, a dining room, and a 552 square foot two-car garage.
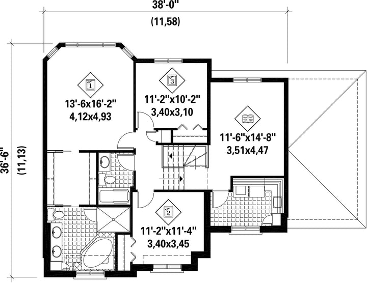
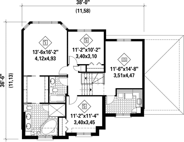
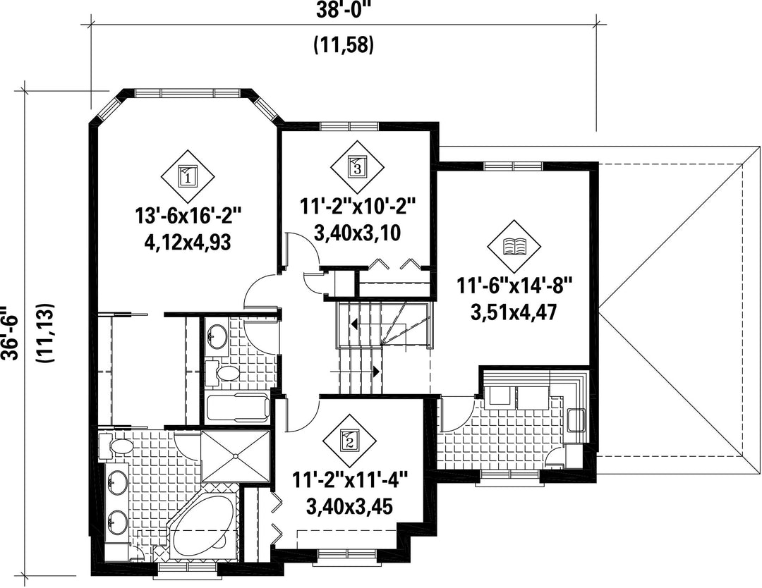
The second floor covers 1,187 square feet and consists of a den and a laundry room located above the garage, a family bathroom, and three bedrooms, including a master bedroom with a walk-in closet and a private bathroom.
The ground floor has 892 square feet of living space and includes a closed entrance hall, a living room, a powder room, a kitchen with an island and a corner pantry, a dining room, and a 552 square foot two-car garage.
The second floor covers 1,187 square feet and consists of a den and a laundry room located above the garage, a family bathroom, and three bedrooms, including a master bedroom with a walk-in closet and a private bathroom.
Additional info
Measurements: Imperial| House style | Manor |
Construction price
Approximate amount equivalent to what it would cost to have a general contractor (Montreal's South Shore region) build a similar home, excluding the lot and the infrastructure.
|
483307 $ |
|---|---|---|---|
| Front | 50 ft | Total living surface | 2079 ft² |
| Depth | 36 ft 6 in | Bathrooms | 2 |
| Height | 36 ft 4 in | Bedrooms | 3 |
| Master bedroom | Pedestal bath + Shower + Double sink + Wardrobe + Toilet | ||
| First floor area | 892 ft² | Exterior walls | Aluminum + Stone |
| Second floor area | 1187 ft² | Kitchen | Meal counter + Island |
| Garage area | 552 ft² | Garages | 2 |
| Garage wall | 8 ft | First floor wall | 8 ft |
| Second floor wall | 8 ft | Front/back roof slope | 12/12 |
| Left/right roof slope | 12/12 |
| House style | Manor |
|---|---|
|
Construction price
Approximate amount equivalent to what it would cost to have a general contractor (Montreal's South Shore region) build a similar home, excluding the lot and the infrastructure.
|
483307 $ |
| Front | 50 ft |
| Total living surface | 2079 ft² |
| Depth | 36 ft 6 in |
| Bathrooms | 2 |
| Height | 36 ft 4 in |
| Bedrooms | 3 |
| Master bedroom | Pedestal bath + Shower + Double sink + Wardrobe + Toilet |
| First floor area | 892 ft² |
| Exterior walls | Aluminum + Stone |
| Second floor area | 1187 ft² |
| Kitchen | Meal counter + Island |
| Garage area | 552 ft² |
| Garages | 2 |
| Garage wall | 8 ft |
| First floor wall | 8 ft |
| Second floor wall | 8 ft |
| Front/back roof slope | 12/12 |
| Left/right roof slope | 12/12 |