Description
Inviting and elegant, this magnificent 3,288 square foot two-storey house stands out with its immaculate exterior, a large veranda surrounding the front, stone and aluminum facing, and a 792 square foot two-car garage with an access to the basement. The house is 73 feet wide by 51 feet deep.
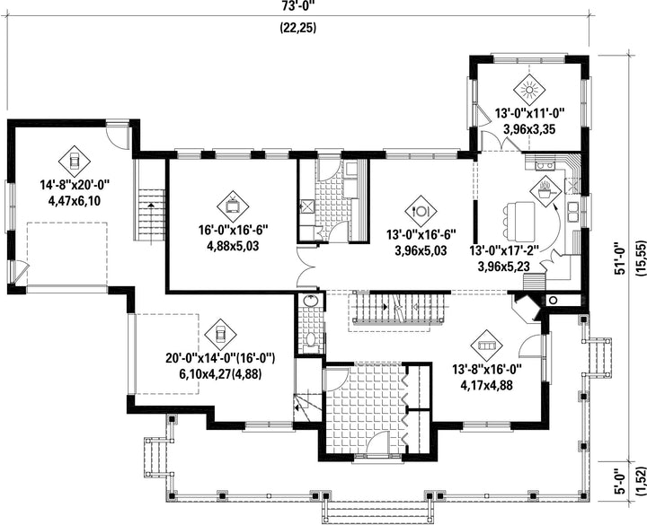
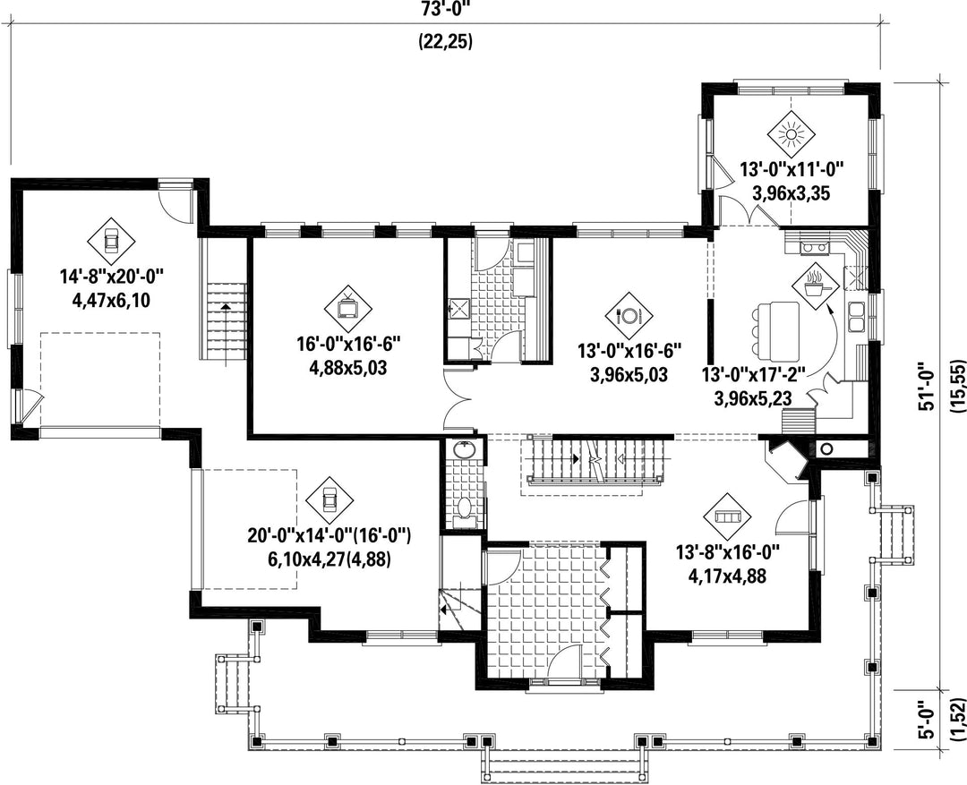
With a 1,723 square foot living area, the ground floor includes a huge entrance hall, a living room with a corner fireplace, a powder room, a kitchen with a central island that opens onto a solarium, a dining room, a laundry room and a family room.
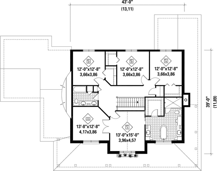
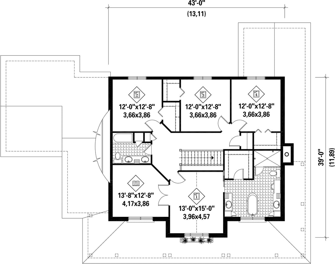
The upper floor, with 1,622 square feet of living area, includes a large bathroom and four bedrooms, three of which are identical. The spacious master bedroom with a cathedral ceiling is located at the front of the house, and includes a reading room and a roomy walk-in closet in the private bathroom.
With a 1,723 square foot living area, the ground floor includes a huge entrance hall, a living room with a corner fireplace, a powder room, a kitchen with a central island that opens onto a solarium, a dining room, a laundry room and a family room.
The upper floor, with 1,622 square feet of living area, includes a large bathroom and four bedrooms, three of which are identical. The spacious master bedroom with a cathedral ceiling is located at the front of the house, and includes a reading room and a roomy walk-in closet in the private bathroom.
Additional info
Measurements: Imperial| House style | Manor |
Construction price
Approximate amount equivalent to what it would cost to have a general contractor (Montreal's South Shore region) build a similar home, excluding the lot and the infrastructure.
|
838952 $ |
|---|---|---|---|
| Front | 73 ft | Total living surface | 3288 ft² |
| Depth | 51 ft | Bathrooms | 2 |
| Height | 38 ft | Bedrooms | 4 |
| Master bedroom | Pedestal bath + Shower + Single sink + Wardrobe + Toilet | ||
| First floor area | 1723 ft² | Exterior walls | Aluminum + Stone |
| Second floor area | 1565 ft² | Kitchen | Breakfast bar + U-shape + Dining room + Island |
| Garage area | 792 ft² | Garages | 2 |
| Garage wall | 8 ft | First floor wall | 9 ft |
| Second floor wall | 10 ft | Front/back roof slope | 10/12 |
| Left/right roof slope | 12/12 |
| House style | Manor |
|---|---|
|
Construction price
Approximate amount equivalent to what it would cost to have a general contractor (Montreal's South Shore region) build a similar home, excluding the lot and the infrastructure.
|
838952 $ |
| Front | 73 ft |
| Total living surface | 3288 ft² |
| Depth | 51 ft |
| Bathrooms | 2 |
| Height | 38 ft |
| Bedrooms | 4 |
| Master bedroom | Pedestal bath + Shower + Single sink + Wardrobe + Toilet |
| First floor area | 1723 ft² |
| Exterior walls | Aluminum + Stone |
| Second floor area | 1565 ft² |
| Kitchen | Breakfast bar + U-shape + Dining room + Island |
| Garage area | 792 ft² |
| Garages | 2 |
| Garage wall | 8 ft |
| First floor wall | 9 ft |
| Second floor wall | 10 ft |
| Front/back roof slope | 10/12 |
| Left/right roof slope | 12/12 |