Description
This impressive two-storey stone house is adorned with decorative moldings and has a lovely turret in the front. The home is 54 feet wide by 51 feet deep and provides 3,131 square feet of living space.
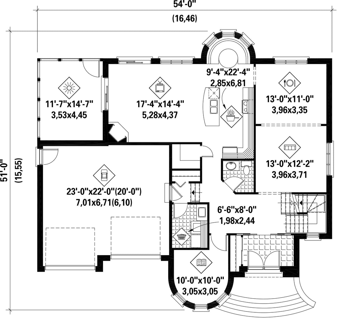
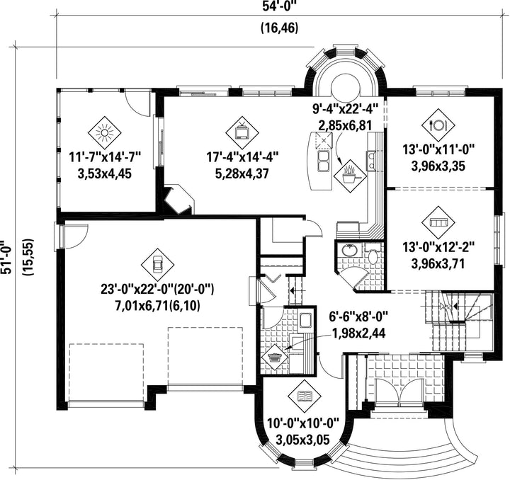
The ground floor has a 1,434 square foot living area that includes a reading room, a living room, a dining room, a den with a corner fireplace, a powder room, a laundry room, a large L-shaped kitchen with an island and a breakfast nook located in the rear turret, as well as a 546 square foot two-car garage.
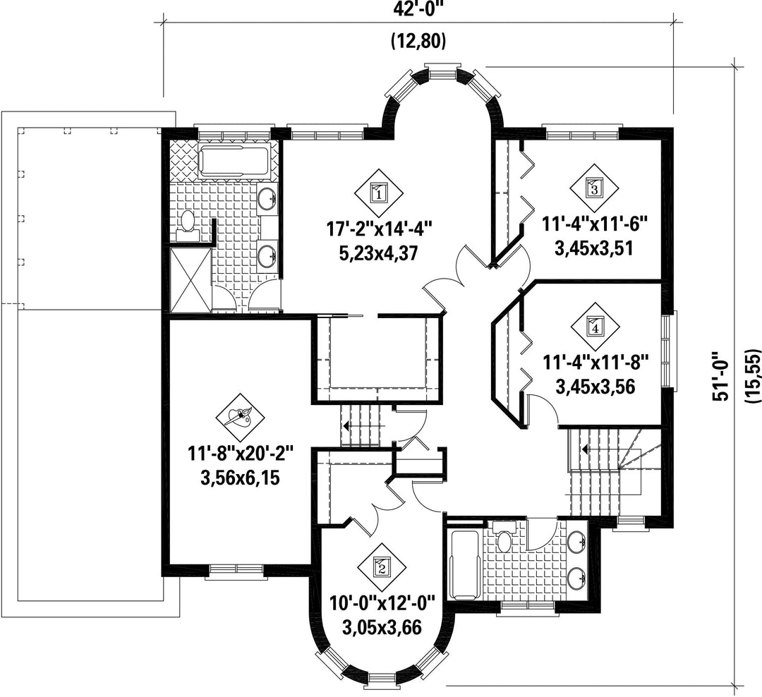
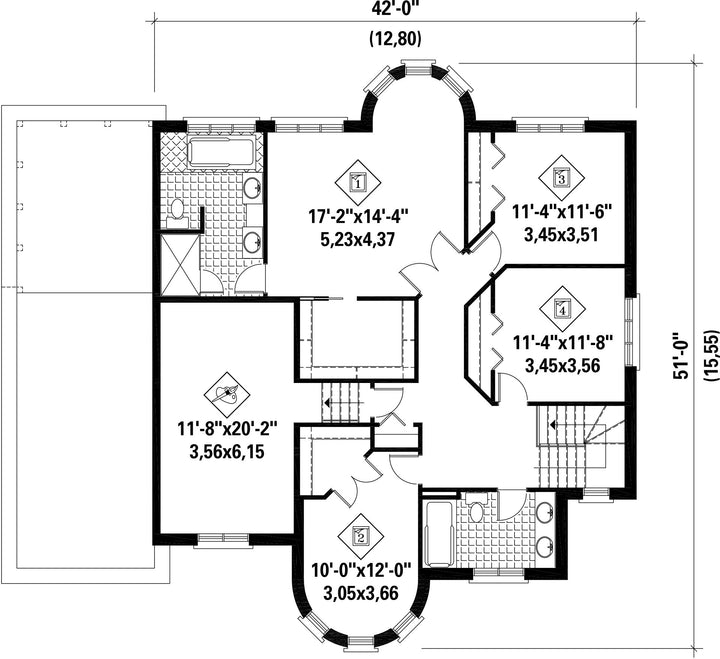
The second floor covers 1,697 square feet and consists of a family bathroom, a den located above the garage, and four bedrooms, including a master bedroom with a private bathroom and a huge walk-in closet.
The ground floor has a 1,434 square foot living area that includes a reading room, a living room, a dining room, a den with a corner fireplace, a powder room, a laundry room, a large L-shaped kitchen with an island and a breakfast nook located in the rear turret, as well as a 546 square foot two-car garage.
The second floor covers 1,697 square feet and consists of a family bathroom, a den located above the garage, and four bedrooms, including a master bedroom with a private bathroom and a huge walk-in closet.
Additional info
Measurements: Imperial| House style | Manor |
Construction price
Approximate amount equivalent to what it would cost to have a general contractor (Montreal's South Shore region) build a similar home, excluding the lot and the infrastructure.
|
705727 $ |
|---|---|---|---|
| Front | 54 ft | Total living surface | 3131 ft² |
| Depth | 51 ft | Bathrooms | 2 |
| Height | 47 ft 1 in | Bedrooms | 4 |
| Master bedroom | Bathtub + Shower + Double sink + Wardrobe + Double doors + Toilet | ||
| First floor area | 1434 ft² | Exterior walls | Aggregates + Stone |
| Second floor area | 1697 ft² | Kitchen | Dining area + L-shaped layout + Dining room + Island |
| Garage area | 546 ft² | Garages | 2 |
| Garage wall | 8 ft | First floor wall | 9 ft |
| Second floor wall | 8 ft | Front/back roof slope | 16/12 |
| Left/right roof slope | 16/12 |
| House style | Manor |
|---|---|
|
Construction price
Approximate amount equivalent to what it would cost to have a general contractor (Montreal's South Shore region) build a similar home, excluding the lot and the infrastructure.
|
705727 $ |
| Front | 54 ft |
| Total living surface | 3131 ft² |
| Depth | 51 ft |
| Bathrooms | 2 |
| Height | 47 ft 1 in |
| Bedrooms | 4 |
| Master bedroom | Bathtub + Shower + Double sink + Wardrobe + Double doors + Toilet |
| First floor area | 1434 ft² |
| Exterior walls | Aggregates + Stone |
| Second floor area | 1697 ft² |
| Kitchen | Dining area + L-shaped layout + Dining room + Island |
| Garage area | 546 ft² |
| Garages | 2 |
| Garage wall | 8 ft |
| First floor wall | 9 ft |
| Second floor wall | 8 ft |
| Front/back roof slope | 16/12 |
| Left/right roof slope | 16/12 |