Description
This prestigious two-storey house is 48 feet wide by 53 feet deep and has 2,718 square feet of living area.
With 1,494 square feet of living area, the ground floor includes a practical dining area next to the kitchen, a dining room, a reading room, a living room and a den with a fireplace. There is also a powder room, a laundry room and a 467 square feet two-car garage.
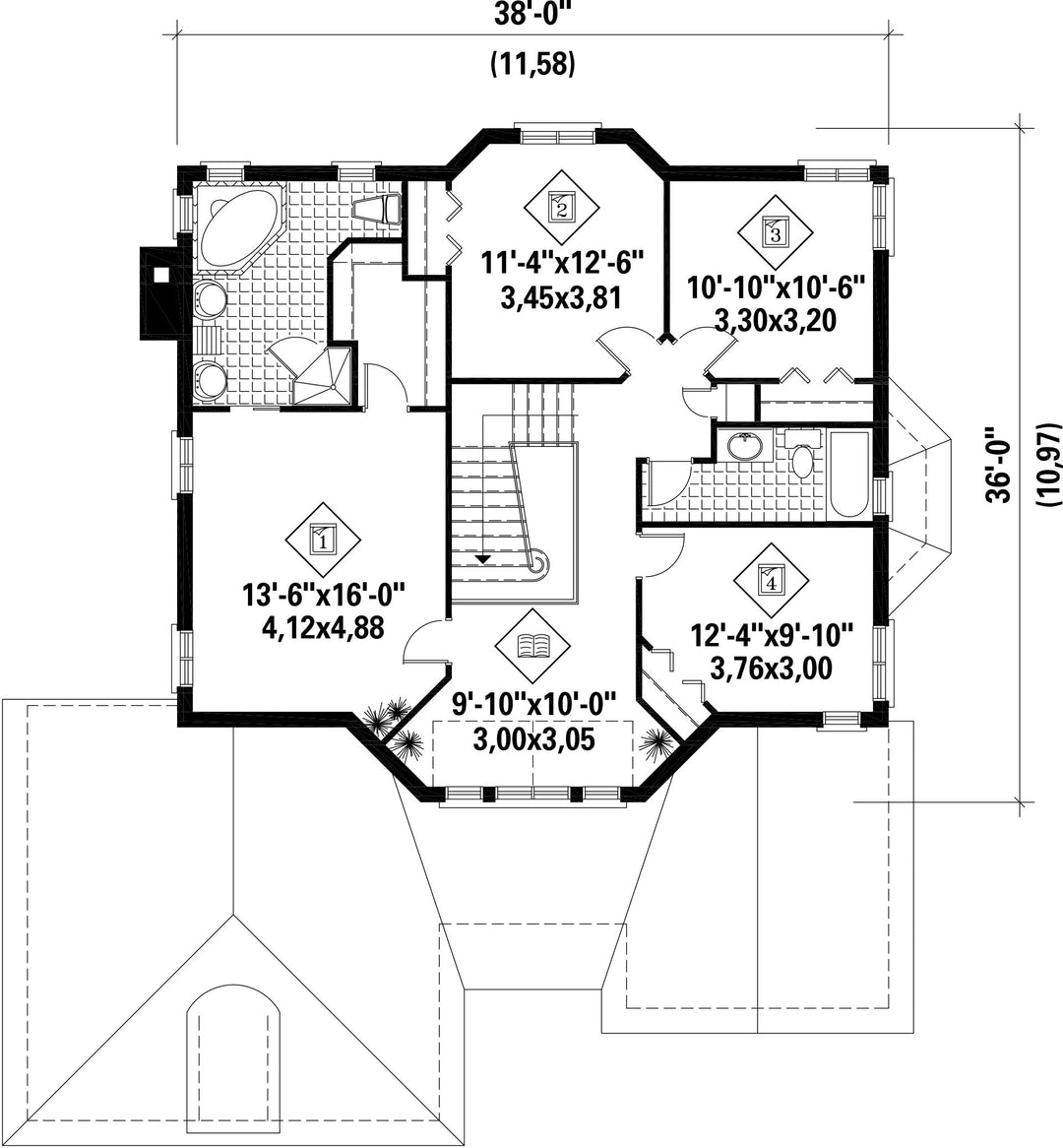
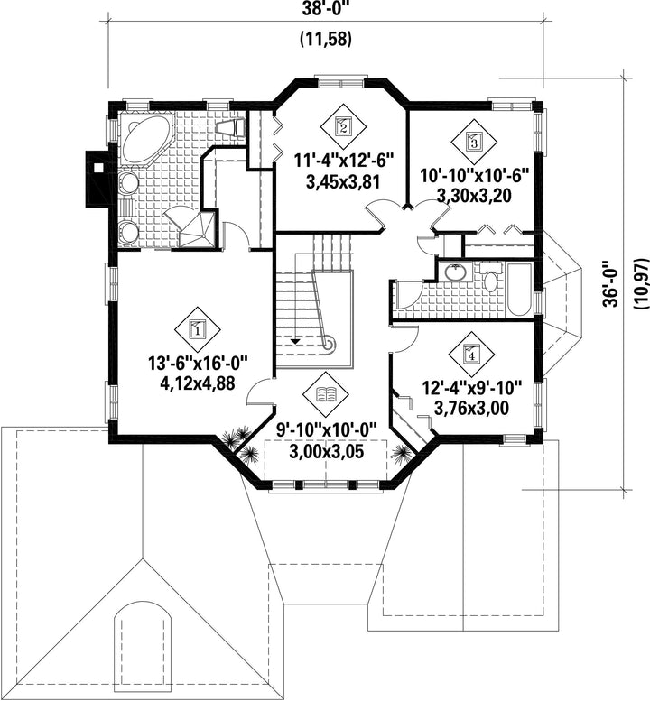
The second floor covers 1,224 square feet and includes four bedrooms, one of which is a master bedroom with a walk-in closet and a private bathroom, a second large bathroom, as well as a reading room.
With 1,494 square feet of living area, the ground floor includes a practical dining area next to the kitchen, a dining room, a reading room, a living room and a den with a fireplace. There is also a powder room, a laundry room and a 467 square feet two-car garage.
The second floor covers 1,224 square feet and includes four bedrooms, one of which is a master bedroom with a walk-in closet and a private bathroom, a second large bathroom, as well as a reading room.
Additional info
Measurements: Imperial| House style | Manor |
Construction price
Approximate amount equivalent to what it would cost to have a general contractor (Montreal's South Shore region) build a similar home, excluding the lot and the infrastructure.
|
683349 $ |
|---|---|---|---|
| Front | 48 ft | Total living surface | 2718 ft² |
| Depth | 53 ft | Bathrooms | 2 |
| Height | 37 ft | Bedrooms | 4 |
| Master bedroom | Pedestal bath + Shower + Double sink + Wardrobe + Toilet | ||
| First floor area | 1494 ft² | Exterior walls | Rock |
| Second floor area | 1224 ft² | Kitchen | U-shaped + Dining room |
| Garage area | 467 ft² | Garages | 2 |
| Garage wall | 8 ft | First floor wall | 9 ft |
| Second floor wall | 8 ft | Front/back roof slope | 12/12 |
| Left/right roof slope | 12/12 |
| House style | Manor |
|---|---|
|
Construction price
Approximate amount equivalent to what it would cost to have a general contractor (Montreal's South Shore region) build a similar home, excluding the lot and the infrastructure.
|
683349 $ |
| Front | 48 ft |
| Total living surface | 2718 ft² |
| Depth | 53 ft |
| Bathrooms | 2 |
| Height | 37 ft |
| Bedrooms | 4 |
| Master bedroom | Pedestal bath + Shower + Double sink + Wardrobe + Toilet |
| First floor area | 1494 ft² |
| Exterior walls | Rock |
| Second floor area | 1224 ft² |
| Kitchen | U-shaped + Dining room |
| Garage area | 467 ft² |
| Garages | 2 |
| Garage wall | 8 ft |
| First floor wall | 9 ft |
| Second floor wall | 8 ft |
| Front/back roof slope | 12/12 |
| Left/right roof slope | 12/12 |