Description
NULL
Additional info
Measurements: Imperial| House style | Manor |
Construction price
Approximate amount equivalent to what it would cost to have a general contractor (Montreal's South Shore region) build a similar home, excluding the lot and the infrastructure.
|
642829 $ |
|---|---|---|---|
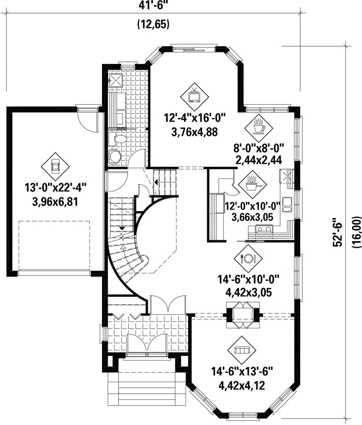
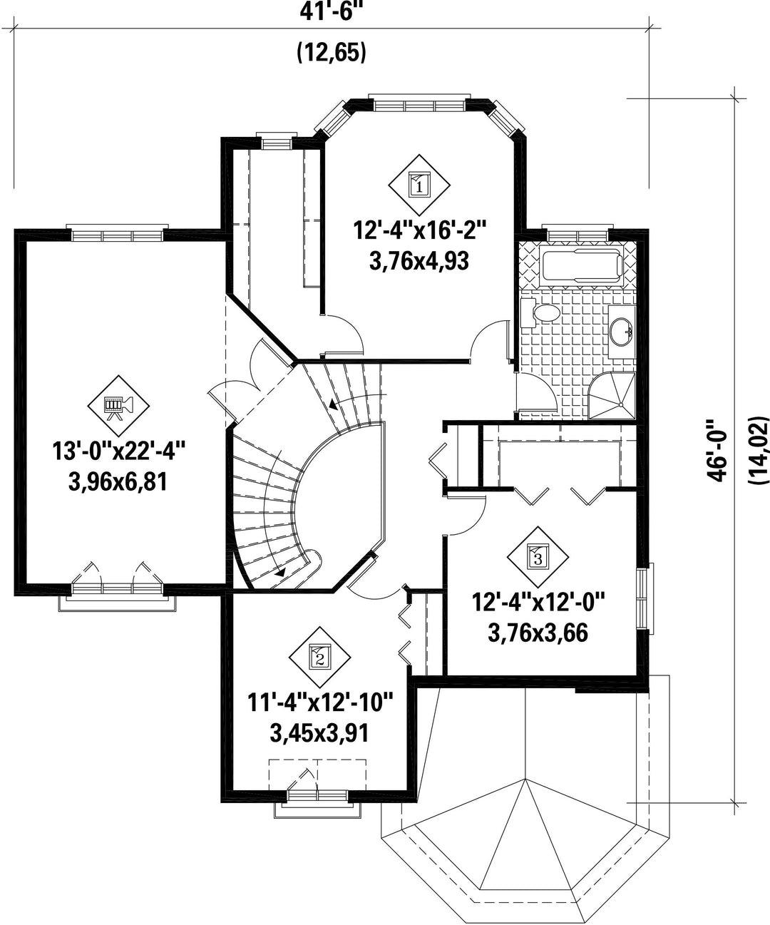
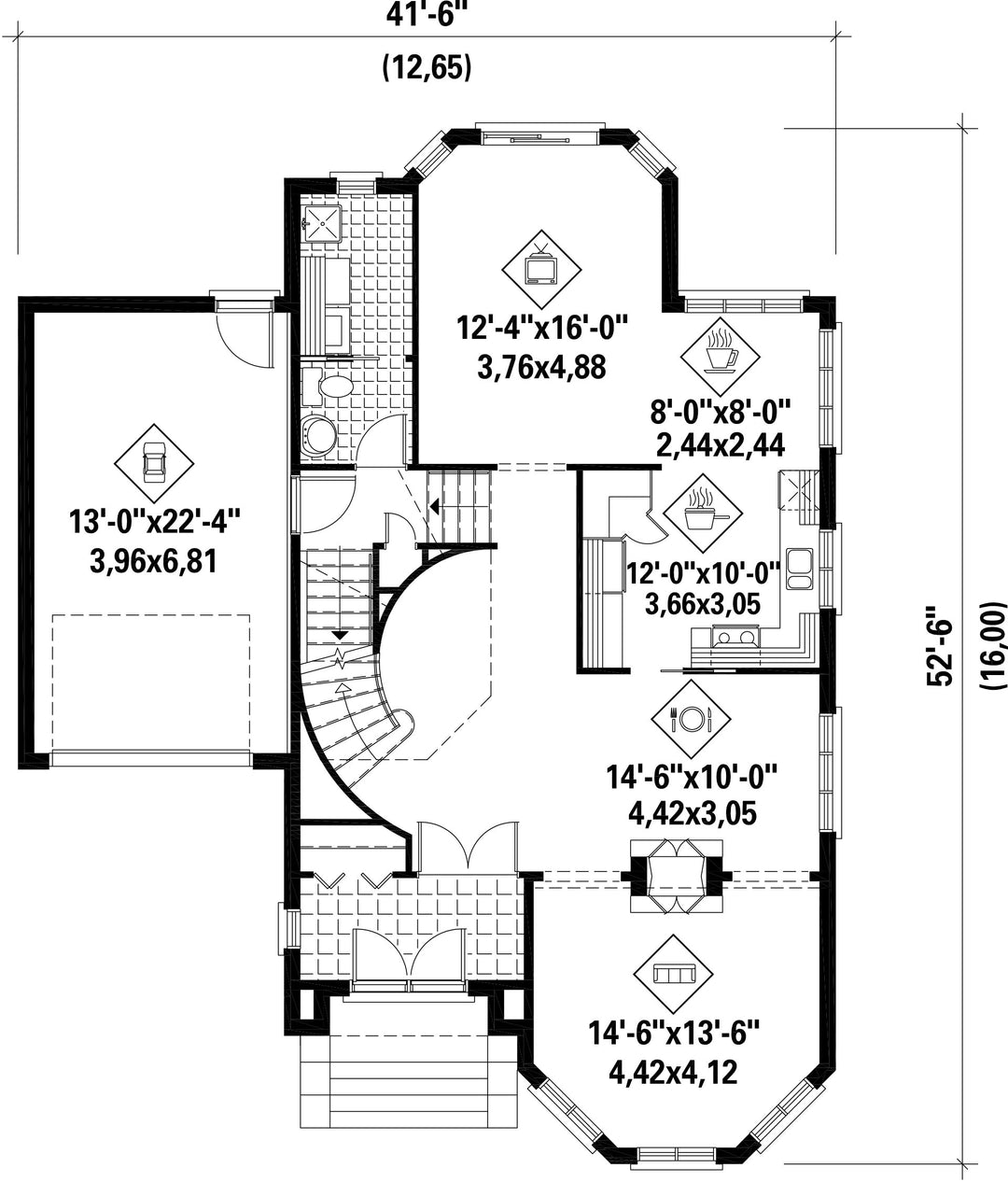
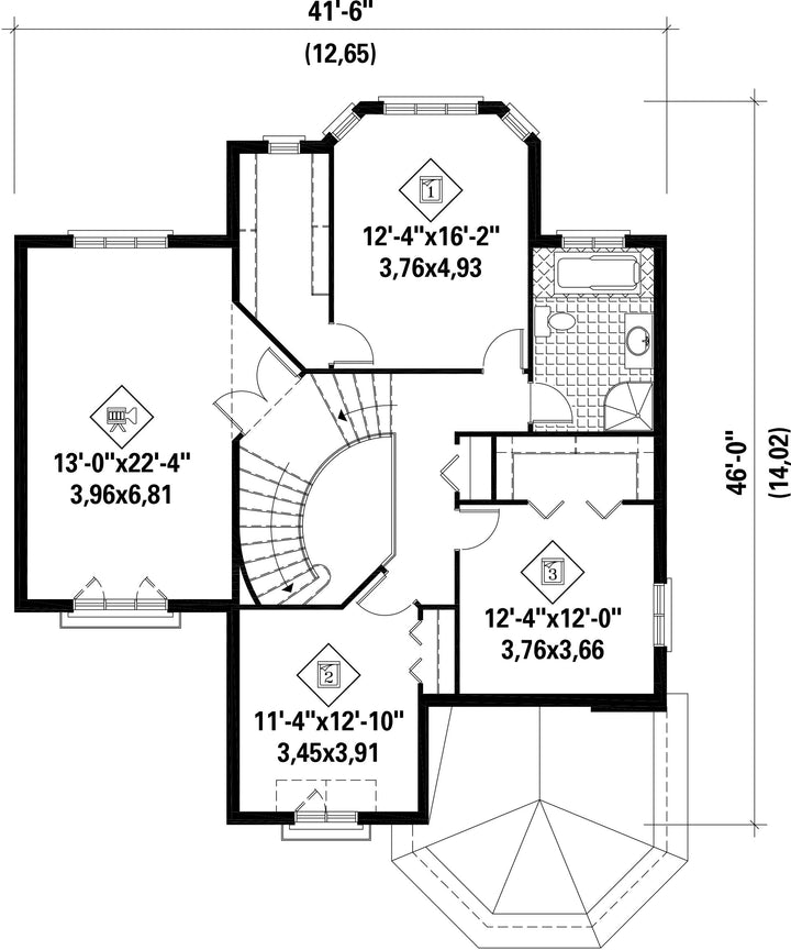
| Front | 41 ft 6 in | Total living surface | 2659 ft² |
| Depth | 52 ft 6 in | Bathrooms | 1 |
| Height | 38 ft 2 in | Bedrooms | 3 |
| Master bedroom | Wardrobe | ||
| First floor area | 1251 ft² | Exterior walls | Aggregates + Stone |
| Second floor area | 1408 ft² | Kitchen | Dining area + Laboratory + Dining room |
| Garage area | 332 ft² | Garages | 1 |
| Garage wall | 8 ft | First floor wall | 9 ft |
| Second floor wall | 8 ft | Front/back roof slope | 12/12 |
| Left/right roof slope | 12/12 |
| House style | Manor |
|---|---|
|
Construction price
Approximate amount equivalent to what it would cost to have a general contractor (Montreal's South Shore region) build a similar home, excluding the lot and the infrastructure.
|
642829 $ |
| Front | 41 ft 6 in |
| Total living surface | 2659 ft² |
| Depth | 52 ft 6 in |
| Bathrooms | 1 |
| Height | 38 ft 2 in |
| Bedrooms | 3 |
| Master bedroom | Wardrobe |
| First floor area | 1251 ft² |
| Exterior walls | Aggregates + Stone |
| Second floor area | 1408 ft² |
| Kitchen | Dining area + Laboratory + Dining room |
| Garage area | 332 ft² |
| Garages | 1 |
| Garage wall | 8 ft |
| First floor wall | 9 ft |
| Second floor wall | 8 ft |
| Front/back roof slope | 12/12 |
| Left/right roof slope | 12/12 |