20400
20400
20400
20400
20400
20400

Jeux de plans - Sets of plans
Regular price$1,089.00
/

This site is protected by hCaptcha and the hCaptcha Privacy Policy and Terms of Service apply.

Description

NULL

Additional info

Measurements: Imperial

House style Manor Construction price 
Approximate amount equivalent to what it would cost to have a general contractor (Montreal's South Shore region) build a similar home, excluding the lot and the infrastructure.
369587 $
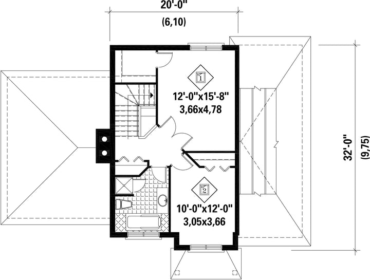
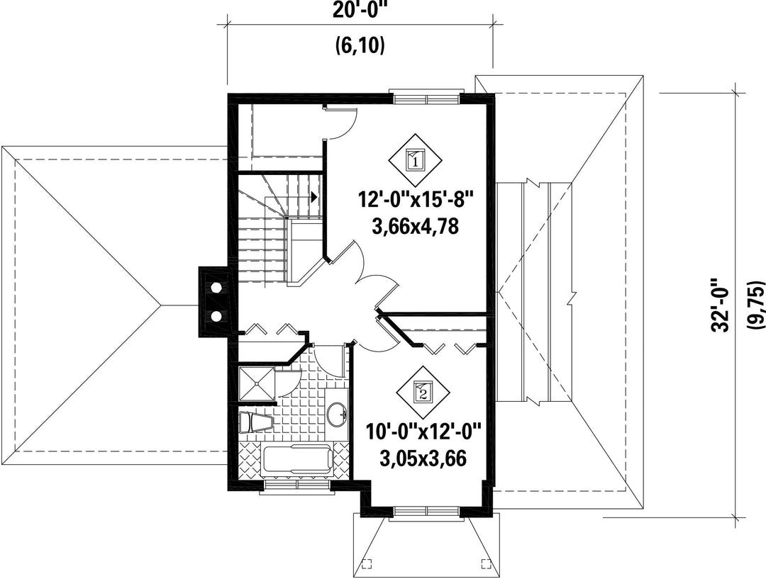
Front 46 ft Total living surface 1540 ft²
Depth 32 ftBathrooms 1
Height 32 ft 4 inBedrooms 2
Master bedroom Walk in + Double doors
First floor area 920 ft² Exterior walls Stucco + Brick
Second floor area 620 ft² Kitchen Nook + Laboratory + Dining room
Garage area 352 ft² Garages 1
Garage wall 8 ftFirst floor wall 8 ft
Second floor wall 8 ftFront/back roof slope 8/12
Left/right roof slope 12/12
House style Manor
Construction price 
Approximate amount equivalent to what it would cost to have a general contractor (Montreal's South Shore region) build a similar home, excluding the lot and the infrastructure.
369587 $
Front 46 ft
Total living surface 1540 ft²
Depth 32 ft
Bathrooms 1
Height 32 ft 4 in
Bedrooms 2
Master bedroom Walk in + Double doors
First floor area 920 ft²
Exterior walls Stucco + Brick
Second floor area 620 ft²
Kitchen Nook + Laboratory + Dining room
Garage area 352 ft²
Garages 1
Garage wall 8 ft
First floor wall 8 ft
Second floor wall 8 ft
Front/back roof slope 8/12
Left/right roof slope 12/12

Ces plans de maison pourraient également vous intéresser


Recently viewed