20380
20380
20380
20380
20380
20380

Jeux de plans - Sets of plans
Regular price$1,035.00
/

This site is protected by hCaptcha and the hCaptcha Privacy Policy and Terms of Service apply.

Description

NULL

Additional info

Measurements: Imperial

House style Manor Construction price 
Approximate amount equivalent to what it would cost to have a general contractor (Montreal's South Shore region) build a similar home, excluding the lot and the infrastructure.
274493 $
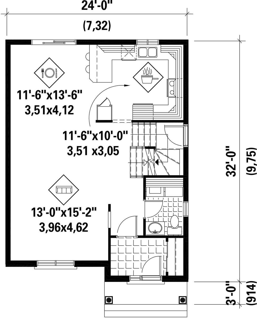
Front 24 ft Total living surface 1484 ft²
Depth 32 ftBathrooms 1
Height 30 ft 11 inBedrooms 3
Master bedroom Walk in
First floor area 742 ft² Exterior walls Aluminum + Brick
Second floor area 742 ft² Kitchen Snack + U shaped
Garages 0
First floor wall 8 ft
Second floor wall 8 ftFront/back roof slope 8/12
Left/right roof slope 12/12
House style Manor
Construction price 
Approximate amount equivalent to what it would cost to have a general contractor (Montreal's South Shore region) build a similar home, excluding the lot and the infrastructure.
274493 $
Front 24 ft
Total living surface 1484 ft²
Depth 32 ft
Bathrooms 1
Height 30 ft 11 in
Bedrooms 3
Master bedroom Walk in
First floor area 742 ft²
Exterior walls Aluminum + Brick
Second floor area 742 ft²
Kitchen Snack + U shaped
Garages 0
First floor wall 8 ft
Second floor wall 8 ft
Front/back roof slope 8/12
Left/right roof slope 12/12

Ces plans de maison pourraient également vous intéresser


Recently viewed