Description
NULL
Additional info
Measurements: Imperial| House style | Manor |
Construction price
Approximate amount equivalent to what it would cost to have a general contractor (Montreal's South Shore region) build a similar home, excluding the lot and the infrastructure.
|
370374 $ |
|---|---|---|---|
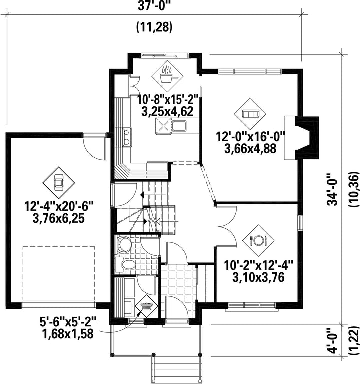
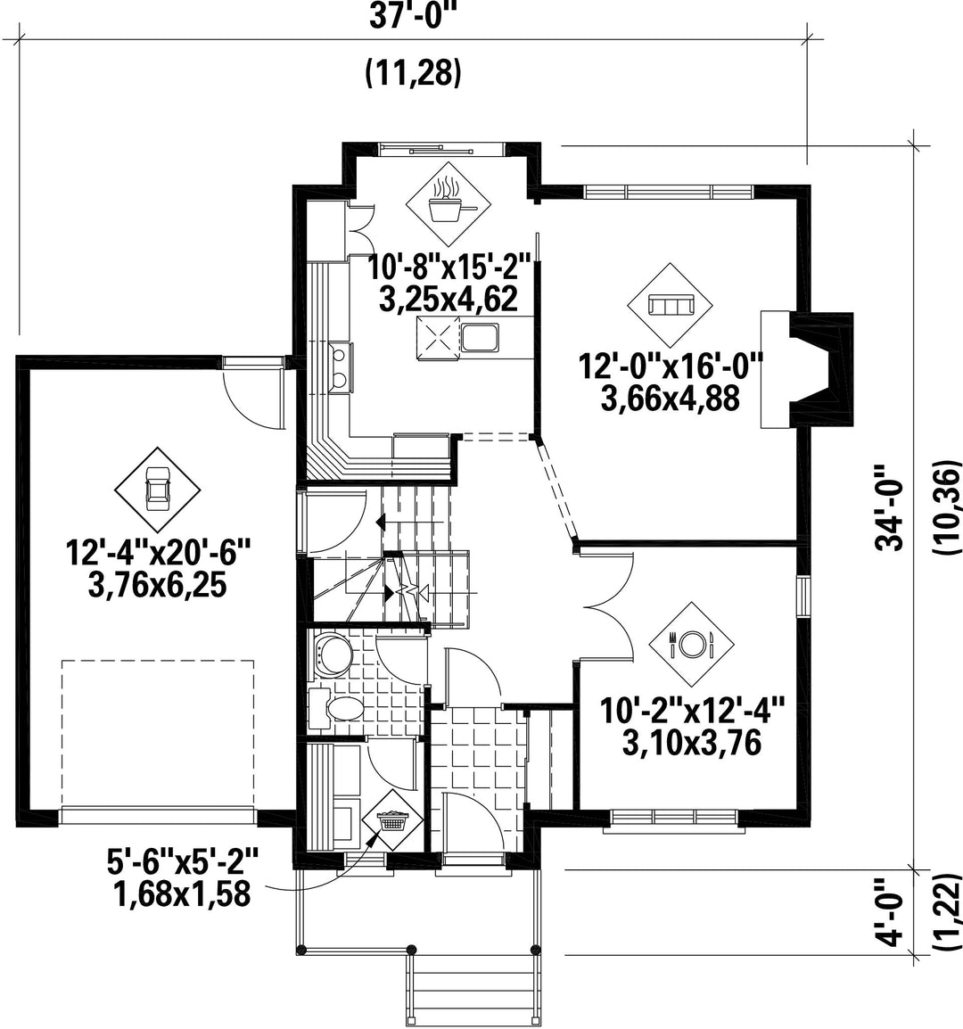
| Front | 37 ft | Total living surface | 1790 ft² |
| Depth | 34 ft | Bathrooms | 1 |
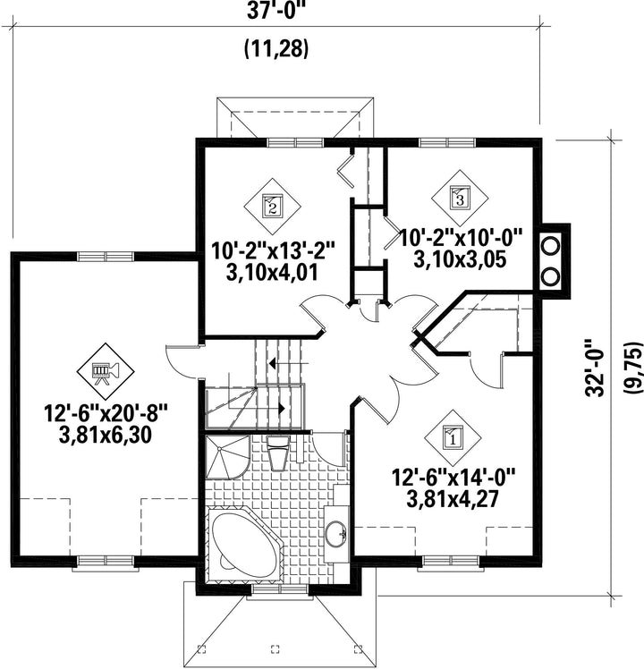
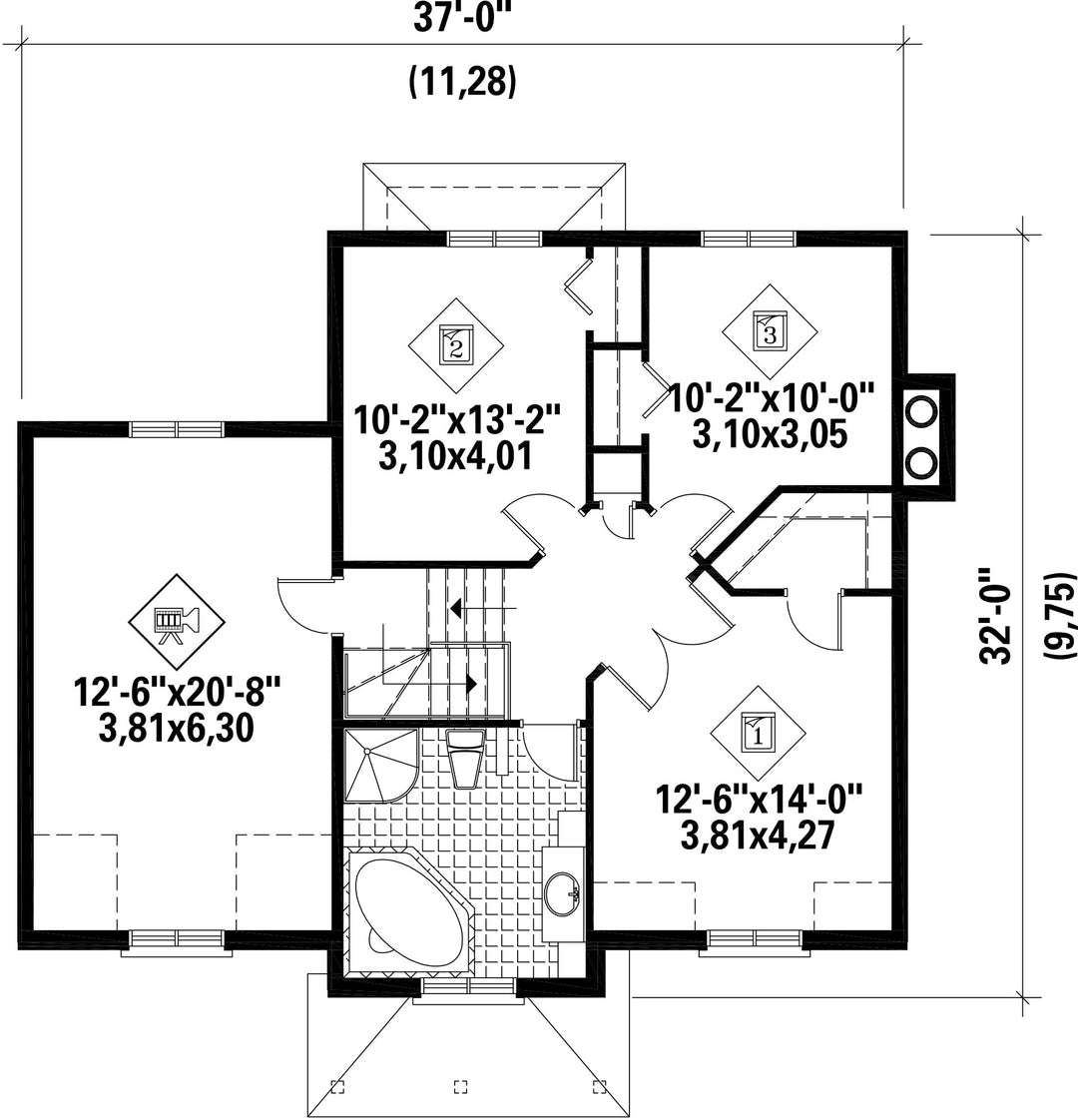
| Height | 34 ft 6 in | Bedrooms | 3 |
| Master bedroom | Wardrobe + Double Doors | Master bedroom - comments | WALK-IN CLOSET IN THE MASTER BEDROOM |
| First floor area | 761 ft² | Exterior walls | Aluminum + Stone |
| Second floor area | 1029 ft² | Kitchen | Dining area + L-shaped layout + Dining room + Island |
| Garage area | 286 ft² | Garages | 1 |
| Garage wall | 8 ft | First floor wall | 8 ft |
| Second floor wall | 8 ft | Front/back roof slope | 12/12 |
| Left/right roof slope | 12/12 |
| House style | Manor |
|---|---|
|
Construction price
Approximate amount equivalent to what it would cost to have a general contractor (Montreal's South Shore region) build a similar home, excluding the lot and the infrastructure.
|
370374 $ |
| Front | 37 ft |
| Total living surface | 1790 ft² |
| Depth | 34 ft |
| Bathrooms | 1 |
| Height | 34 ft 6 in |
| Bedrooms | 3 |
| Master bedroom | Wardrobe + Double Doors |
| Master bedroom - comments | WALK-IN CLOSET IN THE MASTER BEDROOM |
| First floor area | 761 ft² |
| Exterior walls | Aluminum + Stone |
| Second floor area | 1029 ft² |
| Kitchen | Dining area + L-shaped layout + Dining room + Island |
| Garage area | 286 ft² |
| Garages | 1 |
| Garage wall | 8 ft |
| First floor wall | 8 ft |
| Second floor wall | 8 ft |
| Front/back roof slope | 12/12 |
| Left/right roof slope | 12/12 |