Description
"High ceiling in the living room
Laundry room on the 2nd floor
Additional info
Measurements: Imperial| House style | Manor |
Construction price
Approximate amount equivalent to what it would cost to have a general contractor (Montreal's South Shore region) build a similar home, excluding the lot and the infrastructure.
|
894717 $ |
|---|---|---|---|
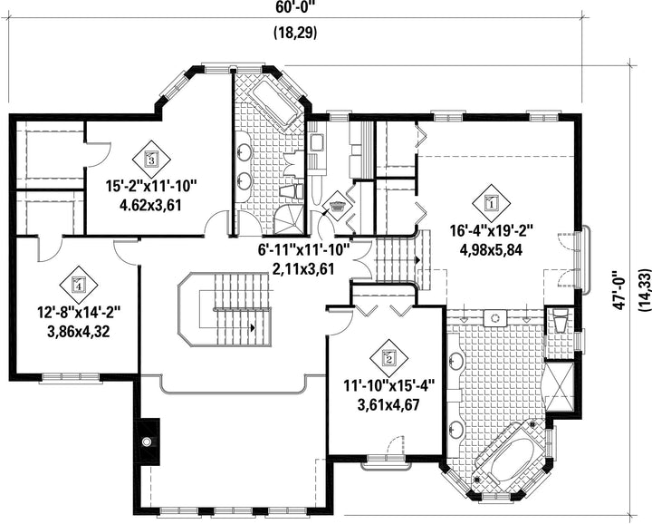
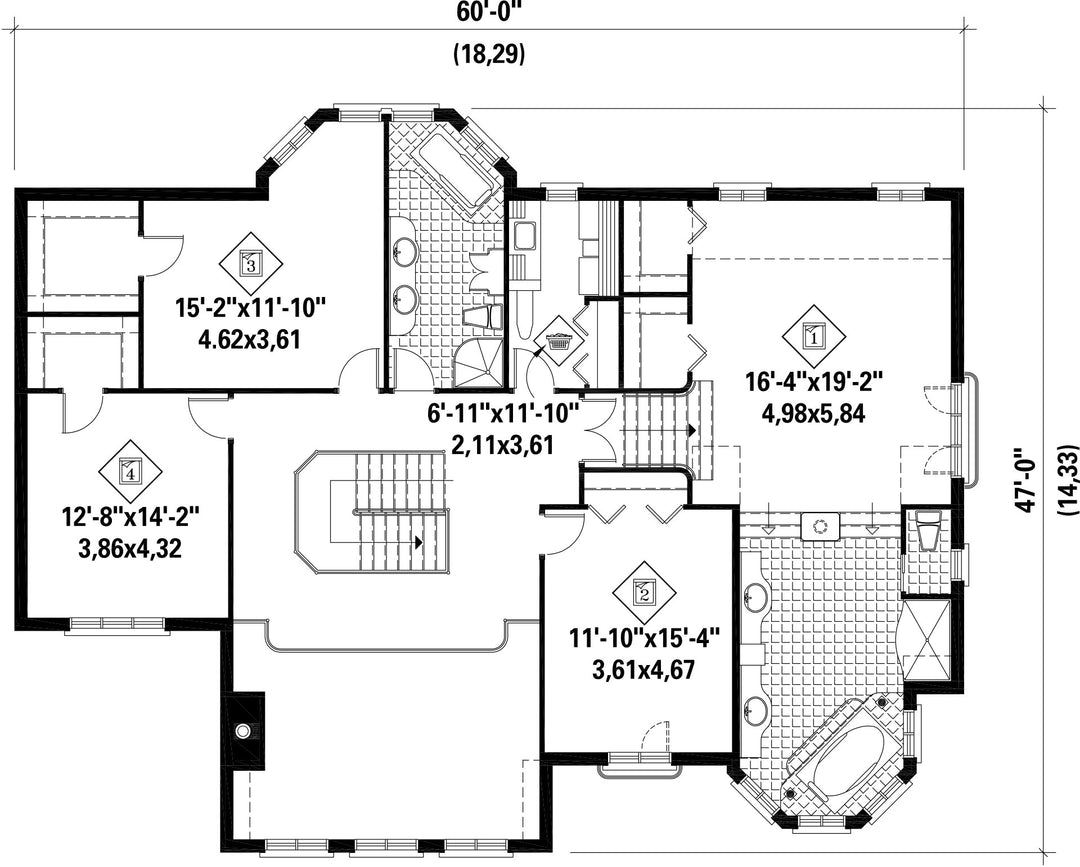
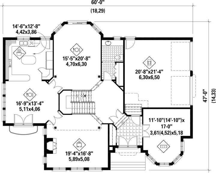
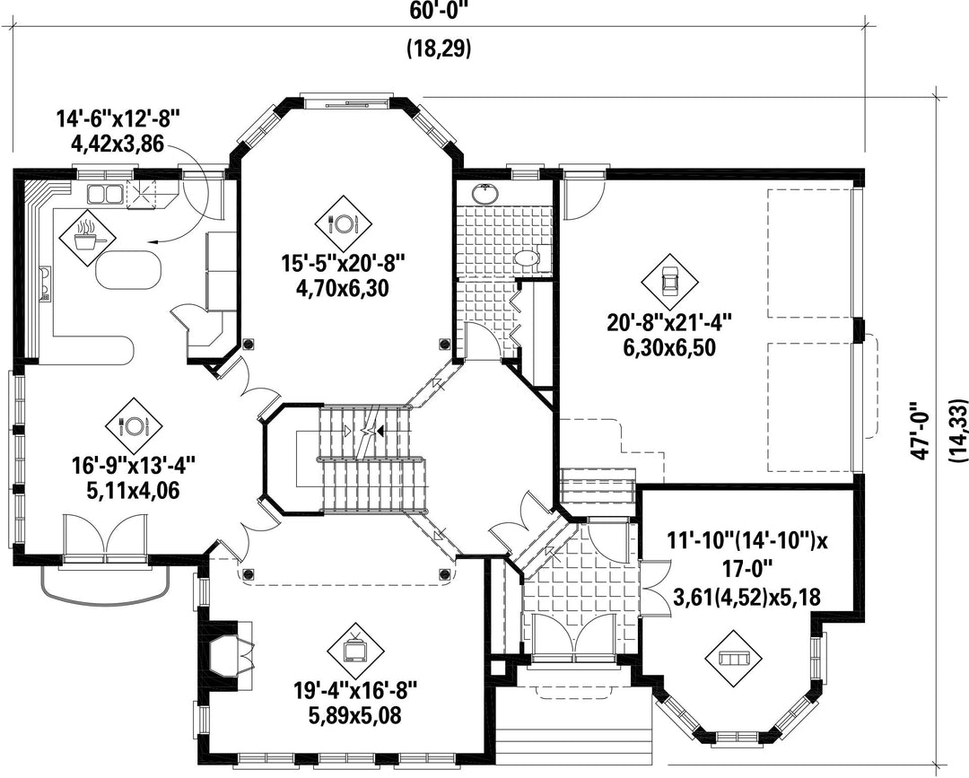
| Front | 60 ft | Total living surface | 4065 ft² |
| Depth | 47 ft | Bathrooms | 2 |
| Height | 41 ft 10 in | Bedrooms | 4 |
| Master bedroom | Pedestal bath + Shower + Double sink + Wardrobe + Double doors + Toilet | Master bedroom - comments | PRIVATE BATHROOM ADJOINING THE MASTER BEDROOM |
| First floor area | 1781 ft² | Exterior walls | Brick + Stone |
| Second floor area | 2284 ft² | Kitchen | Dining area + U-shape + Dining room + Island |
| Garage area | 489 ft² | Garages | 2 |
| Garage wall | 8 ft | First floor wall | 9 ft |
| Second floor wall | 8 ft | Front/back roof slope | 10/12 |
| Left/right roof slope | 16/12 |
| House style | Manor |
|---|---|
|
Construction price
Approximate amount equivalent to what it would cost to have a general contractor (Montreal's South Shore region) build a similar home, excluding the lot and the infrastructure.
|
894717 $ |
| Front | 60 ft |
| Total living surface | 4065 ft² |
| Depth | 47 ft |
| Bathrooms | 2 |
| Height | 41 ft 10 in |
| Bedrooms | 4 |
| Master bedroom | Pedestal bath + Shower + Double sink + Wardrobe + Double doors + Toilet |
| Master bedroom - comments | PRIVATE BATHROOM ADJOINING THE MASTER BEDROOM |
| First floor area | 1781 ft² |
| Exterior walls | Brick + Stone |
| Second floor area | 2284 ft² |
| Kitchen | Dining area + U-shape + Dining room + Island |
| Garage area | 489 ft² |
| Garages | 2 |
| Garage wall | 8 ft |
| First floor wall | 9 ft |
| Second floor wall | 8 ft |
| Front/back roof slope | 10/12 |
| Left/right roof slope | 16/12 |