Description
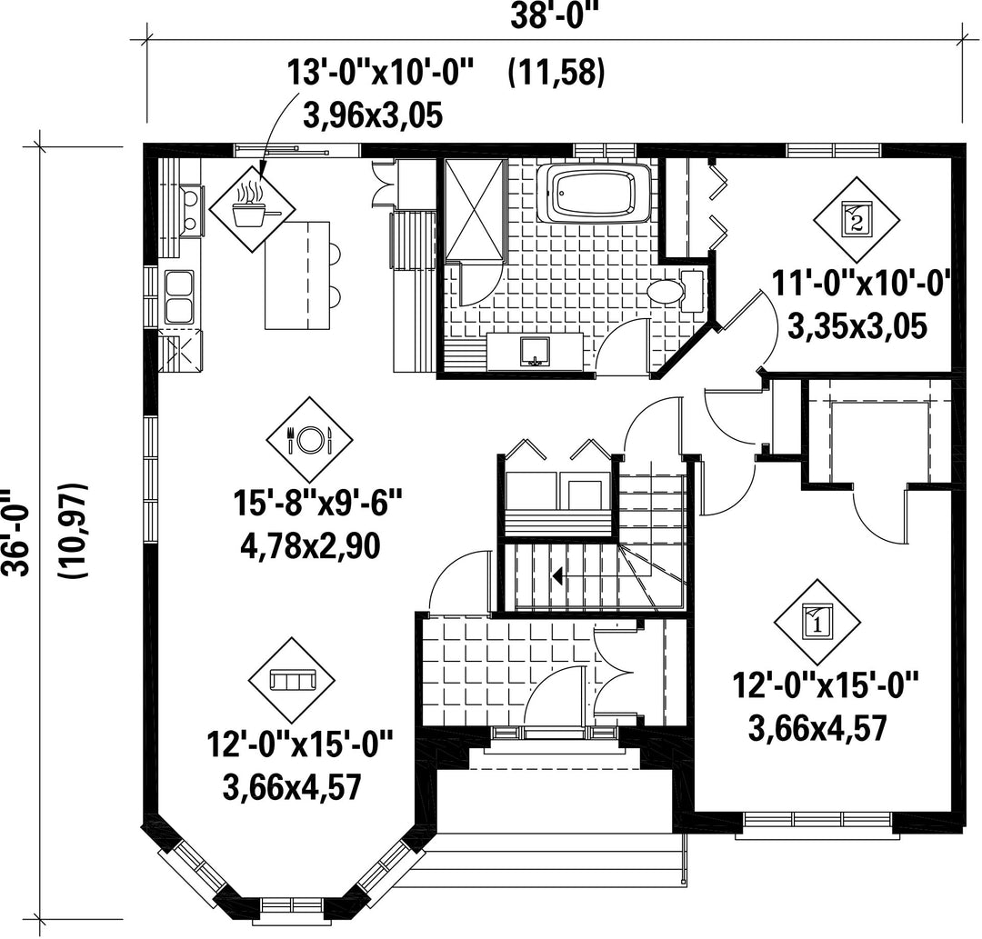
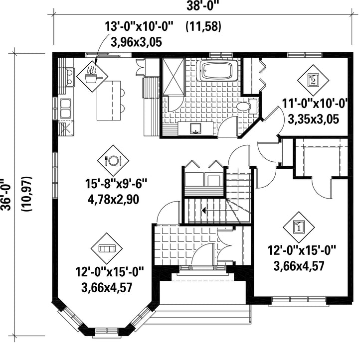
This elegant bungalow showcases a lovely turret in the front and is 38 feet wide by 36 feet deep. It provides a 1,210 square foot living area.
The house features a closed entrance hall, an open area that includes a living room, a dining room, and a kitchen with an central island, a laundry closet, a large bathroom with a separate shower and a freestanding bathtub, as well as two bedrooms, including a spacious master bedroom with a walk-in closet.
The house features a closed entrance hall, an open area that includes a living room, a dining room, and a kitchen with an central island, a laundry closet, a large bathroom with a separate shower and a freestanding bathtub, as well as two bedrooms, including a spacious master bedroom with a walk-in closet.
Additional info
Measurements: Imperial| House style | Manor |
Construction price
Approximate amount equivalent to what it would cost to have a general contractor (Montreal's South Shore region) build a similar home, excluding the lot and the infrastructure.
|
325527 $ |
|---|---|---|---|
| Front | 38 ft | Total living surface | 1210 ft² |
| Depth | 36 ft | Bathrooms | 1 |
| Height | 28 ft 10 in | Bedrooms | 2 |
| Master bedroom | Walk in | ||
| First floor area | 1210 ft² | Exterior walls | Aluminum + Stone |
| Kitchen | Laboratory + Island | ||
| Garages | 0 | ||
| First floor wall | 8 ft | ||
| Front/back roof slope | 12/12 | ||
| Left/right roof slope | 12/12 |
| House style | Manor |
|---|---|
|
Construction price
Approximate amount equivalent to what it would cost to have a general contractor (Montreal's South Shore region) build a similar home, excluding the lot and the infrastructure.
|
325527 $ |
| Front | 38 ft |
| Total living surface | 1210 ft² |
| Depth | 36 ft |
| Bathrooms | 1 |
| Height | 28 ft 10 in |
| Bedrooms | 2 |
| Master bedroom | Walk in |
| First floor area | 1210 ft² |
| Exterior walls | Aluminum + Stone |
| Kitchen | Laboratory + Island |
| Garages | 0 |
| First floor wall | 8 ft |
| Front/back roof slope | 12/12 |
| Left/right roof slope | 12/12 |