Description
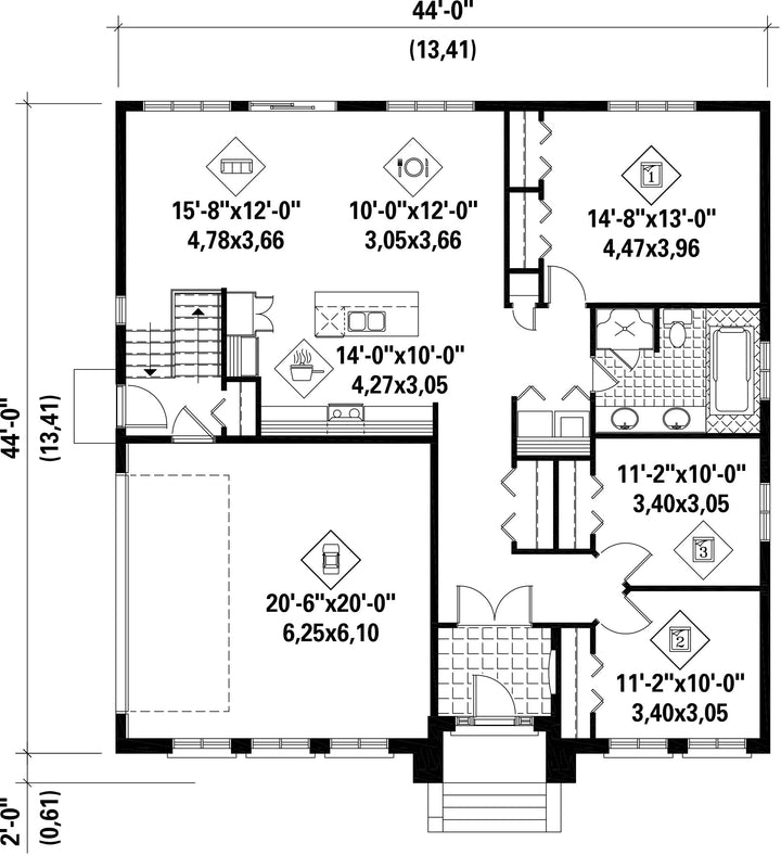
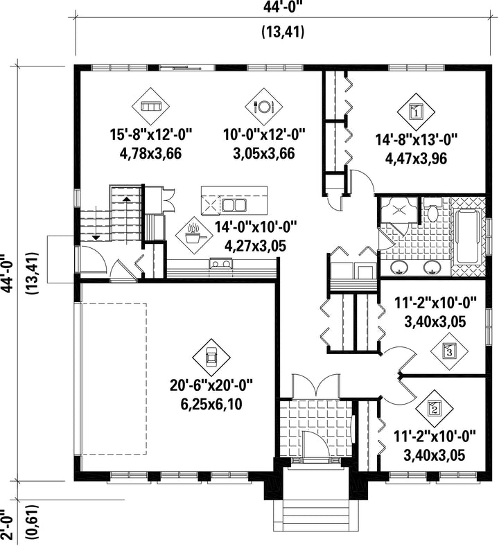
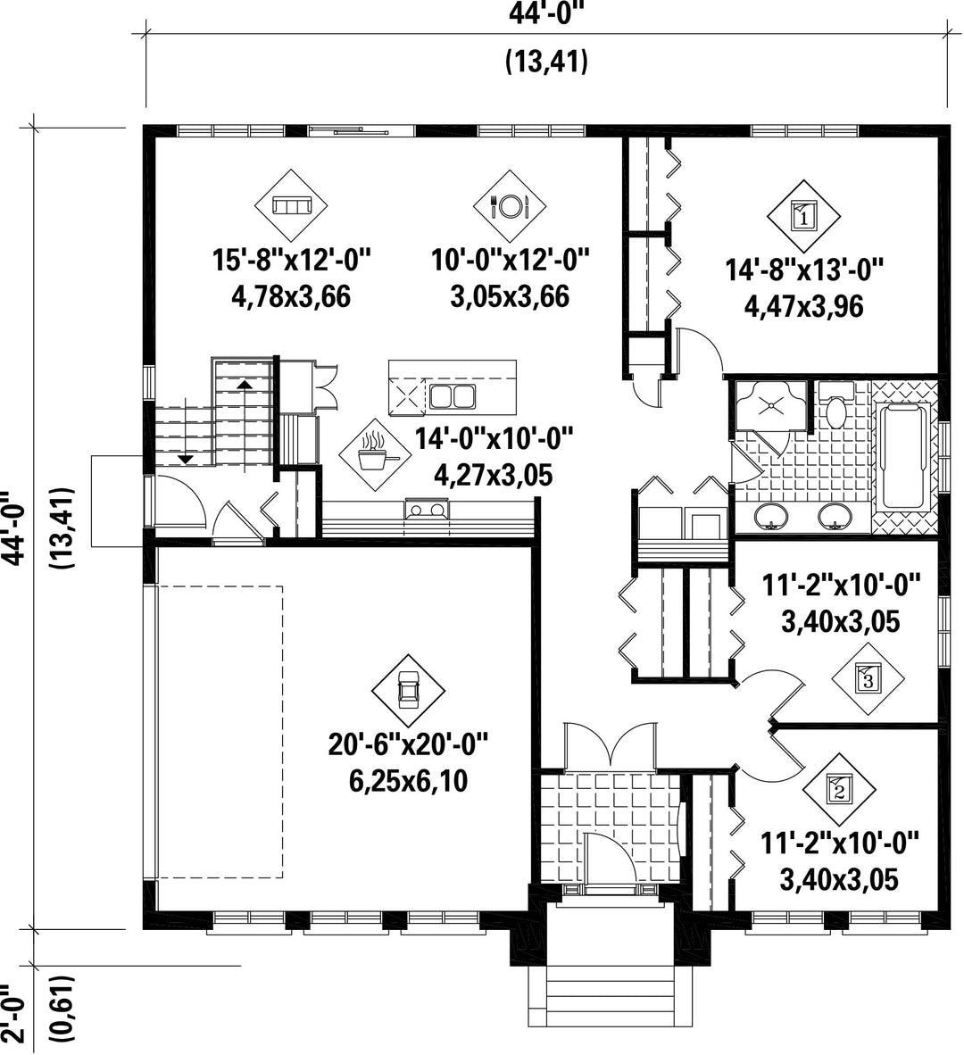
This prestigious stone bungalow has several large windows and an imposing porch overlooking the entrance. The home is 44 feet wide by 44 feet deep, and provides 1,480 square feet of living area.
The house includes a closed entrance hall, a kitchen with an island, an open dining and living room, a large closet for the washer and dryer, a bathroom and three bedrooms. There is also a 446 square foot two-car garage.
The house includes a closed entrance hall, a kitchen with an island, an open dining and living room, a large closet for the washer and dryer, a bathroom and three bedrooms. There is also a 446 square foot two-car garage.
Additional info
Measurements: Imperial| House style | Manor |
Construction price
Approximate amount equivalent to what it would cost to have a general contractor (Montreal's South Shore region) build a similar home, excluding the lot and the infrastructure.
|
400356 $ |
|---|---|---|---|
| Front | 44 ft | Total living surface | 1480 ft² |
| Depth | 44 ft | Bathrooms | 1 |
| Height | 27 ft 1 in | Bedrooms | 3 |
| Master bedroom | N / A | ||
| First floor area | 1480 ft² | Exterior walls | Aggregates + Aluminum + Stone |
| Kitchen | Meal counter + Island | ||
| Garage area | 446 ft² | Garages | 2 |
| Garage wall | 8 ft | First floor wall | 8 ft |
| Front/back roof slope | 8/12 | ||
| Left/right roof slope | 12/12 |
| House style | Manor |
|---|---|
|
Construction price
Approximate amount equivalent to what it would cost to have a general contractor (Montreal's South Shore region) build a similar home, excluding the lot and the infrastructure.
|
400356 $ |
| Front | 44 ft |
| Total living surface | 1480 ft² |
| Depth | 44 ft |
| Bathrooms | 1 |
| Height | 27 ft 1 in |
| Bedrooms | 3 |
| Master bedroom | N / A |
| First floor area | 1480 ft² |
| Exterior walls | Aggregates + Aluminum + Stone |
| Kitchen | Meal counter + Island |
| Garage area | 446 ft² |
| Garages | 2 |
| Garage wall | 8 ft |
| First floor wall | 8 ft |
| Front/back roof slope | 8/12 |
| Left/right roof slope | 12/12 |