Description
This contemporary two-storey house stands out with its flat roof and its stone, wood and steel cladding. Furthermore, thanks to the huge windows, the house is exceptionally bright. The home is 40 feet wide by 42 feet deep and offers 1,755 square feet of living space, as well as a 276 square-foot one-car garage.
The ground floor has an open concept and provides a 1,152 square-foot living area with 14-foot ceilings that create an airy environment. The floor includes a living and dining room divided by a gas fireplace, a kitchen with a large island and a spacious pantry next to the den, as well as a laundry room equipped with a washing sink.
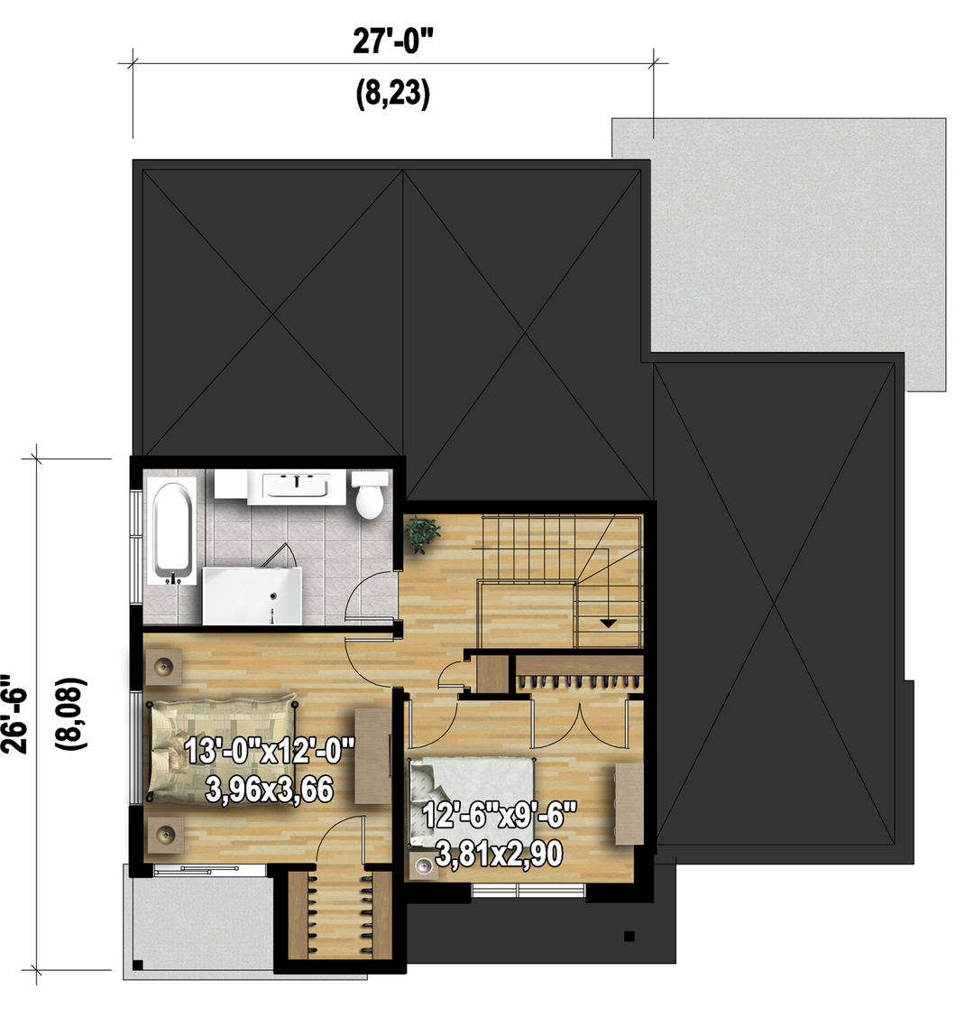
The upper floor has 603 square feet of living space and features a large bathroom with a podium bathtub and a separate shower, as well as two bedrooms, including a master bedroom with a walk-in closet and a small private balcony.
The ground floor has an open concept and provides a 1,152 square-foot living area with 14-foot ceilings that create an airy environment. The floor includes a living and dining room divided by a gas fireplace, a kitchen with a large island and a spacious pantry next to the den, as well as a laundry room equipped with a washing sink.
The upper floor has 603 square feet of living space and features a large bathroom with a podium bathtub and a separate shower, as well as two bedrooms, including a master bedroom with a walk-in closet and a small private balcony.
Additional info
Measurements: Imperial| House style | Urban |
Construction price
Approximate amount equivalent to what it would cost to have a general contractor (Montreal's South Shore region) build a similar home, excluding the lot and the infrastructure.
|
440024 $ |
|---|---|---|---|
| Front | 40 ft | Total living surface | 1755 ft² |
| Depth | 42 ft | Bathrooms | 1 |
| Height | 25 ft 6 in | Bedrooms | 2 |
| Master bedroom | Wardrobe | ||
| First floor area | 1152 ft² | Exterior walls | Aluminum + Wood + Stone |
| Second floor area | 603 ft² | Kitchen | L-shaped + Dining room + Island |
| Garage area | 276 ft² | Garages | 1 |
| Garage wall | 8 ft | First floor wall | 8 ft |
| Second floor wall | 8 ft | Front/back roof slope | N / A |
| Left/right roof slope | N / A |
| House style | Urban |
|---|---|
|
Construction price
Approximate amount equivalent to what it would cost to have a general contractor (Montreal's South Shore region) build a similar home, excluding the lot and the infrastructure.
|
440024 $ |
| Front | 40 ft |
| Total living surface | 1755 ft² |
| Depth | 42 ft |
| Bathrooms | 1 |
| Height | 25 ft 6 in |
| Bedrooms | 2 |
| Master bedroom | Wardrobe |
| First floor area | 1152 ft² |
| Exterior walls | Aluminum + Wood + Stone |
| Second floor area | 603 ft² |
| Kitchen | L-shaped + Dining room + Island |
| Garage area | 276 ft² |
| Garages | 1 |
| Garage wall | 8 ft |
| First floor wall | 8 ft |
| Second floor wall | 8 ft |
| Front/back roof slope | N / A |
| Left/right roof slope | N / A |