Description
On the banks of a lake or erected on the slope of a hill, offering a splendid view onto the surroundings, this two-storey cottage with urban design is 26 feet wide by 28 feet deep and covers a living area of 1,207 square feet.
The 682 square feet ground floor has a wonderful entrance hall, a washroom and 9-foot high ceiling. The open area with impressive windows, where are located the kitchen with island, the dining room and the living room with wood fireplace leading on the upstairs mezzanine, is large and ventilated. This cottage also has two patio doors giving access to a terrace.
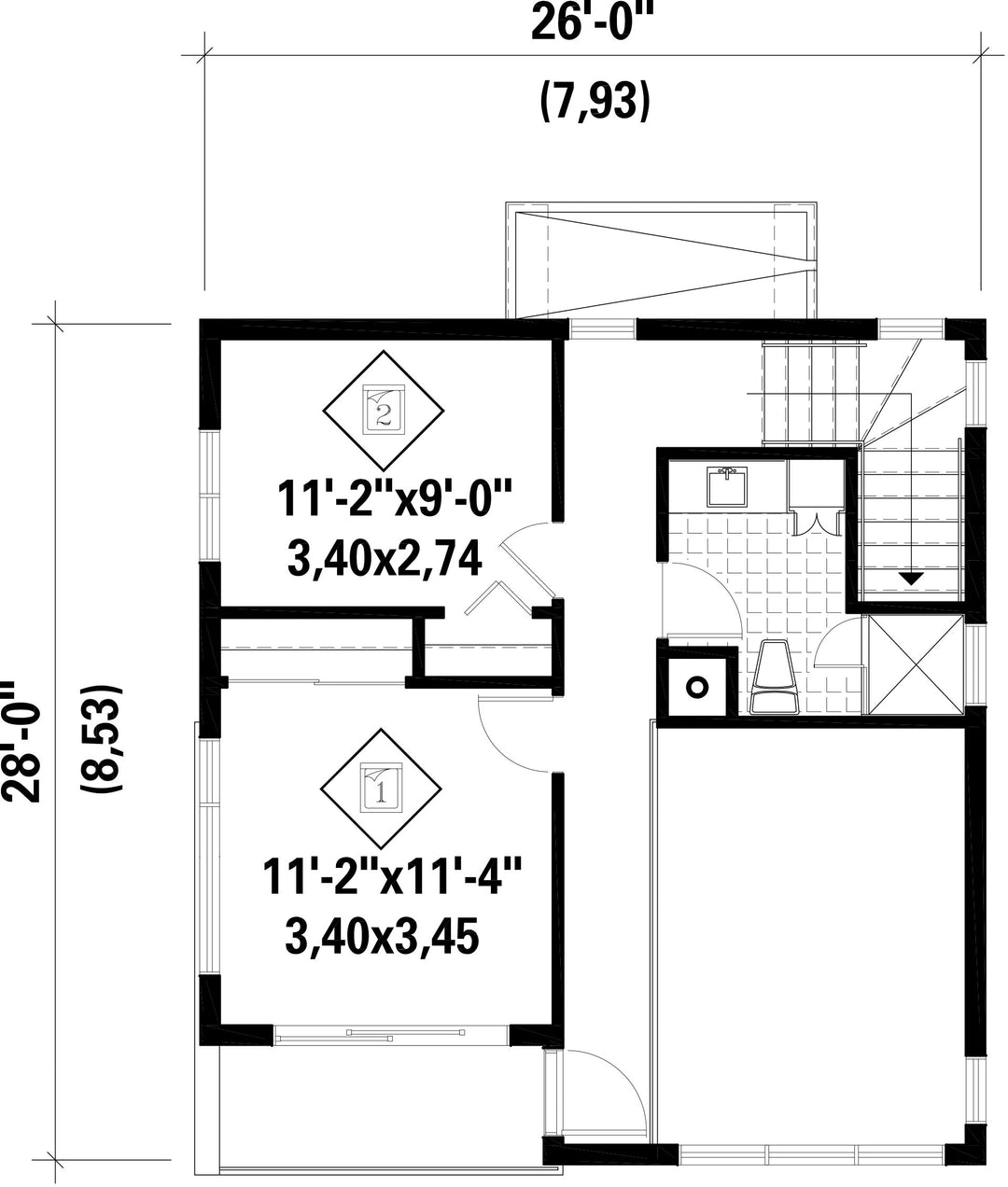
The upstairs mezzanine covers a surface of 525 square feet and has a bathroom, as well as two bedrooms, with the master bedroom embellished by a balcony.
The 682 square feet ground floor has a wonderful entrance hall, a washroom and 9-foot high ceiling. The open area with impressive windows, where are located the kitchen with island, the dining room and the living room with wood fireplace leading on the upstairs mezzanine, is large and ventilated. This cottage also has two patio doors giving access to a terrace.
The upstairs mezzanine covers a surface of 525 square feet and has a bathroom, as well as two bedrooms, with the master bedroom embellished by a balcony.
Additional info
Measurements: Imperial| House style | Urban |
Construction price
Approximate amount equivalent to what it would cost to have a general contractor (Montreal's South Shore region) build a similar home, excluding the lot and the infrastructure.
|
279417 $ |
|---|---|---|---|
| Front | 26 ft | Total living surface | 1207 ft² |
| Depth | 28 ft | Bathrooms | 1 |
| Height | 38 ft 6 in | Bedrooms | 2 |
| Master bedroom | N / A | ||
| First floor area | 682 ft² | Exterior walls | Drink |
| Second floor area | 525 ft² | Kitchen | Laboratory + Island |
| Garages | 0 | ||
| First floor wall | 9 ft | ||
| Second floor wall | 8 ft | Front/back roof slope | N / A |
| Left/right roof slope | 4/12 |
| House style | Urban |
|---|---|
|
Construction price
Approximate amount equivalent to what it would cost to have a general contractor (Montreal's South Shore region) build a similar home, excluding the lot and the infrastructure.
|
279417 $ |
| Front | 26 ft |
| Total living surface | 1207 ft² |
| Depth | 28 ft |
| Bathrooms | 1 |
| Height | 38 ft 6 in |
| Bedrooms | 2 |
| Master bedroom | N / A |
| First floor area | 682 ft² |
| Exterior walls | Drink |
| Second floor area | 525 ft² |
| Kitchen | Laboratory + Island |
| Garages | 0 |
| First floor wall | 9 ft |
| Second floor wall | 8 ft |
| Front/back roof slope | N / A |
| Left/right roof slope | 4/12 |