Description
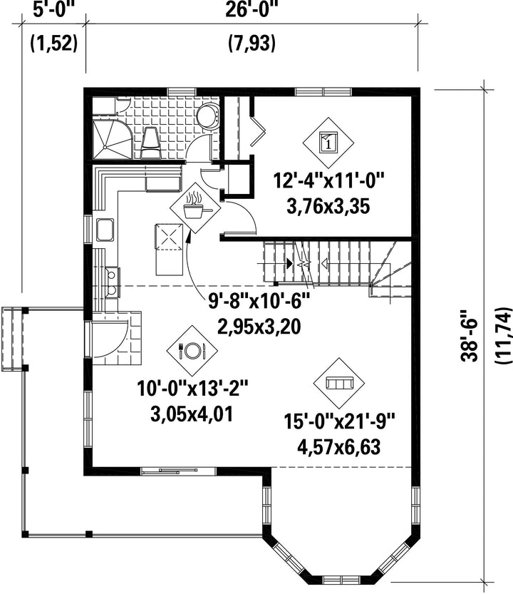
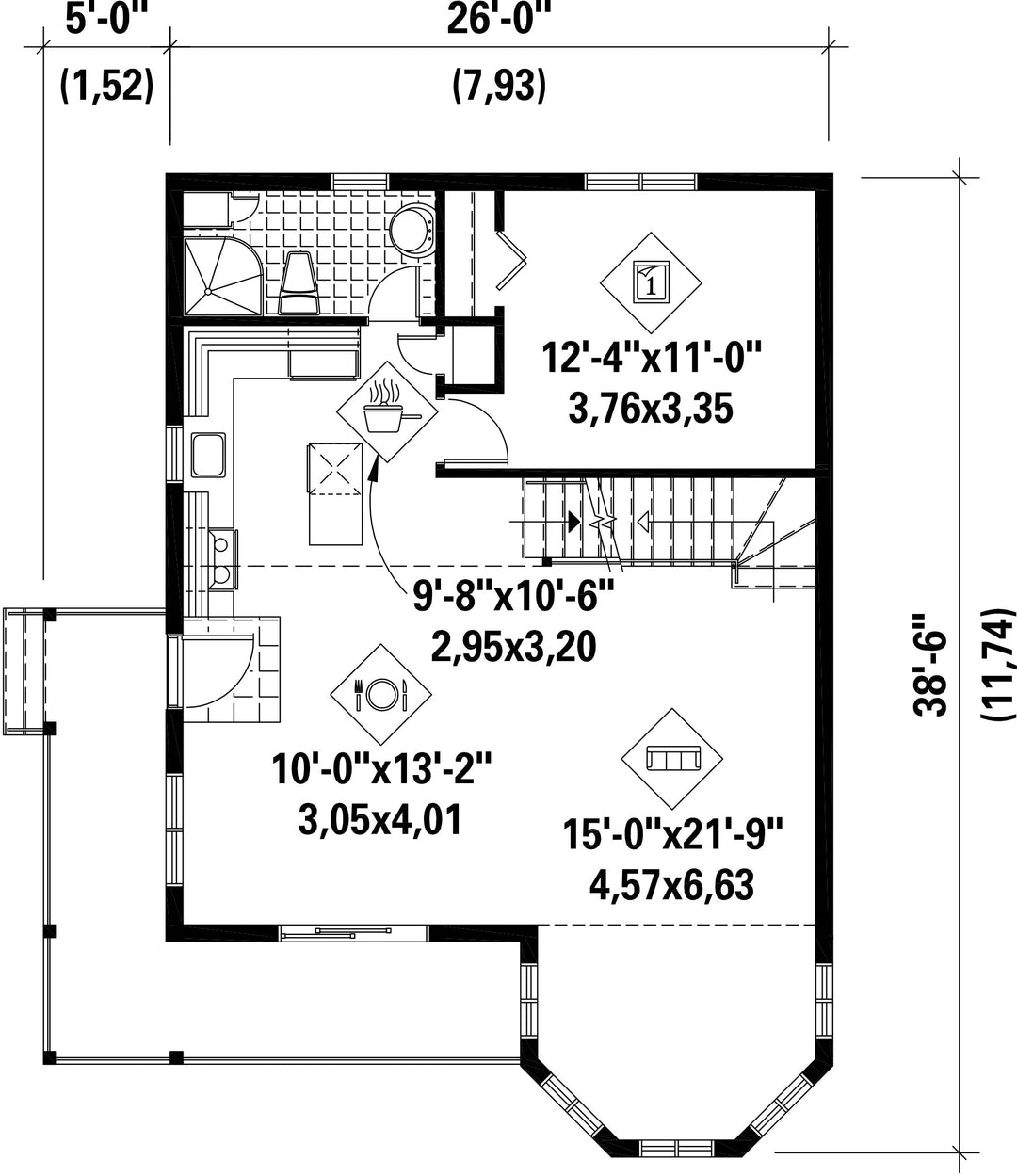
Opulent-looking and offering a wonderful view of the surroundings, this two-storey cottage is 26 feet wide by 38 feet 6 inches deep and provides 1,960 square feet of living space.
The basement has an 870 square feet living area and includes a bedroom, a bathroom, a huge den and a storage room for tools and a laundry area. < br/> The ground floor covers 870 square feet. With its cathedral ceiling and panoramic windows, the living, dining and kitchen area is roomy and bright. There is also a bathroom and a bedroom.
The second floor has a 220 square foot living area and includes two identical bedrooms.
The basement has an 870 square feet living area and includes a bedroom, a bathroom, a huge den and a storage room for tools and a laundry area. < br/> The ground floor covers 870 square feet. With its cathedral ceiling and panoramic windows, the living, dining and kitchen area is roomy and bright. There is also a bathroom and a bedroom.
The second floor has a 220 square foot living area and includes two identical bedrooms.
Additional info
Measurements: Imperial| House style | Rustic |
Construction price
Approximate amount equivalent to what it would cost to have a general contractor (Montreal's South Shore region) build a similar home, excluding the lot and the infrastructure.
|
267145 $ |
|---|---|---|---|
| Front | 26 ft | Total living surface | 1960 ft² |
| Depth | 38 ft 6 in | Bathrooms | 2 |
| Height | 32 ft 6 in | Bedrooms | 4 |
| Master bedroom | N / A | Master bedroom - comments | --- |
| First floor area | 870 ft² | Exterior walls | Aluminum |
| Second floor area | 220 ft² | Kitchen | L-shaped + Island |
| Garages | 0 | ||
| First floor wall | 8 ft | ||
| Second floor wall | 8 ft | ||
| Left/right roof slope | 12/12 | Basement area | 870 ft² |
| House style | Rustic |
|---|---|
|
Construction price
Approximate amount equivalent to what it would cost to have a general contractor (Montreal's South Shore region) build a similar home, excluding the lot and the infrastructure.
|
267145 $ |
| Front | 26 ft |
| Total living surface | 1960 ft² |
| Depth | 38 ft 6 in |
| Bathrooms | 2 |
| Height | 32 ft 6 in |
| Bedrooms | 4 |
| Master bedroom | N / A |
| Master bedroom - comments | --- |
| First floor area | 870 ft² |
| Exterior walls | Aluminum |
| Second floor area | 220 ft² |
| Kitchen | L-shaped + Island |
| Garages | 0 |
| First floor wall | 8 ft |
| Second floor wall | 8 ft |
| Left/right roof slope | 12/12 |
| Basement area | 870 ft² |