Description
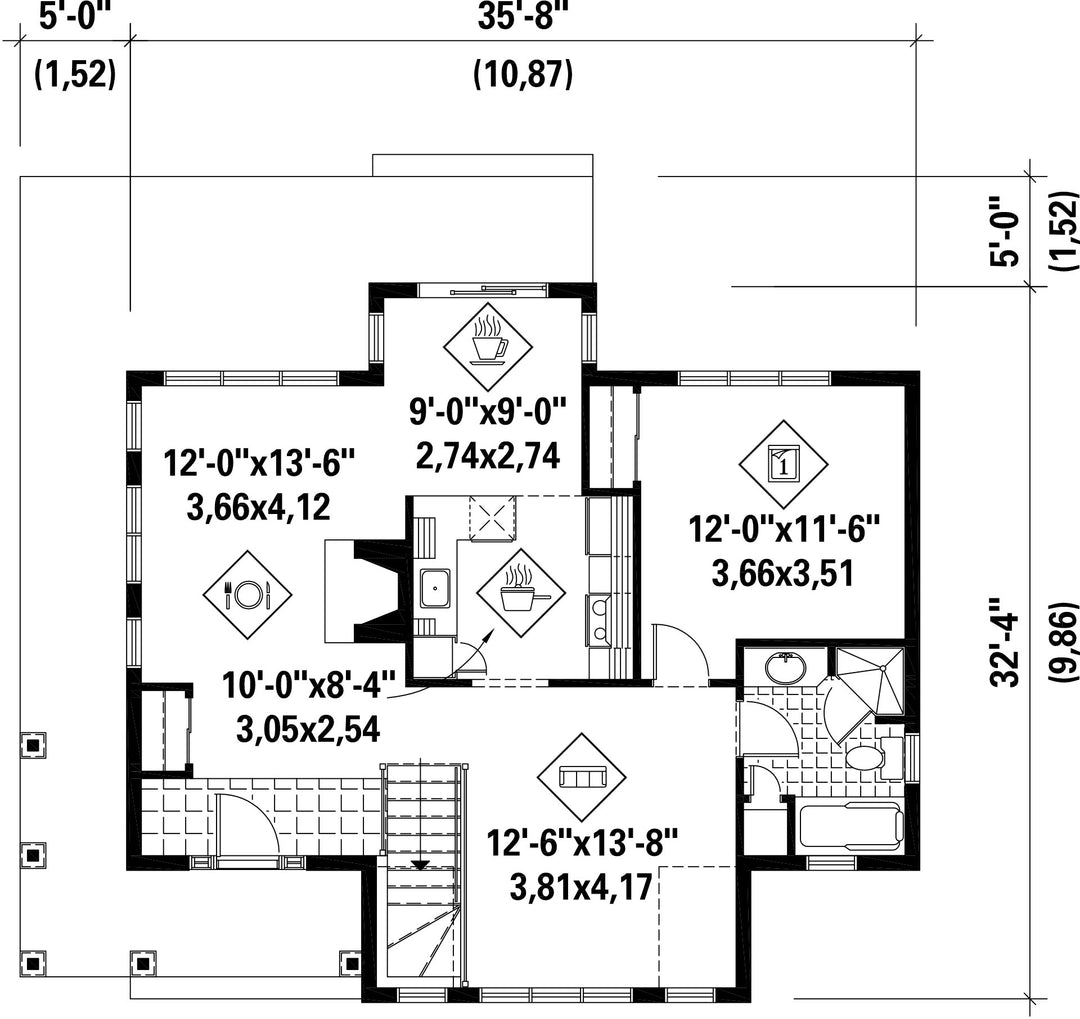
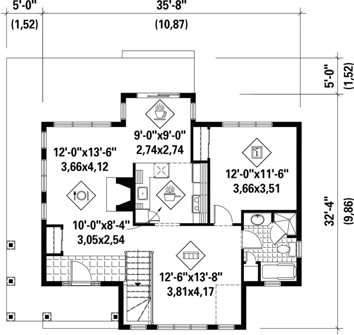
Those who like to spend time outdoors would love this charming cottage that is 35 feet 8 inches wide by 32 feet 4 inches deep and provides 941 square feet of living space. The house has several windows and a corner veranda.
The cottage includes a dining room with a fireplace, a kitchen with a breakfast nook, a living room, a bathroom as well as one bedroom. The ceilings in the living and dining rooms as well as in the breakfast nook are 10 feet high, and the ceiling in the kitchen is 8 feet high.
The cottage includes a dining room with a fireplace, a kitchen with a breakfast nook, a living room, a bathroom as well as one bedroom. The ceilings in the living and dining rooms as well as in the breakfast nook are 10 feet high, and the ceiling in the kitchen is 8 feet high.
Additional info
Measurements: Imperial| House style | Country |
Construction price
Approximate amount equivalent to what it would cost to have a general contractor (Montreal's South Shore region) build a similar home, excluding the lot and the infrastructure.
|
239221 $ |
|---|---|---|---|
| Front | 35 ft 8 in | Total living surface | 941 ft² |
| Depth | 32 ft 4 in | Bathrooms | 1 |
| Height | 23 ft 6 in | Bedrooms | 1 |
| First floor area | 941 ft² | Exterior walls | Aluminum |
| Kitchen | Nook + Laboratory | ||
| Garages | 0 | ||
| First floor wall | 10 ft | ||
| Front/back roof slope | 10/12 | ||
| House style | Country |
|---|---|
|
Construction price
Approximate amount equivalent to what it would cost to have a general contractor (Montreal's South Shore region) build a similar home, excluding the lot and the infrastructure.
|
239221 $ |
| Front | 35 ft 8 in |
| Total living surface | 941 ft² |
| Depth | 32 ft 4 in |
| Bathrooms | 1 |
| Height | 23 ft 6 in |
| Bedrooms | 1 |
| First floor area | 941 ft² |
| Exterior walls | Aluminum |
| Kitchen | Nook + Laboratory |
| Garages | 0 |
| First floor wall | 10 ft |
| Front/back roof slope | 10/12 |