Description
This elegant home seems to be a single-family home but in fact, it is a multigenerational house that includes two private dwellings on two floors. The house has a total living area of 2 775 square feet.
The ground floor, divided into two distinct units, has 1 807 square feet of living area, and includes the elders’ apartment on one side, and the young family’s common areas on the other side — living room, dining room and kitchen.
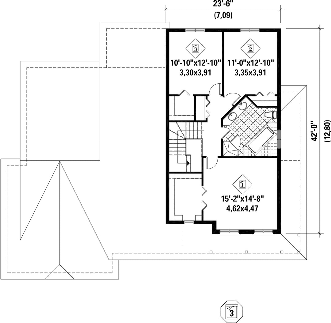
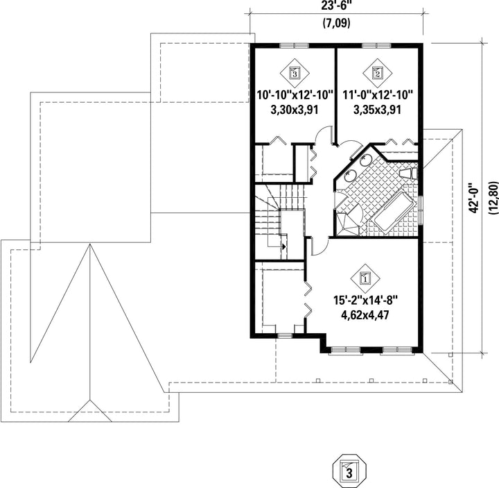
With 968 square feet of living area, the first floor includes three bedrooms and a family bathroom. The house also includes a two-car garage. Parents and children can therefore live under the same roof and be completely autonomous.
The ground floor, divided into two distinct units, has 1 807 square feet of living area, and includes the elders’ apartment on one side, and the young family’s common areas on the other side — living room, dining room and kitchen.
With 968 square feet of living area, the first floor includes three bedrooms and a family bathroom. The house also includes a two-car garage. Parents and children can therefore live under the same roof and be completely autonomous.
Additional info
Measurements: Imperial| House style | European |
Construction price
Approximate amount equivalent to what it would cost to have a general contractor (Montreal's South Shore region) build a similar home, excluding the lot and the infrastructure.
|
676854 $ |
|---|---|---|---|
| Front | 60 ft | Total living surface | 2775 ft² |
| Depth | 50 ft | Bathrooms | 2 |
| Height | 31 ft 2 in | Bedrooms | 4 |
| Master bedroom | Walk in | ||
| First floor area | 1807 ft² | Exterior walls | Aluminum + Brick |
| Second floor area | 968 ft² | Kitchen | Dining room |
| Garage area | 480 ft² | Garages | 2 |
| Garage wall | 8 ft | First floor wall | 8 ft |
| Second floor wall | 8 ft | Front/back roof slope | 6/12 |
| Left/right roof slope | 12/12 |
| House style | European |
|---|---|
|
Construction price
Approximate amount equivalent to what it would cost to have a general contractor (Montreal's South Shore region) build a similar home, excluding the lot and the infrastructure.
|
676854 $ |
| Front | 60 ft |
| Total living surface | 2775 ft² |
| Depth | 50 ft |
| Bathrooms | 2 |
| Height | 31 ft 2 in |
| Bedrooms | 4 |
| Master bedroom | Walk in |
| First floor area | 1807 ft² |
| Exterior walls | Aluminum + Brick |
| Second floor area | 968 ft² |
| Kitchen | Dining room |
| Garage area | 480 ft² |
| Garages | 2 |
| Garage wall | 8 ft |
| First floor wall | 8 ft |
| Second floor wall | 8 ft |
| Front/back roof slope | 6/12 |
| Left/right roof slope | 12/12 |