21778
21778
21778
21778
21778
21778

21778


Jeux de plans - Sets of plans
Regular price$1,035.00
/

This site is protected by hCaptcha and the hCaptcha Privacy Policy and Terms of Service apply.

Description

NULL

Additional info

Measurements: Imperial

House style Country Construction price 
Approximate amount equivalent to what it would cost to have a general contractor (Montreal's South Shore region) build a similar home, excluding the lot and the infrastructure.
256108 $
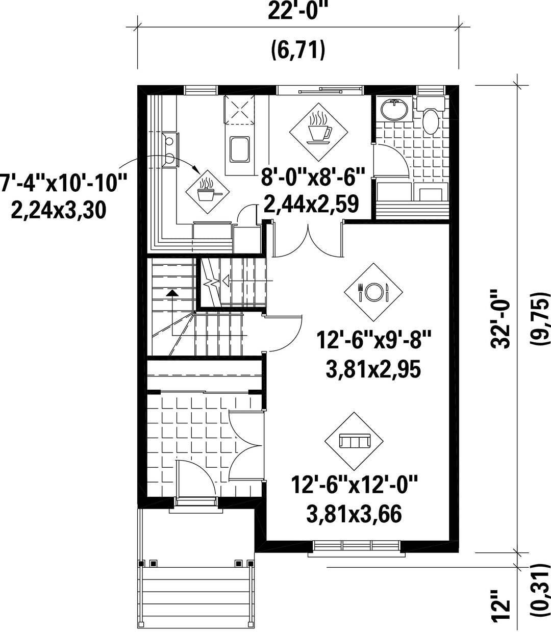
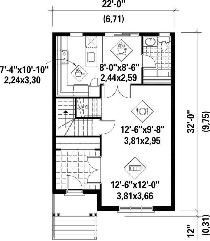
Front 22 ft Total living surface 1360 ft²
Depth 32 ftBathrooms 1
Height 31 ftBedrooms 3
First floor area 680 ft² Exterior walls Aluminum + Brick
Second floor area 680 ft² Kitchen Nook + L shaped
Garages 0
First floor wall 8 ft
Second floor wall 8 ftFront/back roof slope 7/12
Left/right roof slope 12/12
House style Country
Construction price 
Approximate amount equivalent to what it would cost to have a general contractor (Montreal's South Shore region) build a similar home, excluding the lot and the infrastructure.
256108 $
Front 22 ft
Total living surface 1360 ft²
Depth 32 ft
Bathrooms 1
Height 31 ft
Bedrooms 3
First floor area 680 ft²
Exterior walls Aluminum + Brick
Second floor area 680 ft²
Kitchen Nook + L shaped
Garages 0
First floor wall 8 ft
Second floor wall 8 ft
Front/back roof slope 7/12
Left/right roof slope 12/12

Ces plans de maison pourraient également vous intéresser


Recently viewed