Description
NULL
Additional info
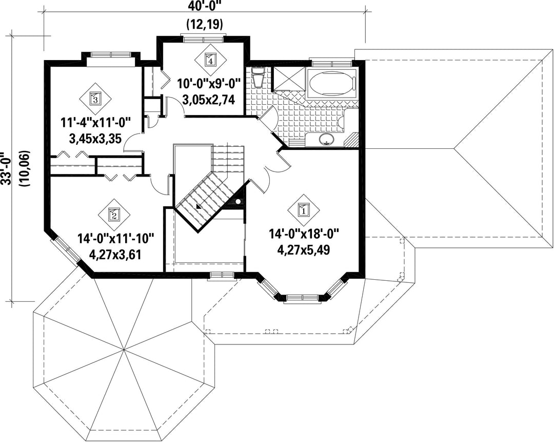
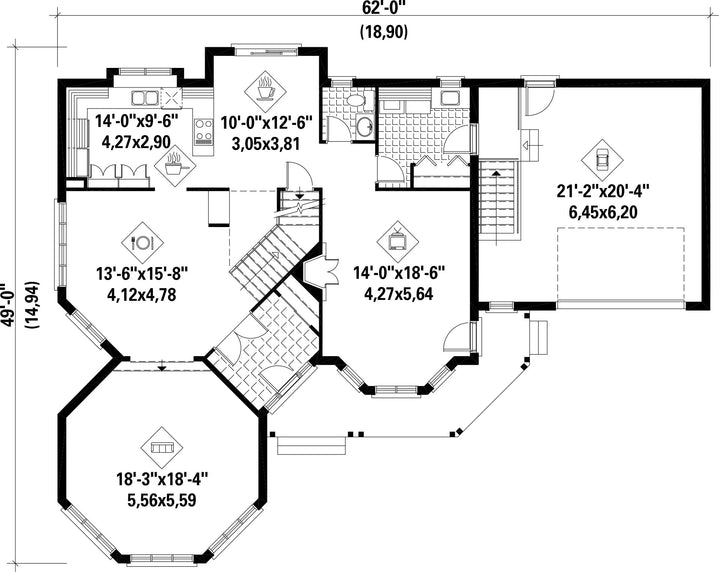
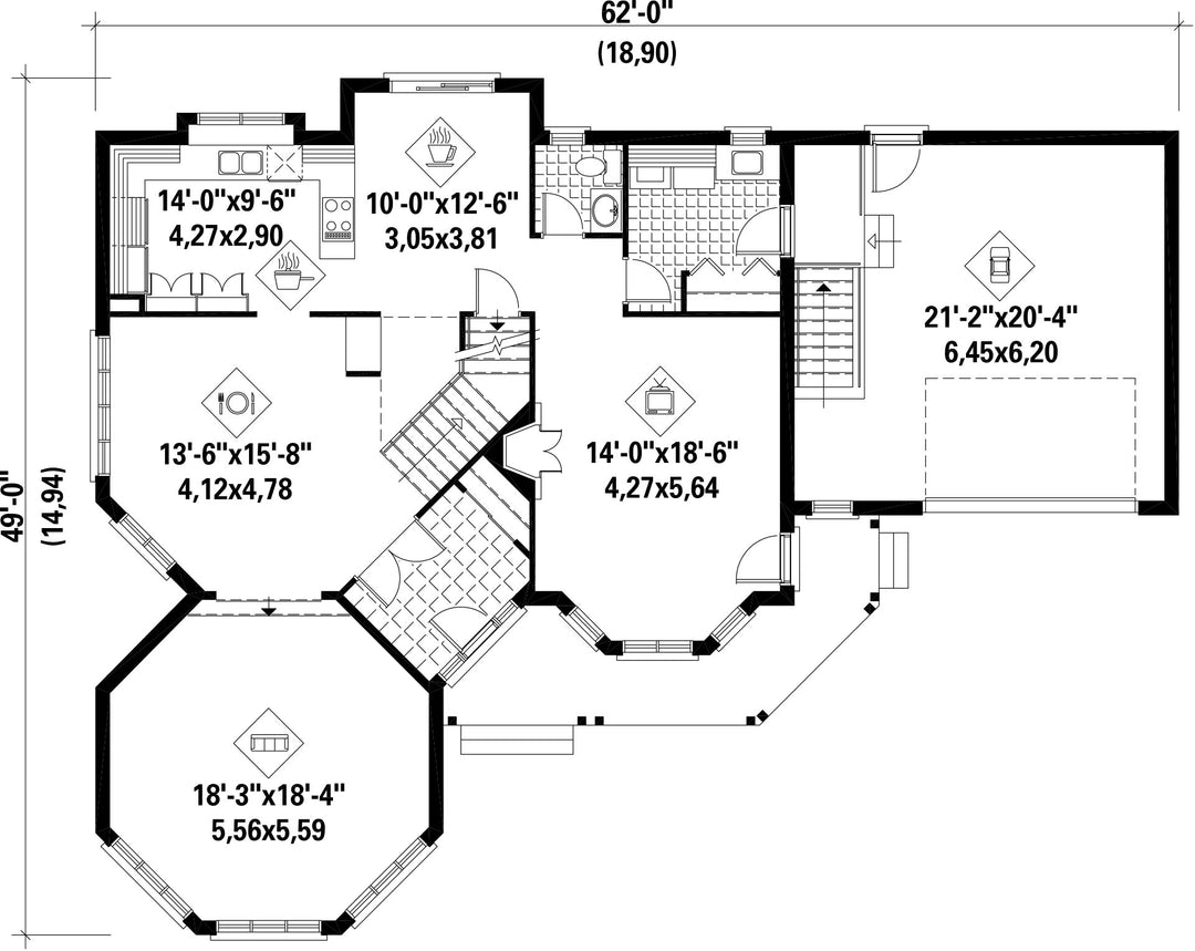
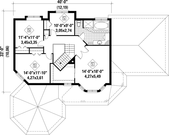
Measurements: Imperial| House style | Victorian |
Construction price
Approximate amount equivalent to what it would cost to have a general contractor (Montreal's South Shore region) build a similar home, excluding the lot and the infrastructure.
|
617336 $ |
|---|---|---|---|
| Front | 62 ft | Total living surface | 2615 ft² |
| Depth | 49 ft | Bathrooms | 1 |
| Height | 34 ft 10 in | Bedrooms | 4 |
| Master bedroom | Wardrobe + Double Doors | ||
| First floor area | 1479 ft² | Exterior walls | Aggregates + Brick |
| Second floor area | 1136 ft² | Kitchen | Dining area + U-shape + Dining room |
| Garage area | 484 ft² | Garages | 2 |
| Garage wall | 8 ft | First floor wall | 8 ft |
| Second floor wall | 8 ft | Front/back roof slope | 12/12 |
| Left/right roof slope | 12/12 |
| House style | Victorian |
|---|---|
|
Construction price
Approximate amount equivalent to what it would cost to have a general contractor (Montreal's South Shore region) build a similar home, excluding the lot and the infrastructure.
|
617336 $ |
| Front | 62 ft |
| Total living surface | 2615 ft² |
| Depth | 49 ft |
| Bathrooms | 1 |
| Height | 34 ft 10 in |
| Bedrooms | 4 |
| Master bedroom | Wardrobe + Double Doors |
| First floor area | 1479 ft² |
| Exterior walls | Aggregates + Brick |
| Second floor area | 1136 ft² |
| Kitchen | Dining area + U-shape + Dining room |
| Garage area | 484 ft² |
| Garages | 2 |
| Garage wall | 8 ft |
| First floor wall | 8 ft |
| Second floor wall | 8 ft |
| Front/back roof slope | 12/12 |
| Left/right roof slope | 12/12 |