Description
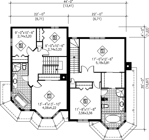
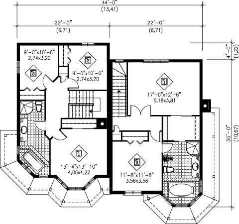
These superb semi-detached two-storey houses stand out with their architectural details, numerous windows and large veranda. They each provide 1,431 square feet of total living space including. The surface area is identical in both units, that is 710 square feet for the ground floor and 721 square feet for the upper floor, but the floor layout is different.
The ground floor of the left house includes a closed entrance hall with a closet, a powder room with a laundry area, a large living room with a fireplace, a U-shaped kitchen and an open dining room.
The ground floor of the right house includes a closed entrance hall with a closet, a powder room, a large living room with a fireplace, a dining room, and a kitchen with a breakfast nook in the turret.
The upper floor of the left house includes a bathroom and three bedrooms. The upper floor of the right house has a large bathroom and two bedrooms, including a master bedroom with a huge walk-in closet.
The ground floor of the left house includes a closed entrance hall with a closet, a powder room with a laundry area, a large living room with a fireplace, a U-shaped kitchen and an open dining room.
The ground floor of the right house includes a closed entrance hall with a closet, a powder room, a large living room with a fireplace, a dining room, and a kitchen with a breakfast nook in the turret.
The upper floor of the left house includes a bathroom and three bedrooms. The upper floor of the right house has a large bathroom and two bedrooms, including a master bedroom with a huge walk-in closet.
Additional info
Measurements: Imperial| House style | Victorian |
Construction price
Approximate amount equivalent to what it would cost to have a general contractor (Montreal's South Shore region) build a similar home, excluding the lot and the infrastructure.
|
566241 $ |
|---|---|---|---|
| Front | 44 ft | Total living surface | 2863 ft² |
| Depth | 39 ft | Bathrooms | 2 |
| Height | 32 ft 8 in | Bedrooms | 5 |
| Master bedroom | N / A | ||
| First floor area | 1421 ft² | Exterior walls | Aluminum + Brick |
| Second floor area | 1442 ft² | Kitchen | N / A |
| Garages | 0 | ||
| First floor wall | 9 ft | ||
| Second floor wall | 8 ft | Front/back roof slope | 8/12 |
| Left/right roof slope | 8/12 |
| House style | Victorian |
|---|---|
|
Construction price
Approximate amount equivalent to what it would cost to have a general contractor (Montreal's South Shore region) build a similar home, excluding the lot and the infrastructure.
|
566241 $ |
| Front | 44 ft |
| Total living surface | 2863 ft² |
| Depth | 39 ft |
| Bathrooms | 2 |
| Height | 32 ft 8 in |
| Bedrooms | 5 |
| Master bedroom | N / A |
| First floor area | 1421 ft² |
| Exterior walls | Aluminum + Brick |
| Second floor area | 1442 ft² |
| Kitchen | N / A |
| Garages | 0 |
| First floor wall | 9 ft |
| Second floor wall | 8 ft |
| Front/back roof slope | 8/12 |
| Left/right roof slope | 8/12 |