04453
04453
04453

04453


Sets of plans
Regular price$864.00
/

This site is protected by hCaptcha and the hCaptcha Privacy Policy and Terms of Service apply.

Description

NULL

Additional info

Measurements: Imperial

House style Modern Construction price 
Approximate amount equivalent to what it would cost to have a general contractor (Montreal's South Shore region) build a similar home, excluding the lot and the infrastructure.
222287 $
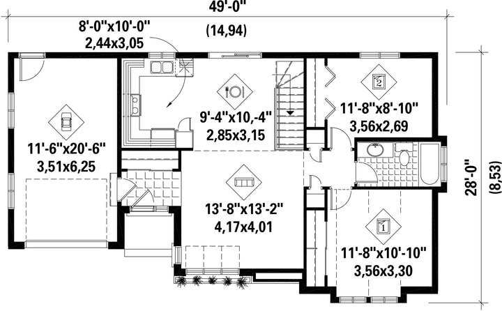
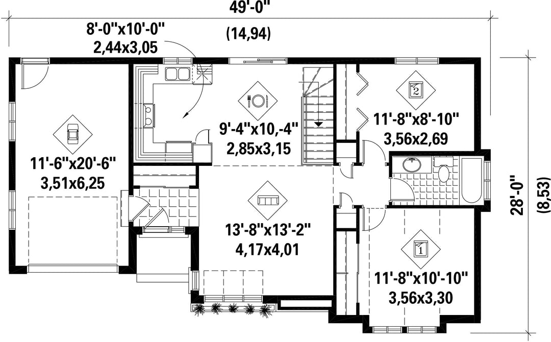
Front 49 ft Total living surface 902 ft²
Depth 28 ftBathrooms 1
Height 17 ft 6 inBedrooms 2
Master bedroom N / A
First floor area 902 ft² Exterior walls Aggregates + Aluminum + Brick
Kitchen U-shape
Garages 1
Garage wall 8 ftFirst floor wall 8 ft
Front/back roof slope 6/12
House style Modern
Construction price 
Approximate amount equivalent to what it would cost to have a general contractor (Montreal's South Shore region) build a similar home, excluding the lot and the infrastructure.
222287 $
Front 49 ft
Total living surface 902 ft²
Depth 28 ft
Bathrooms 1
Height 17 ft 6 in
Bedrooms 2
Master bedroom N / A
First floor area 902 ft²
Exterior walls Aggregates + Aluminum + Brick
Kitchen U-shape
Garages 1
Garage wall 8 ft
First floor wall 8 ft
Front/back roof slope 6/12

These house plans might also interest you


Recently viewed