Description
With its Victorian architecture and large rooms, this superb two-storey home is most appealing. The house is 38 feet wide by 38 feet deep and has a living area of 1412 square feet.
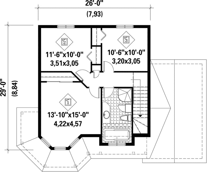
The main floor, with a living area of 698 square feet, includes a kitchen, a dining room, a living room, a powder room and a one-car garage.
With a living area of 714 square feet, the second floor accommodates a very bright master bedroom, two additional bedrooms and a bathroom.
The main floor, with a living area of 698 square feet, includes a kitchen, a dining room, a living room, a powder room and a one-car garage.
With a living area of 714 square feet, the second floor accommodates a very bright master bedroom, two additional bedrooms and a bathroom.
Additional info
Measurements: Imperial| House style | Victorian |
Construction price
Approximate amount equivalent to what it would cost to have a general contractor (Montreal's South Shore region) build a similar home, excluding the lot and the infrastructure.
|
296479 $ |
|---|---|---|---|
| Front | 38 ft | Total living surface | 1412 ft² |
| Depth | 31 ft | Bathrooms | 1 |
| Height | 29 ft 6 in | Bedrooms | 3 |
| Master bedroom | N / A | ||
| First floor area | 698 ft² | Exterior walls | Aluminum + Brick |
| Second floor area | 714 ft² | Kitchen | N / A |
| Garage area | 268 ft² | Garages | 1 |
| Garage wall | 8 ft | First floor wall | 8 ft |
| Second floor wall | 8 ft | Front/back roof slope | 8/12 |
| Left/right roof slope | 8/12 |
| House style | Victorian |
|---|---|
|
Construction price
Approximate amount equivalent to what it would cost to have a general contractor (Montreal's South Shore region) build a similar home, excluding the lot and the infrastructure.
|
296479 $ |
| Front | 38 ft |
| Total living surface | 1412 ft² |
| Depth | 31 ft |
| Bathrooms | 1 |
| Height | 29 ft 6 in |
| Bedrooms | 3 |
| Master bedroom | N / A |
| First floor area | 698 ft² |
| Exterior walls | Aluminum + Brick |
| Second floor area | 714 ft² |
| Kitchen | N / A |
| Garage area | 268 ft² |
| Garages | 1 |
| Garage wall | 8 ft |
| First floor wall | 8 ft |
| Second floor wall | 8 ft |
| Front/back roof slope | 8/12 |
| Left/right roof slope | 8/12 |