Description
This beautiful resolutely urban two-storey house stands out with its abundant windows, elegant exterior cladding, ceilings that are 14 feet high in the living area, as well as a solarium in the back of the house next to the dining room and the kitchen. The one-car attached garage occupies a 276 square-foot area.
The open ground floor features 1,152 square feet of living space and includes a powder room, a large laundry room, a living room and a dining room divided by a gas fireplace, a den located next to the kitchen with an outdoor access, as well as a large kitchen with an island equipped for a cooktop that can sit three people, and a large pantry that provides additional storage.
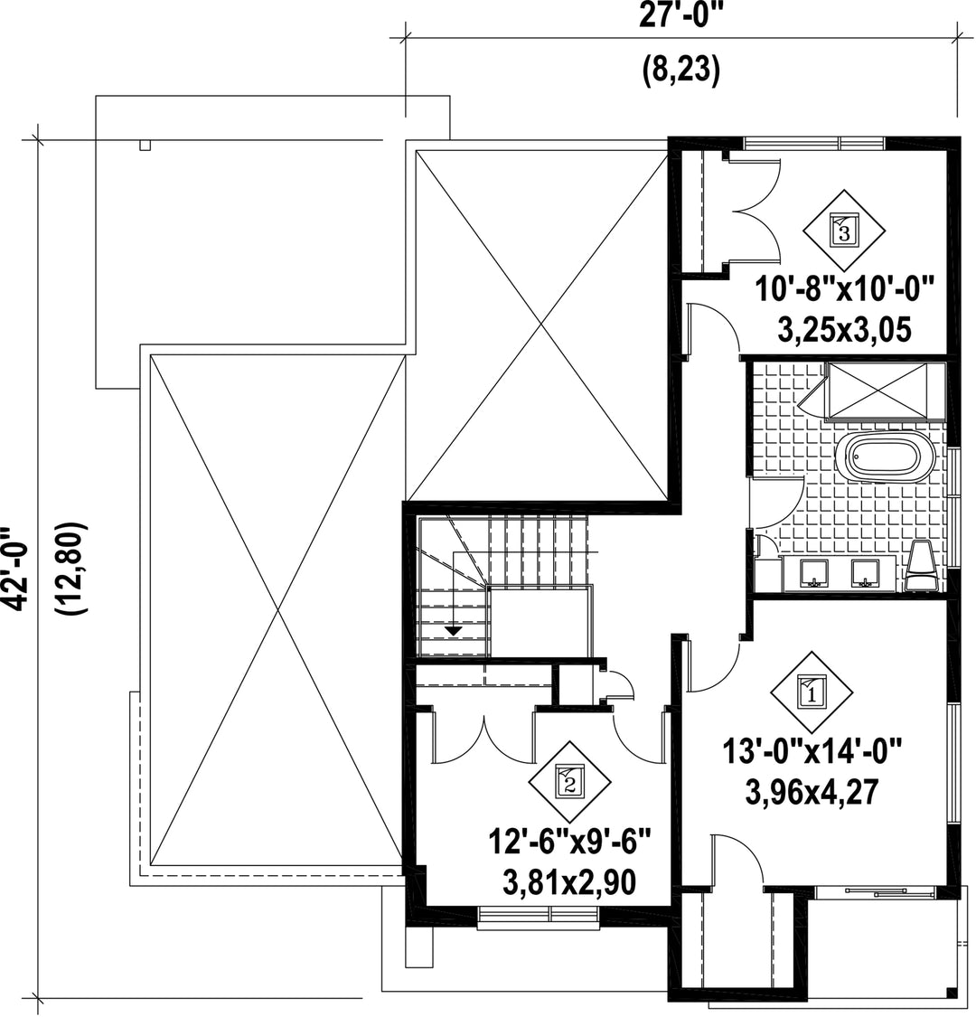
The upper floor has a 820 square-foot living area and features a bathroom with a twin vanity and a freestanding bathtub located next to a large glass shower, as well as three bedrooms, including a master bedroom with a large walk-in closet and a small private balcony accessible through a patio door.
The open ground floor features 1,152 square feet of living space and includes a powder room, a large laundry room, a living room and a dining room divided by a gas fireplace, a den located next to the kitchen with an outdoor access, as well as a large kitchen with an island equipped for a cooktop that can sit three people, and a large pantry that provides additional storage.
The upper floor has a 820 square-foot living area and features a bathroom with a twin vanity and a freestanding bathtub located next to a large glass shower, as well as three bedrooms, including a master bedroom with a large walk-in closet and a small private balcony accessible through a patio door.
Additional info
Measurements: Imperial| House style | Urban |
Construction price
Approximate amount equivalent to what it would cost to have a general contractor (Montreal's South Shore region) build a similar home, excluding the lot and the infrastructure.
|
516191 $ |
|---|---|---|---|
| Front | 40 ft | Total living surface | 1972 ft² |
| Depth | 42 ft | Bathrooms | 1 |
| Height | 25 ft 6 in | Bedrooms | 3 |
| Master bedroom | Wardrobe | ||
| First floor area | 1152 ft² | Exterior walls | Aggregates + Wood + Brick + Stone |
| Second floor area | 820 ft² | Kitchen | L-shaped + Island |
| Garage area | 276 ft² | Garages | 1 |
| Garage wall | 8 ft | First floor wall | 9 + 10 ft |
| Second floor wall | 8 ft | Front/back roof slope | N / A |
| Left/right roof slope | N / A |
| House style | Urban |
|---|---|
|
Construction price
Approximate amount equivalent to what it would cost to have a general contractor (Montreal's South Shore region) build a similar home, excluding the lot and the infrastructure.
|
516191 $ |
| Front | 40 ft |
| Total living surface | 1972 ft² |
| Depth | 42 ft |
| Bathrooms | 1 |
| Height | 25 ft 6 in |
| Bedrooms | 3 |
| Master bedroom | Wardrobe |
| First floor area | 1152 ft² |
| Exterior walls | Aggregates + Wood + Brick + Stone |
| Second floor area | 820 ft² |
| Kitchen | L-shaped + Island |
| Garage area | 276 ft² |
| Garages | 1 |
| Garage wall | 8 ft |
| First floor wall | 9 + 10 ft |
| Second floor wall | 8 ft |
| Front/back roof slope | N / A |
| Left/right roof slope | N / A |