Description
This impressive two-storey house stands out with its brick facing and decorative shutters. The home is 38 feet wide by 26 feet 6 inches deep and provides 1,363 square feet of living space.
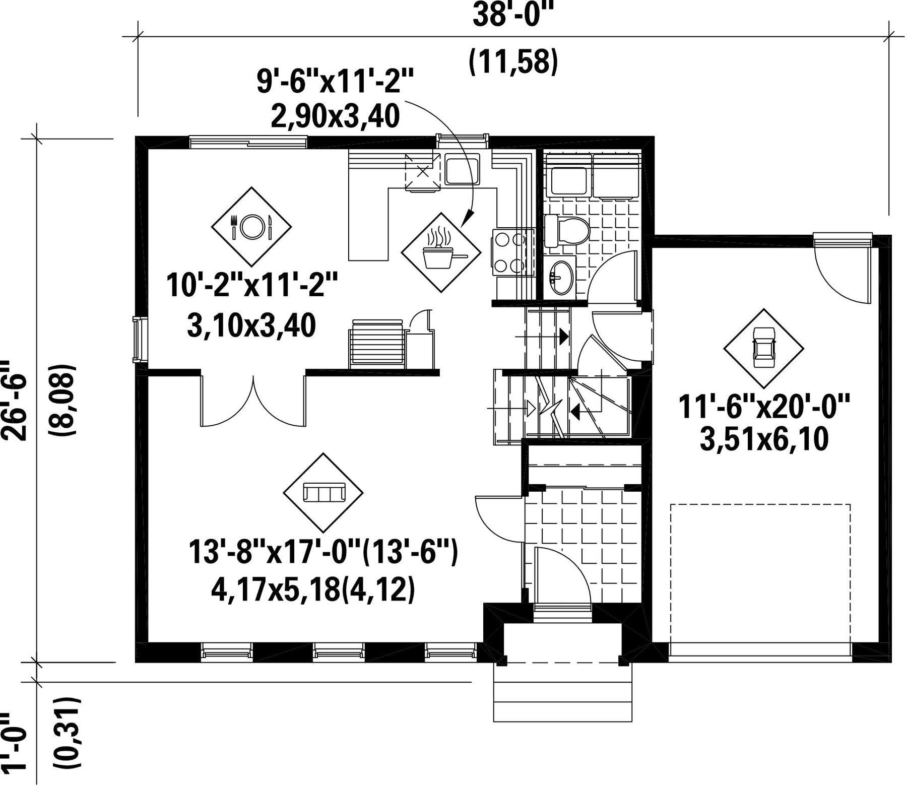
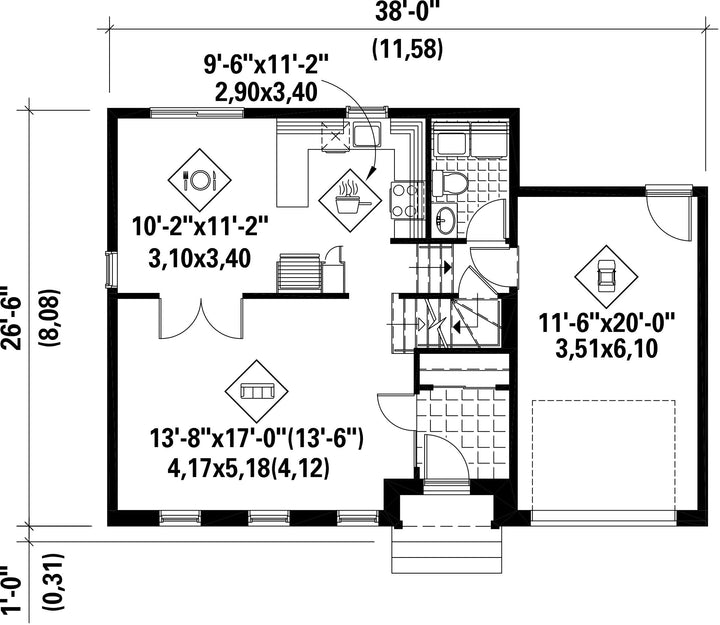
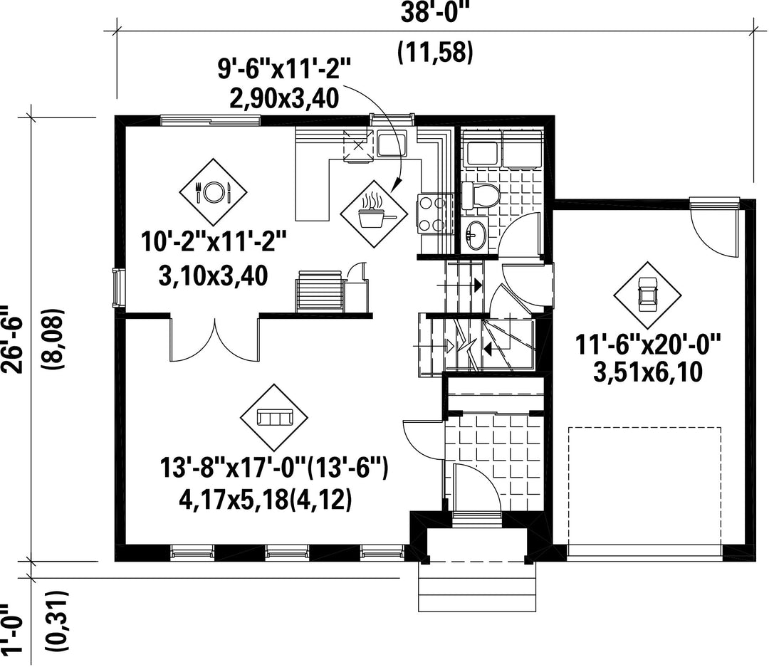
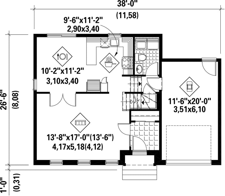
With a 674 square foot living area, the ground floor includes a dining room, a large kitchen, a living room and a powder room. There is also a 261 square foot one-car garage.
The second floor covers 689 square feet and includes a bathroom and three bedrooms.
With a 674 square foot living area, the ground floor includes a dining room, a large kitchen, a living room and a powder room. There is also a 261 square foot one-car garage.
The second floor covers 689 square feet and includes a bathroom and three bedrooms.
Additional info
Measurements: Imperial| House style | Colonial |
Construction price
Approximate amount equivalent to what it would cost to have a general contractor (Montreal's South Shore region) build a similar home, excluding the lot and the infrastructure.
|
276657 $ |
|---|---|---|---|
| Front | 38 ft | Total living surface | 1363 ft² |
| Depth | 26 ft 6 in | Bathrooms | 1 |
| Height | 29 ft 8 in | Bedrooms | 3 |
| Master bedroom | N / A | Master bedroom - comments | --- |
| First floor area | 674 ft² | Exterior walls | Aluminum + Brick |
| Second floor area | 689 ft² | Kitchen | N / A |
| Garage area | 261 ft² | Garages | 1 |
| Garage wall | 8 ft | First floor wall | 8 ft |
| Second floor wall | 8 ft | Front/back roof slope | 8/12 |
| House style | Colonial |
|---|---|
|
Construction price
Approximate amount equivalent to what it would cost to have a general contractor (Montreal's South Shore region) build a similar home, excluding the lot and the infrastructure.
|
276657 $ |
| Front | 38 ft |
| Total living surface | 1363 ft² |
| Depth | 26 ft 6 in |
| Bathrooms | 1 |
| Height | 29 ft 8 in |
| Bedrooms | 3 |
| Master bedroom | N / A |
| Master bedroom - comments | --- |
| First floor area | 674 ft² |
| Exterior walls | Aluminum + Brick |
| Second floor area | 689 ft² |
| Kitchen | N / A |
| Garage area | 261 ft² |
| Garages | 1 |
| Garage wall | 8 ft |
| First floor wall | 8 ft |
| Second floor wall | 8 ft |
| Front/back roof slope | 8/12 |