CCL00042
CCL00042
CCL00042
CCL00042
CCL00042

CCL00042


Jeux de plans - Sets of plans
Regular price$1,188.00
/

This site is protected by hCaptcha and the hCaptcha Privacy Policy and Terms of Service apply.

Description

Veranda

Additional info

Measurements: Imperial

House style Colonial Construction price 
Approximate amount equivalent to what it would cost to have a general contractor (Montreal's South Shore region) build a similar home, excluding the lot and the infrastructure.
490610 $
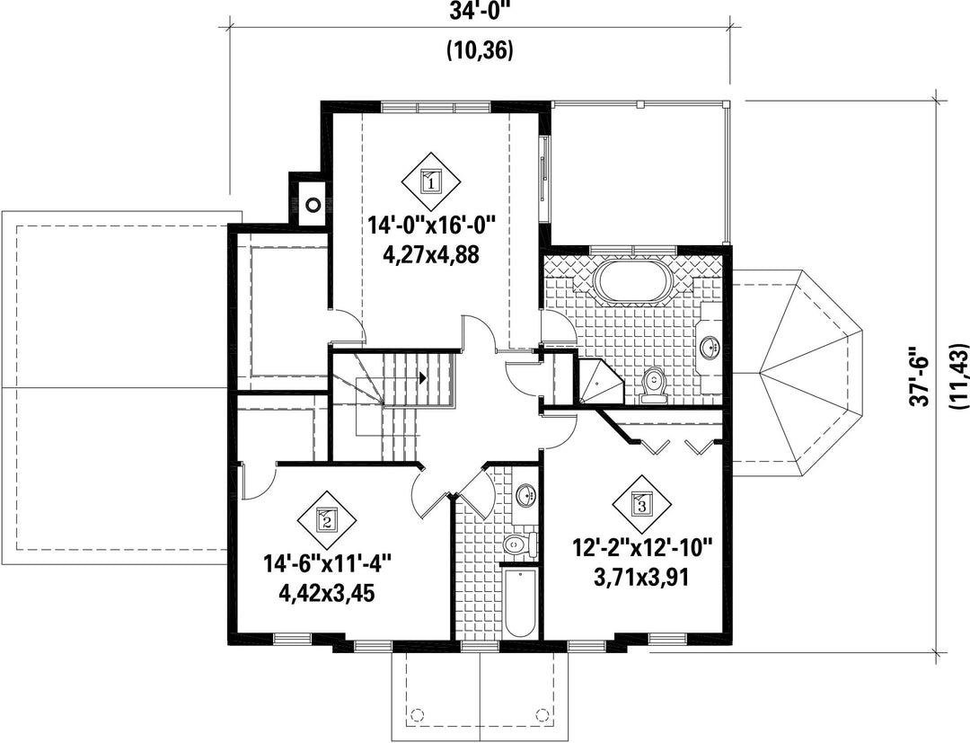
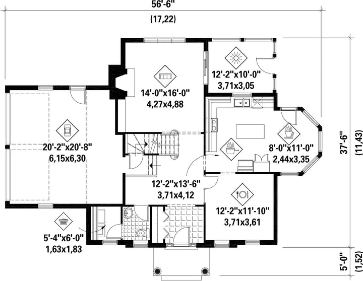
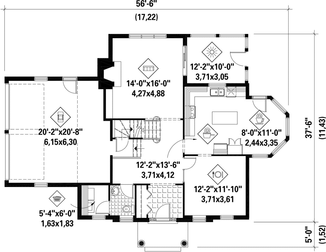
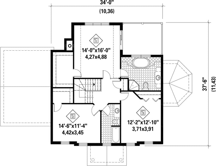
Front 56 ft 6 in Total living surface 2153 ft²
Depth 37 ftBathrooms 1
Height 36 ft 7 inBedrooms 3
Master bedroom Podium bath + Shower + Simple sink + Walk in + Double doors + Toilet
First floor area 1062 ft² Exterior walls Aluminum + Brick
Second floor area 1091 ft² Kitchen Nook + L shaped + Island
Garage area 443 ft² Garages 2
Garage wall 8 ftFirst floor wall 9 ft
Second floor wall 8 ftFront/back roof slope 12/12
House style Colonial
Construction price 
Approximate amount equivalent to what it would cost to have a general contractor (Montreal's South Shore region) build a similar home, excluding the lot and the infrastructure.
490610 $
Front 56 ft 6 in
Total living surface 2153 ft²
Depth 37 ft
Bathrooms 1
Height 36 ft 7 in
Bedrooms 3
Master bedroom Podium bath + Shower + Simple sink + Walk in + Double doors + Toilet
First floor area 1062 ft²
Exterior walls Aluminum + Brick
Second floor area 1091 ft²
Kitchen Nook + L shaped + Island
Garage area 443 ft²
Garages 2
Garage wall 8 ft
First floor wall 9 ft
Second floor wall 8 ft
Front/back roof slope 12/12

Ces plans de maison pourraient également vous intéresser


Recently viewed