CCL00038
CCL00038
CCL00038
CCL00038

CCL00038


Jeux de plans - Sets of plans
Regular price$1,134.00
/

This site is protected by hCaptcha and the hCaptcha Privacy Policy and Terms of Service apply.

Description

NULL

Additional info

Measurements: Imperial

House style Colonial Construction price 
Approximate amount equivalent to what it would cost to have a general contractor (Montreal's South Shore region) build a similar home, excluding the lot and the infrastructure.
377112 $
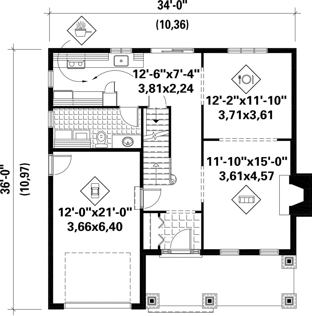
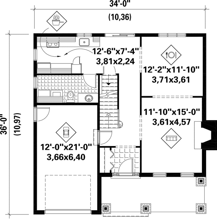
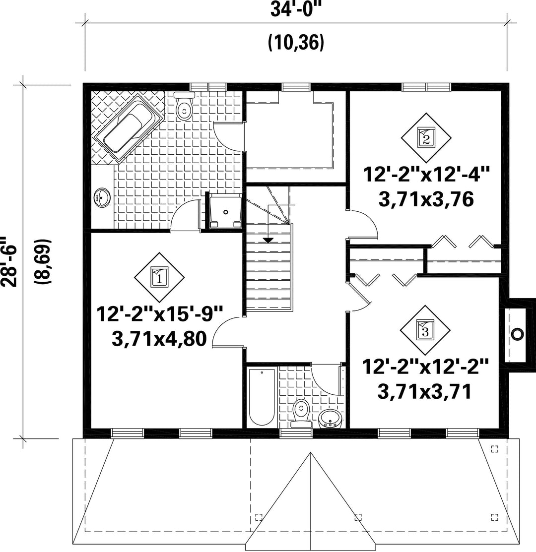
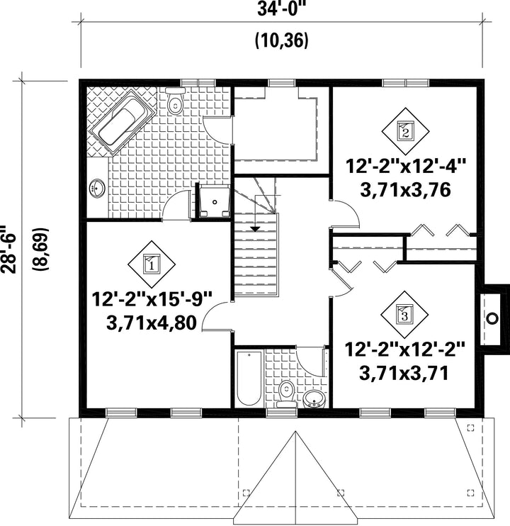
Front 34 ft Total living surface 1761 ft²
Depth 36 ftBathrooms 1
Height 28 ft 5 inBedrooms 3
Master bedroom Podium bath + Shower + Simple sink + Walk in + Toilet
First floor area 792 ft² Exterior walls Aluminum + Brick
Second floor area 969 ft² Kitchen Laboratory + Dining room
Garage area 280 ft² Garages 1
Garage wall 8 ftFirst floor wall 8 ft
Second floor wall 8 ftFront/back roof slope 7/12
Left/right roof slope 8/12
House style Colonial
Construction price 
Approximate amount equivalent to what it would cost to have a general contractor (Montreal's South Shore region) build a similar home, excluding the lot and the infrastructure.
377112 $
Front 34 ft
Total living surface 1761 ft²
Depth 36 ft
Bathrooms 1
Height 28 ft 5 in
Bedrooms 3
Master bedroom Podium bath + Shower + Simple sink + Walk in + Toilet
First floor area 792 ft²
Exterior walls Aluminum + Brick
Second floor area 969 ft²
Kitchen Laboratory + Dining room
Garage area 280 ft²
Garages 1
Garage wall 8 ft
First floor wall 8 ft
Second floor wall 8 ft
Front/back roof slope 7/12
Left/right roof slope 8/12

Ces plans de maison pourraient également vous intéresser


Recently viewed