Description
Large balcony surrounding the house
Additional info
Measurements: Imperial| House style | Colonial |
Construction price
Approximate amount equivalent to what it would cost to have a general contractor (Montreal's South Shore region) build a similar home, excluding the lot and the infrastructure.
|
818295 $ |
|---|---|---|---|
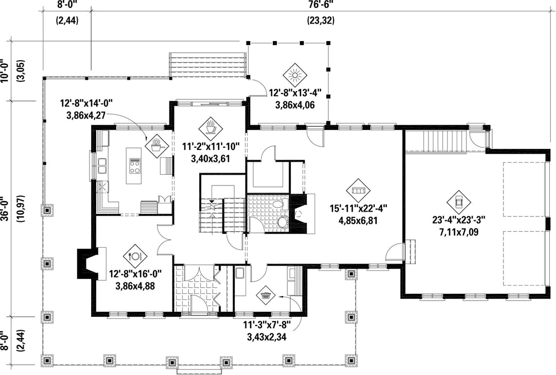
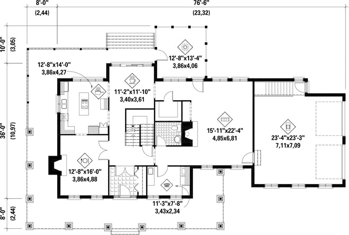
| Front | 74 ft 2 in | Total living surface | 3442 ft² |
| Depth | 32 ft | Bathrooms | 2 |
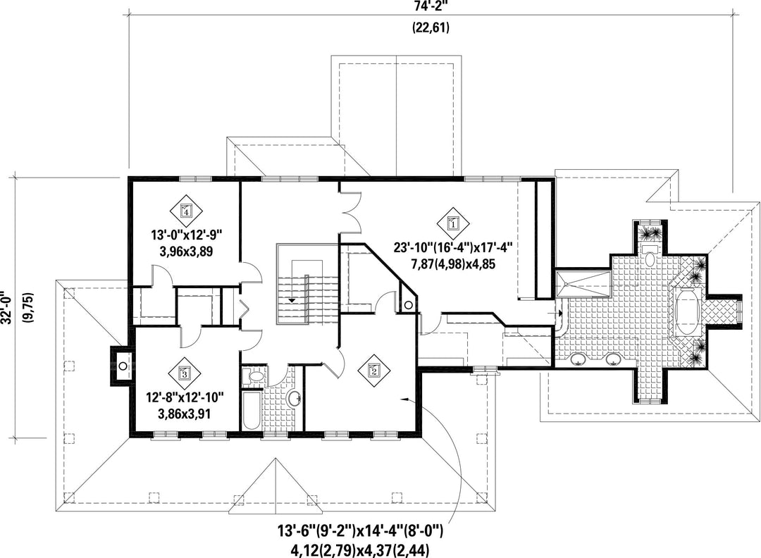
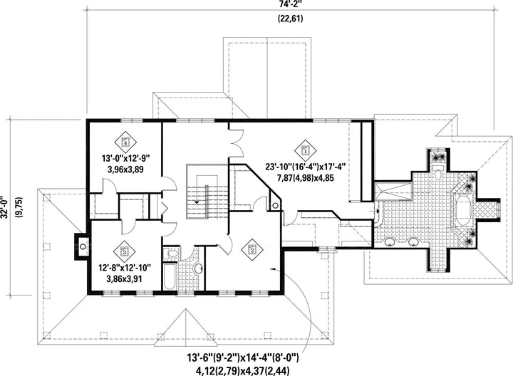
| Height | 34 ft 5 in | Bedrooms | 4 |
| Master bedroom | Pedestal bath + Shower + Double sink + Wardrobe + Double doors + Toilet | Master bedroom - comments | PRIVATE BATHROOM ADJOINING THE MASTER BEDROOM, WALK-IN CLOSET IN THE MASTER BEDROOM |
| First floor area | 1598 ft² | Exterior walls | Aluminum + Brick |
| Second floor area | 1844 ft² | Kitchen | Dining area + L-shaped layout + Dining room + Island |
| Garage area | 665 ft² | Garages | 2 |
| Garage wall | 8 ft | First floor wall | 9 ft |
| Second floor wall | 8 ft | Front/back roof slope | 9/12 |
| Left/right roof slope | 12/12 |
| House style | Colonial |
|---|---|
|
Construction price
Approximate amount equivalent to what it would cost to have a general contractor (Montreal's South Shore region) build a similar home, excluding the lot and the infrastructure.
|
818295 $ |
| Front | 74 ft 2 in |
| Total living surface | 3442 ft² |
| Depth | 32 ft |
| Bathrooms | 2 |
| Height | 34 ft 5 in |
| Bedrooms | 4 |
| Master bedroom | Pedestal bath + Shower + Double sink + Wardrobe + Double doors + Toilet |
| Master bedroom - comments | PRIVATE BATHROOM ADJOINING THE MASTER BEDROOM, WALK-IN CLOSET IN THE MASTER BEDROOM |
| First floor area | 1598 ft² |
| Exterior walls | Aluminum + Brick |
| Second floor area | 1844 ft² |
| Kitchen | Dining area + L-shaped layout + Dining room + Island |
| Garage area | 665 ft² |
| Garages | 2 |
| Garage wall | 8 ft |
| First floor wall | 9 ft |
| Second floor wall | 8 ft |
| Front/back roof slope | 9/12 |
| Left/right roof slope | 12/12 |