Description
Stately, classical and imposing, this home's architecture is reminiscent of Colonial and Greek Renaissance styles. The main building is very symmetrical but the garage and the wrap-around veranda soften the structure and make the house much more inviting. A beautiful landscape will only enhance the feeling. The house is 56 feet 4 in wide by 31 feet deep and has a living area of 2,371 square feet.
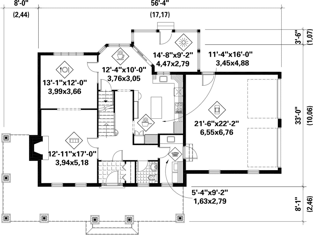
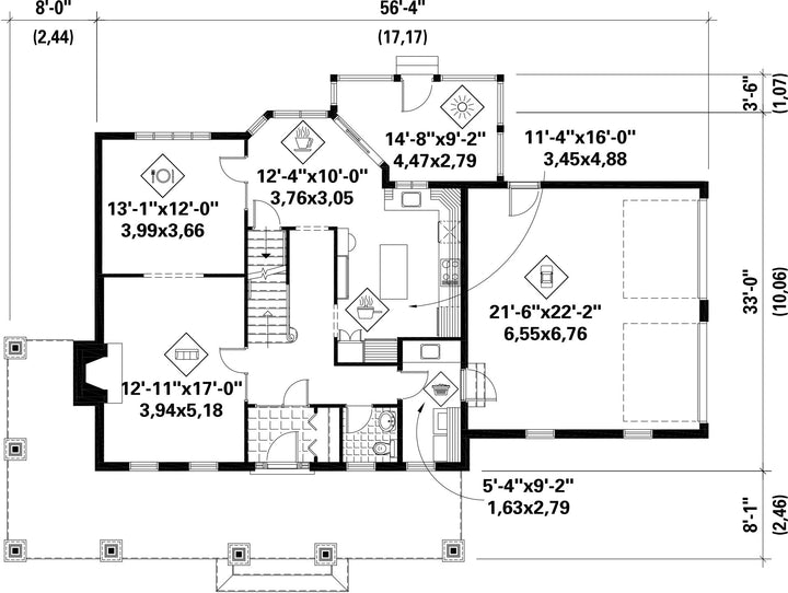
With a living area of 1,035 square feet, the ground floor includes a kitchen, a dining room, a breakfast nook, a living room, a solarium, a powder room, a laundry room and a 525 square feet two-car garage.
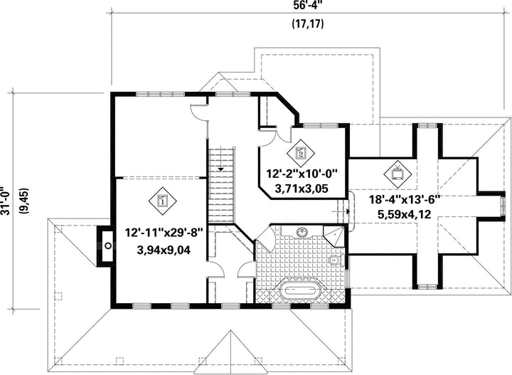
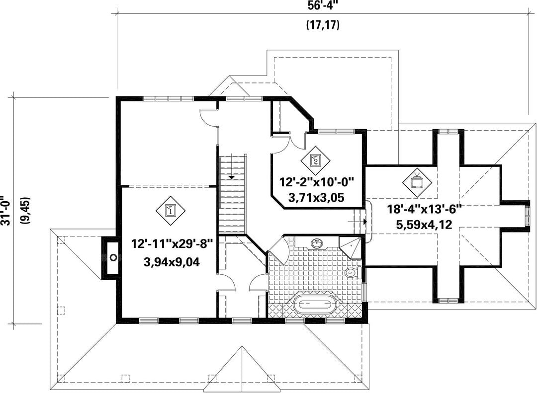
The second floor has 1,336 square feet and houses two bedrooms, one of which is a huge master bedroom, a bathroom and a family room located above the garage.
With a living area of 1,035 square feet, the ground floor includes a kitchen, a dining room, a breakfast nook, a living room, a solarium, a powder room, a laundry room and a 525 square feet two-car garage.
The second floor has 1,336 square feet and houses two bedrooms, one of which is a huge master bedroom, a bathroom and a family room located above the garage.
Additional info
Measurements: Imperial| House style | Colonial |
Construction price
Approximate amount equivalent to what it would cost to have a general contractor (Montreal's South Shore region) build a similar home, excluding the lot and the infrastructure.
|
527149 $ |
|---|---|---|---|
| Front | 56 ft 4 in | Total living surface | 2371 ft² |
| Depth | 31 ft | Bathrooms | 1 |
| Height | 34 ft 1 in | Bedrooms | 2 |
| Master bedroom | Wardrobe | ||
| First floor area | 1035 ft² | Exterior walls | Aluminum + Brick |
| Second floor area | 1336 ft² | Kitchen | Dining area + L-shaped layout + Dining room + Island |
| Garage area | 525 ft² | Garages | 2 |
| Garage wall | 8 ft | First floor wall | 9 ft |
| Second floor wall | 8 ft | Front/back roof slope | 9/12 |
| Left/right roof slope | 12/12 |
| House style | Colonial |
|---|---|
|
Construction price
Approximate amount equivalent to what it would cost to have a general contractor (Montreal's South Shore region) build a similar home, excluding the lot and the infrastructure.
|
527149 $ |
| Front | 56 ft 4 in |
| Total living surface | 2371 ft² |
| Depth | 31 ft |
| Bathrooms | 1 |
| Height | 34 ft 1 in |
| Bedrooms | 2 |
| Master bedroom | Wardrobe |
| First floor area | 1035 ft² |
| Exterior walls | Aluminum + Brick |
| Second floor area | 1336 ft² |
| Kitchen | Dining area + L-shaped layout + Dining room + Island |
| Garage area | 525 ft² |
| Garages | 2 |
| Garage wall | 8 ft |
| First floor wall | 9 ft |
| Second floor wall | 8 ft |
| Front/back roof slope | 9/12 |
| Left/right roof slope | 12/12 |