71708
71708
71708
71708
71708
71708
71708

71708


Jeux de plans - Sets of plans
Regular price$1,188.00
/

This site is protected by hCaptcha and the hCaptcha Privacy Policy and Terms of Service apply.

Description

NULL

Additional info

Measurements: Imperial

House style Colonial Construction price 
Approximate amount equivalent to what it would cost to have a general contractor (Montreal's South Shore region) build a similar home, excluding the lot and the infrastructure.
446216 $
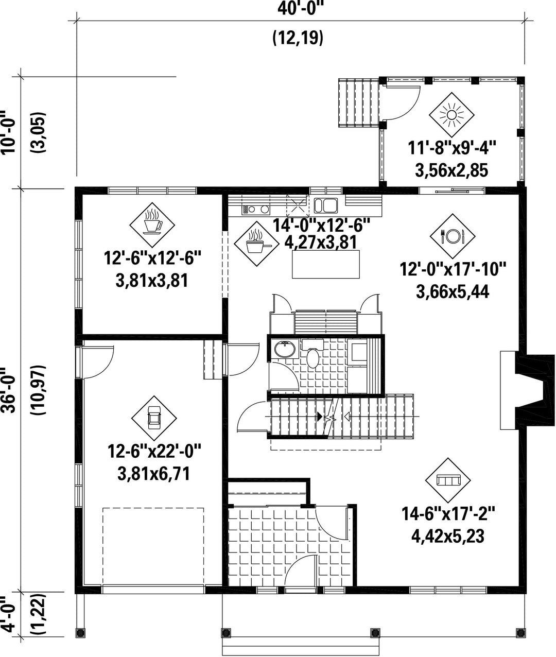
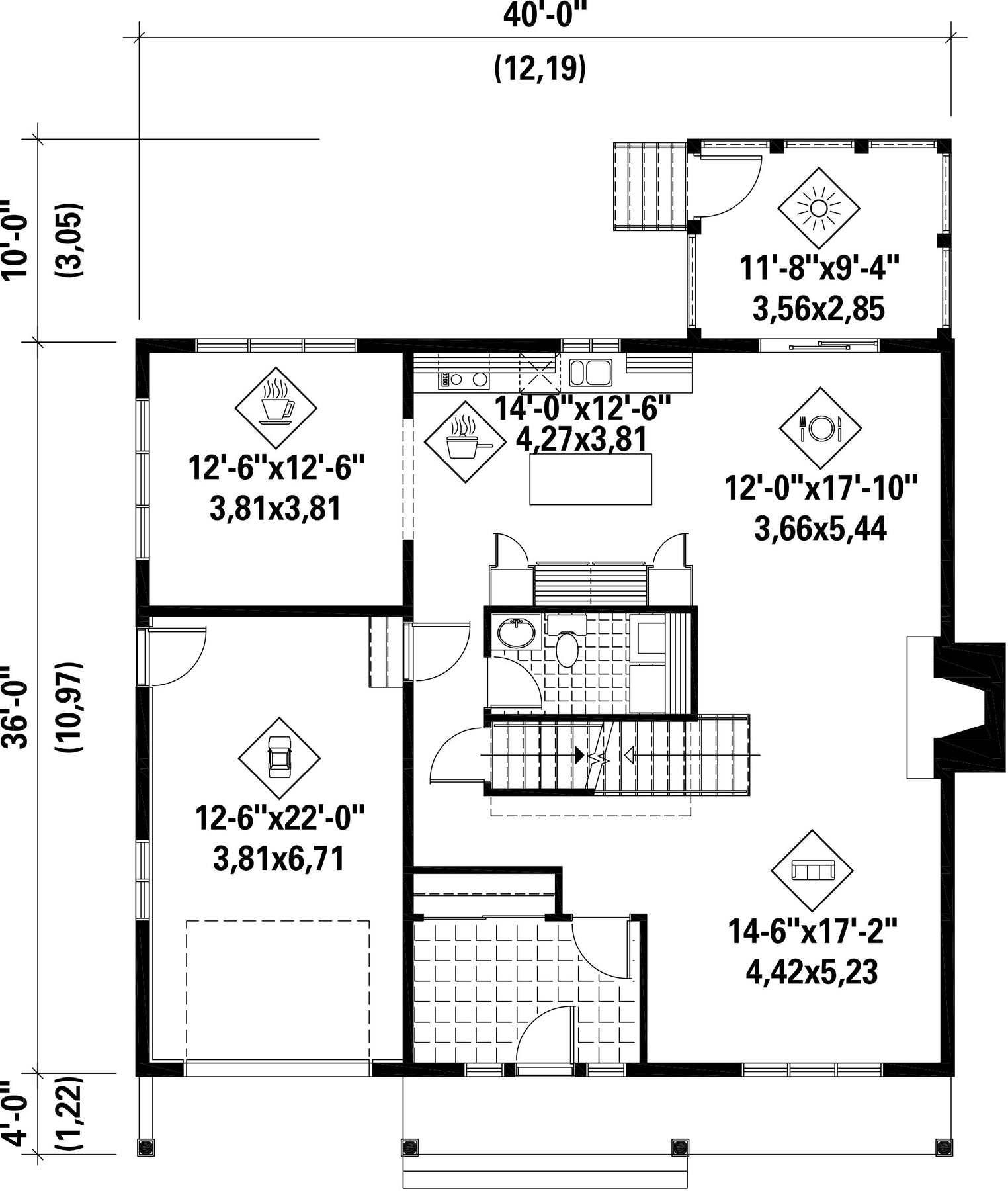
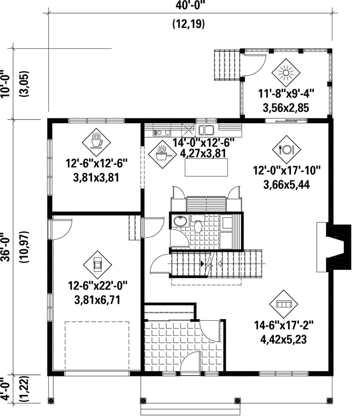
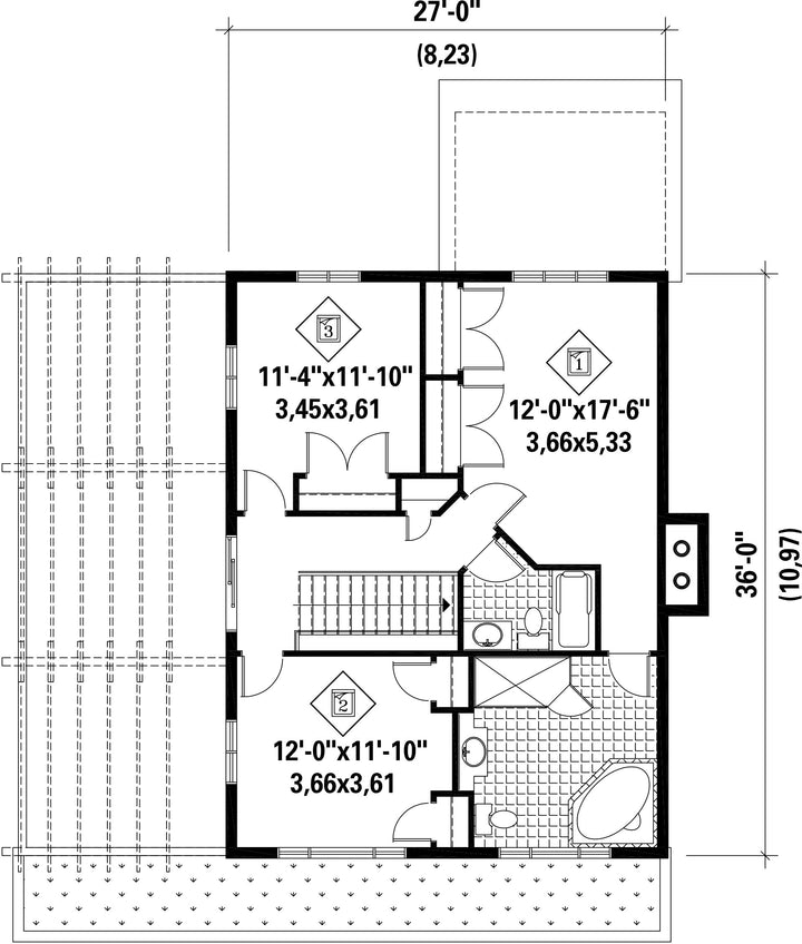
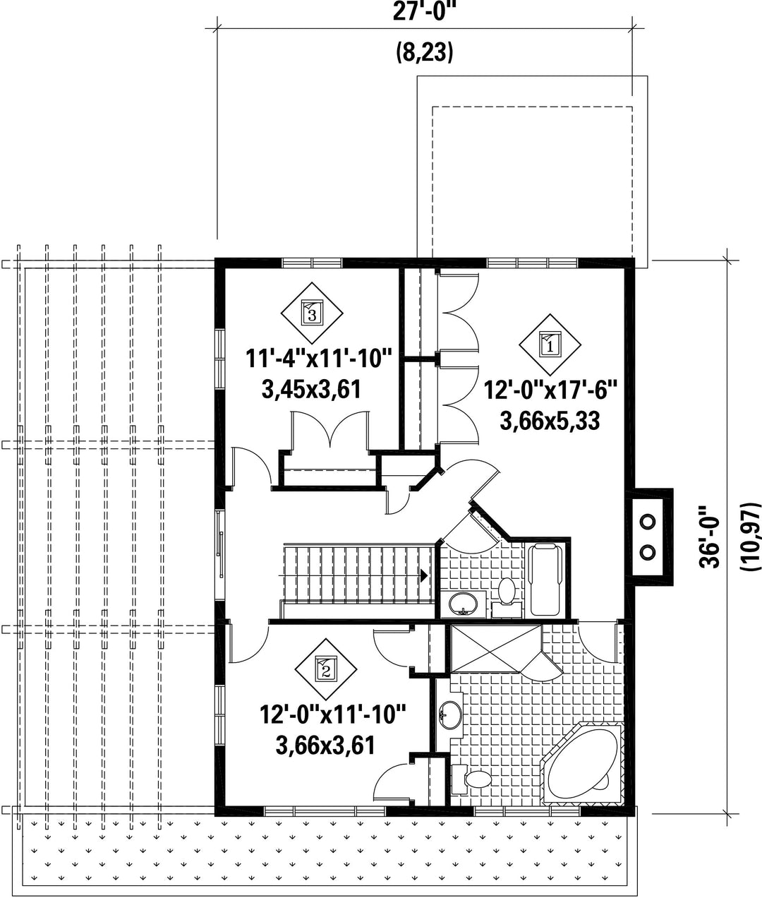
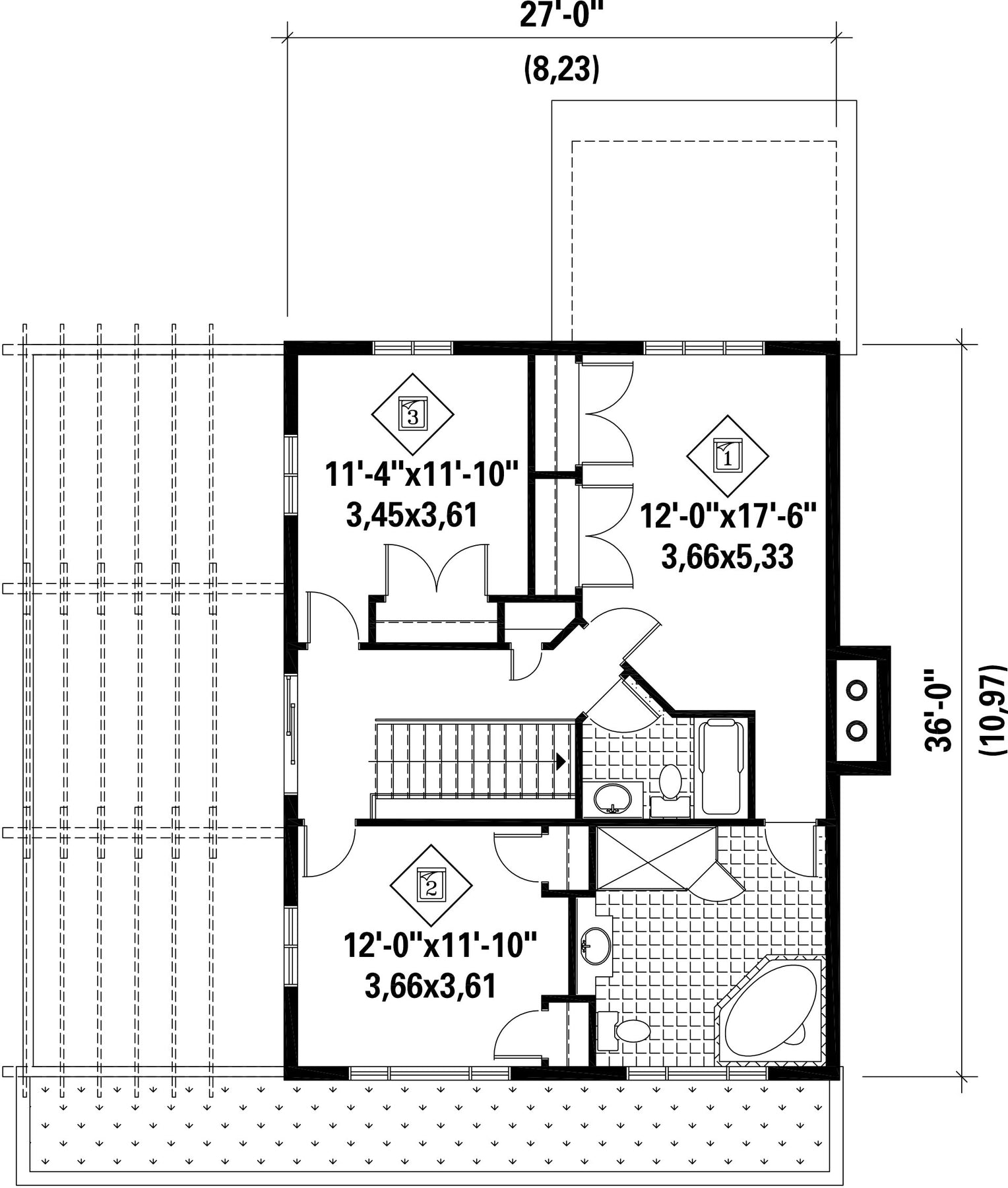
Front 40 ft Total living surface 2120 ft²
Depth 36 ftBathrooms 2
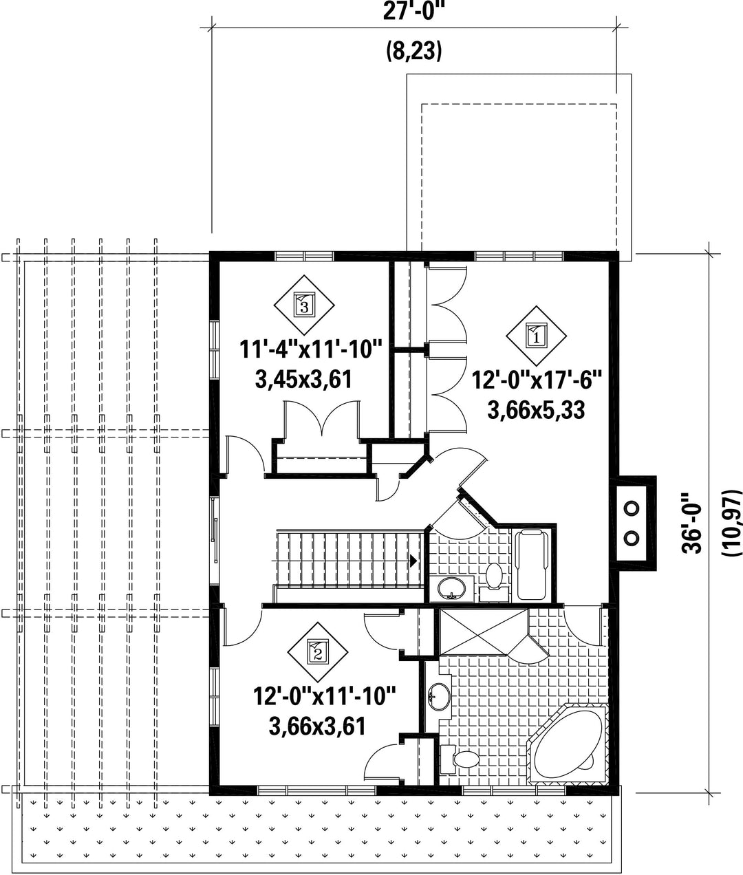
Height 35 ft 4 inBedrooms 3
Master bedroom Podium bath + Shower + Simple sink + Toilet
First floor area 1148 ft² Exterior walls Aluminum
Second floor area 972 ft² Kitchen Laboratory + Dining room + Island
Garage area 293 ft² Garages 1
Garage wall 8 ftFirst floor wall 9 + 10 ft
Second floor wall 8 ftFront/back roof slope 8/12
House style Colonial
Construction price 
Approximate amount equivalent to what it would cost to have a general contractor (Montreal's South Shore region) build a similar home, excluding the lot and the infrastructure.
446216 $
Front 40 ft
Total living surface 2120 ft²
Depth 36 ft
Bathrooms 2
Height 35 ft 4 in
Bedrooms 3
Master bedroom Podium bath + Shower + Simple sink + Toilet
First floor area 1148 ft²
Exterior walls Aluminum
Second floor area 972 ft²
Kitchen Laboratory + Dining room + Island
Garage area 293 ft²
Garages 1
Garage wall 8 ft
First floor wall 9 + 10 ft
Second floor wall 8 ft
Front/back roof slope 8/12

Ces plans de maison pourraient également vous intéresser


Recently viewed