Description
NULL
Additional info
Measurements: Imperial| House style | Colonial |
Construction price
Approximate amount equivalent to what it would cost to have a general contractor (Montreal's South Shore region) build a similar home, excluding the lot and the infrastructure.
|
861533 $ |
|---|---|---|---|
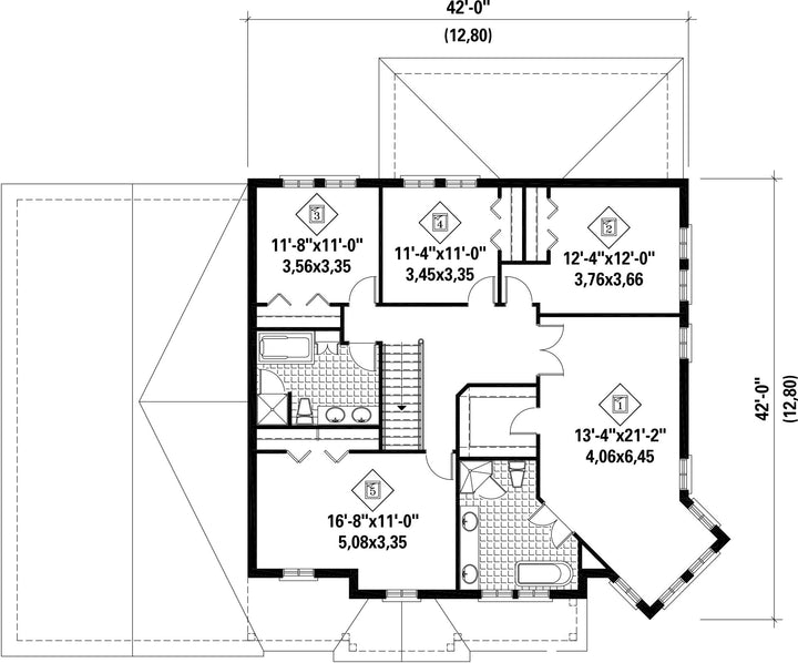
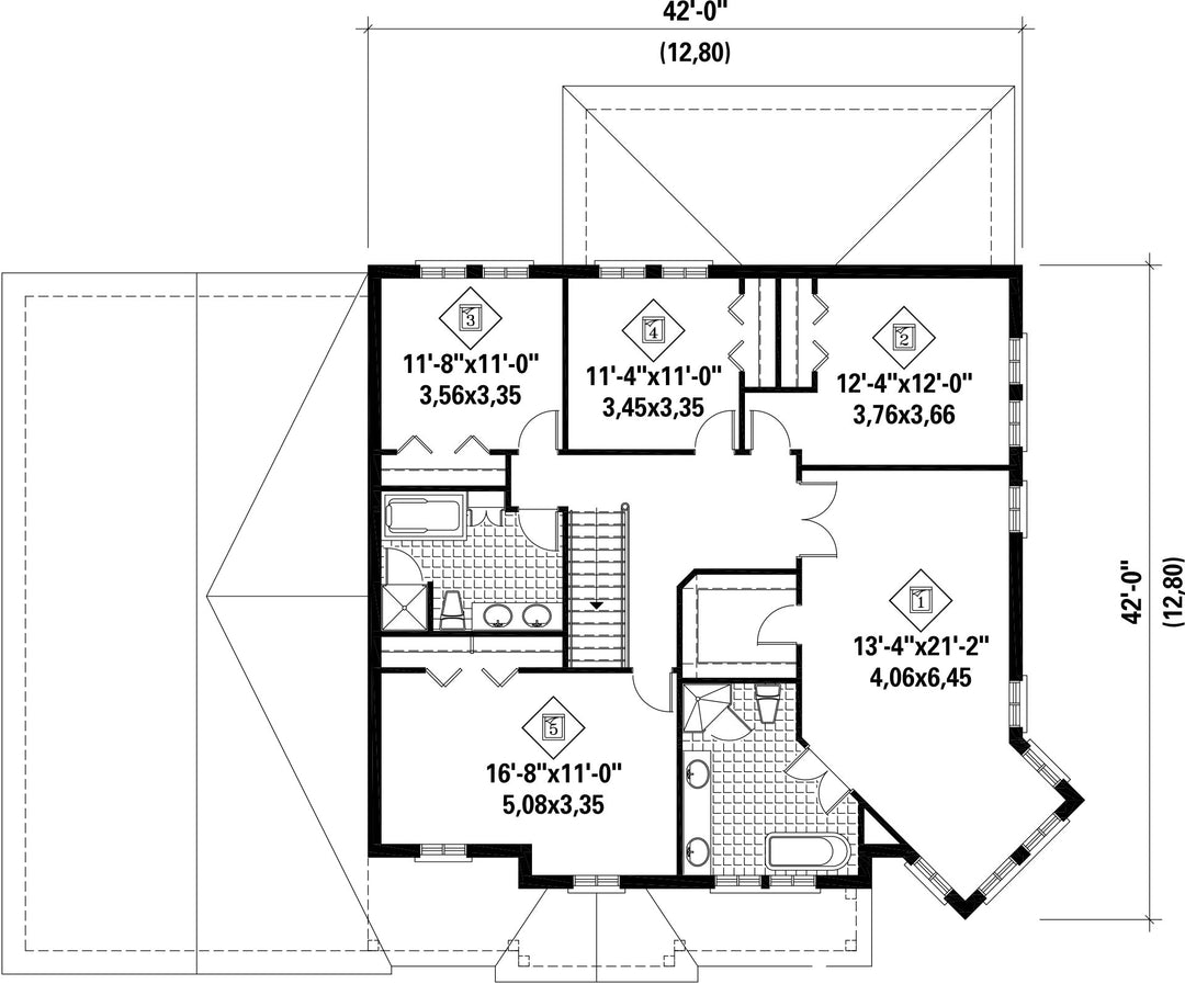
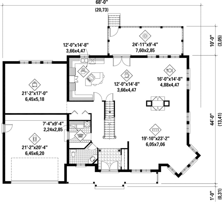
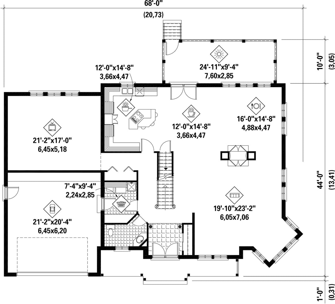
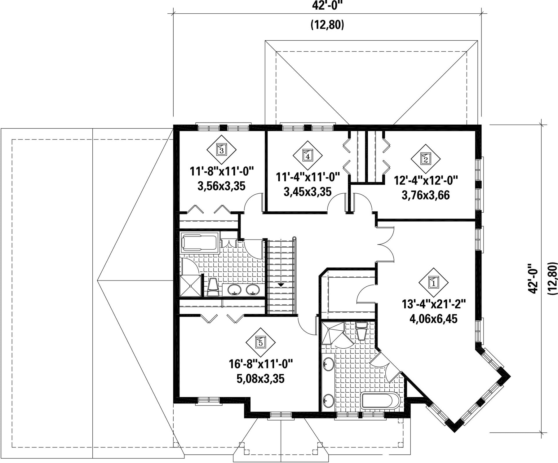
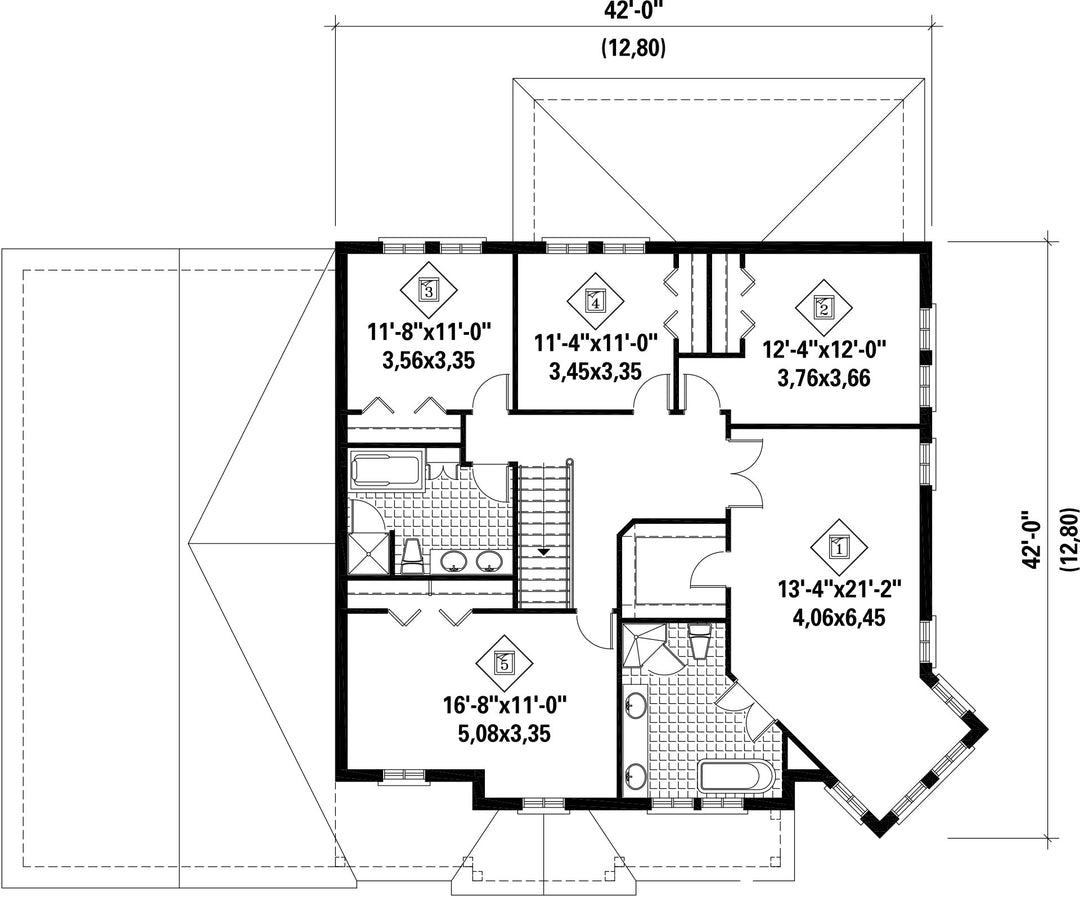
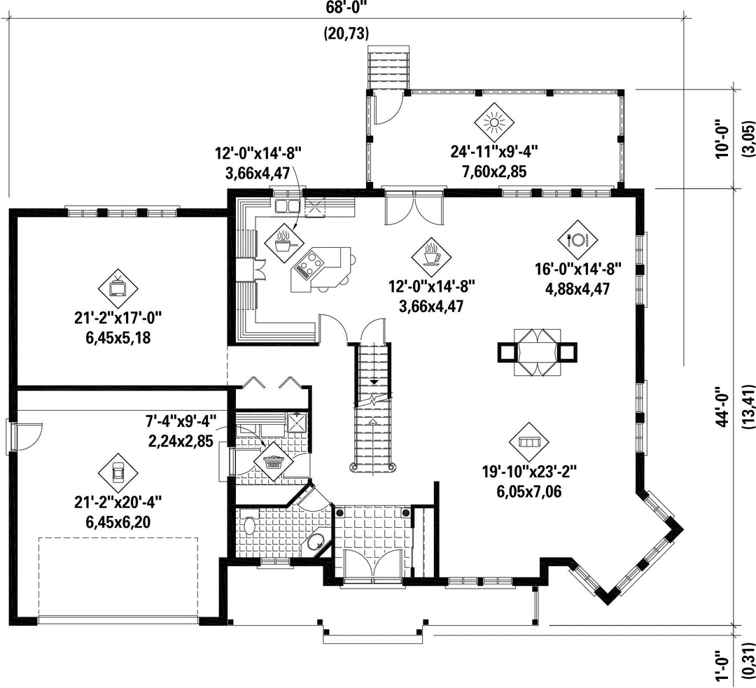
| Front | 68 ft | Total living surface | 3751 ft² |
| Depth | 44 ft | Bathrooms | 2 |
| Height | 36 ft 8 in | Bedrooms | 5 |
| Master bedroom | Pedestal bath + Shower + Double sink + Wardrobe + Double doors + Toilet | ||
| First floor area | 2077 ft² | Exterior walls | Brick + Stone |
| Second floor area | 1674 ft² | Kitchen | Breakfast nook + Breakfast bar + U-shape + Dining room + Island |
| Garage area | 521 ft² | Garages | 2 |
| Garage wall | 8 ft | First floor wall | 10 ft |
| Second floor wall | 9 ft | Front/back roof slope | 8/12 |
| Left/right roof slope | 8/12 |
| House style | Colonial |
|---|---|
|
Construction price
Approximate amount equivalent to what it would cost to have a general contractor (Montreal's South Shore region) build a similar home, excluding the lot and the infrastructure.
|
861533 $ |
| Front | 68 ft |
| Total living surface | 3751 ft² |
| Depth | 44 ft |
| Bathrooms | 2 |
| Height | 36 ft 8 in |
| Bedrooms | 5 |
| Master bedroom | Pedestal bath + Shower + Double sink + Wardrobe + Double doors + Toilet |
| First floor area | 2077 ft² |
| Exterior walls | Brick + Stone |
| Second floor area | 1674 ft² |
| Kitchen | Breakfast nook + Breakfast bar + U-shape + Dining room + Island |
| Garage area | 521 ft² |
| Garages | 2 |
| Garage wall | 8 ft |
| First floor wall | 10 ft |
| Second floor wall | 9 ft |
| Front/back roof slope | 8/12 |
| Left/right roof slope | 8/12 |