Description
All four sides of this lovely two-storey house have horizontal aluminum siding. The house is 34 feet wide by 34 feet deep and has 2066 square feet of living space. A 352 square foot one-car garage can be built near the house.
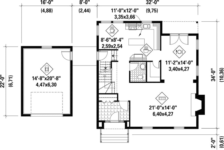
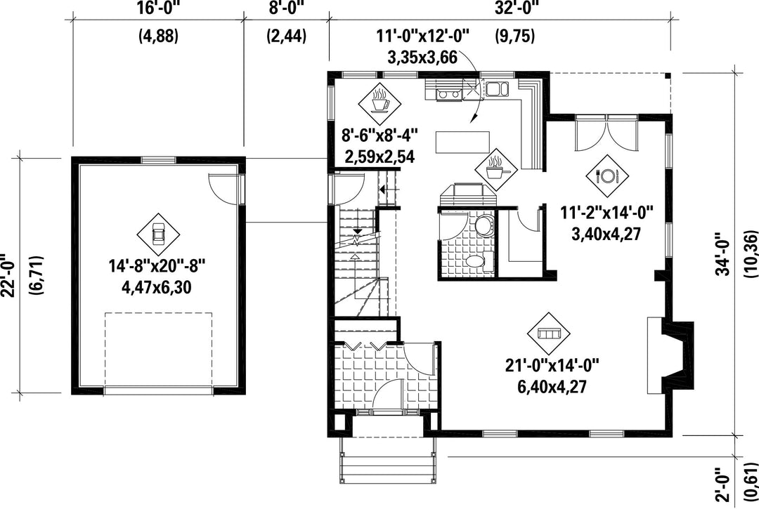
The ground floor has 1024 square feet of living space and includes a closed vestibule, a living room with a fireplace, a kitchen with a breakfast nook and a large pantry, a dining room and a powder room.
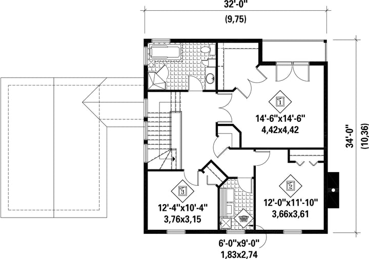
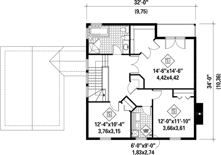
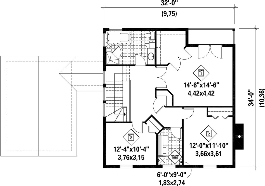
The second floor covers 1042 square feet and includes a master bedroom with a walk-in closet and an outside balcony, two additional bedrooms, a laundry room as well as a bathroom.
The ground floor has 1024 square feet of living space and includes a closed vestibule, a living room with a fireplace, a kitchen with a breakfast nook and a large pantry, a dining room and a powder room.
The second floor covers 1042 square feet and includes a master bedroom with a walk-in closet and an outside balcony, two additional bedrooms, a laundry room as well as a bathroom.
Additional info
Measurements: Imperial| House style | Colonial |
Construction price
Approximate amount equivalent to what it would cost to have a general contractor (Montreal's South Shore region) build a similar home, excluding the lot and the infrastructure.
|
414685 $ |
|---|---|---|---|
| Front | 32 ft | Total living surface | 2066 ft² |
| Depth | 34 ft | Bathrooms | 1 |
| Height | 33 ft 5 in | Bedrooms | 3 |
| Master bedroom | Wardrobe + Double Doors | ||
| First floor area | 1024 ft² | Exterior walls | Aluminum |
| Second floor area | 1042 ft² | Kitchen | Dining room + Island |
| Garage area | 352 ft² | Garages | 1 |
| Garage wall | 8 ft | First floor wall | 9 ft |
| Second floor wall | 8 ft | ||
| Left/right roof slope | 8/12 |
| House style | Colonial |
|---|---|
|
Construction price
Approximate amount equivalent to what it would cost to have a general contractor (Montreal's South Shore region) build a similar home, excluding the lot and the infrastructure.
|
414685 $ |
| Front | 32 ft |
| Total living surface | 2066 ft² |
| Depth | 34 ft |
| Bathrooms | 1 |
| Height | 33 ft 5 in |
| Bedrooms | 3 |
| Master bedroom | Wardrobe + Double Doors |
| First floor area | 1024 ft² |
| Exterior walls | Aluminum |
| Second floor area | 1042 ft² |
| Kitchen | Dining room + Island |
| Garage area | 352 ft² |
| Garages | 1 |
| Garage wall | 8 ft |
| First floor wall | 9 ft |
| Second floor wall | 8 ft |
| Left/right roof slope | 8/12 |