Description
This prestigious two-storey house is both inviting and warm with its brick and stucco facing, and with its shuttered windows. The home is 68 feet wide by 45 feet deep and provides 3,932 square feet of living space.
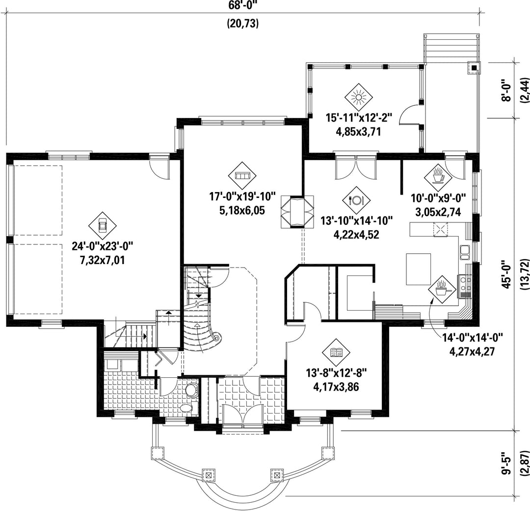
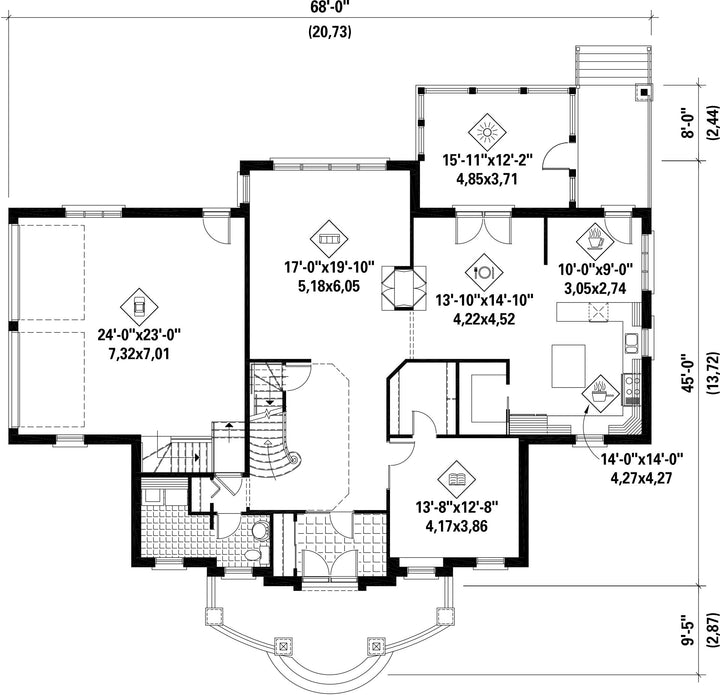
The ground floor occupies 1,721 square feet and includes a closed vestibule, an open hall with two inter-connected levels, and a huge open area encompassing the living and dining rooms divided by a magnificent two-sided fireplace. There is also a kitchen with a breakfast nook, a solarium, a powder room, and a reading room. The 660 square foot two-car garage is equally large and provides access to the basement.
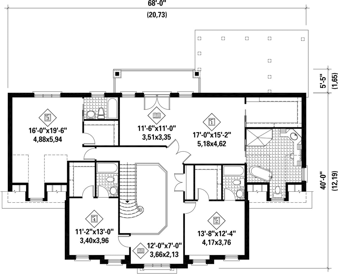
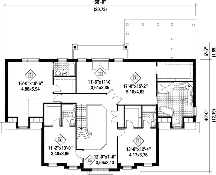
The second floor covers 2,211 square feet and consists of four bedrooms, each with a private bathroom and a large walk-in closet.
The ground floor occupies 1,721 square feet and includes a closed vestibule, an open hall with two inter-connected levels, and a huge open area encompassing the living and dining rooms divided by a magnificent two-sided fireplace. There is also a kitchen with a breakfast nook, a solarium, a powder room, and a reading room. The 660 square foot two-car garage is equally large and provides access to the basement.
The second floor covers 2,211 square feet and consists of four bedrooms, each with a private bathroom and a large walk-in closet.
Additional info
Measurements: Imperial| House style | Colonial |
Construction price
Approximate amount equivalent to what it would cost to have a general contractor (Montreal's South Shore region) build a similar home, excluding the lot and the infrastructure.
|
907238 $ |
|---|---|---|---|
| Front | 68 ft | Total living surface | 3932 ft² |
| Depth | 45 ft | Bathrooms | 4 |
| Height | 38 ft | Bedrooms | 4 |
| Master bedroom | Pedestal bath + Shower + Single sink + Wardrobe + Double doors + Toilet | ||
| First floor area | 1721 ft² | Exterior walls | Aggregates + Stone |
| Second floor area | 2211 ft² | Kitchen | Dining area + U-shape + Dining room |
| Garage area | 660 ft² | Garages | 2 |
| Garage wall | 8 ft | First floor wall | 9 ft |
| Second floor wall | 9 ft | Front/back roof slope | 8/12, 10/12 |
| Left/right roof slope | 16/12 |
| House style | Colonial |
|---|---|
|
Construction price
Approximate amount equivalent to what it would cost to have a general contractor (Montreal's South Shore region) build a similar home, excluding the lot and the infrastructure.
|
907238 $ |
| Front | 68 ft |
| Total living surface | 3932 ft² |
| Depth | 45 ft |
| Bathrooms | 4 |
| Height | 38 ft |
| Bedrooms | 4 |
| Master bedroom | Pedestal bath + Shower + Single sink + Wardrobe + Double doors + Toilet |
| First floor area | 1721 ft² |
| Exterior walls | Aggregates + Stone |
| Second floor area | 2211 ft² |
| Kitchen | Dining area + U-shape + Dining room |
| Garage area | 660 ft² |
| Garages | 2 |
| Garage wall | 8 ft |
| First floor wall | 9 ft |
| Second floor wall | 9 ft |
| Front/back roof slope | 8/12, 10/12 |
| Left/right roof slope | 16/12 |